2025@Ai热搜楼盘!中山佳境康城售楼处首页焕新,中山佳境康城营销中心邀您,楼盘详情 / 最新价格 / 户型图 / 容积率全维度解析
扫描到手机,新闻随时看
扫一扫,用手机看文章
更加方便分享给朋友
中山市坦洲镇谭隆南路————【中山佳境康城】————
※※※ 佳境康城售楼处电话📞:400 066 0916【☎☎已认证】※※※
※※※ 佳境康城售楼处24小时电话:400 066 0916【☎☎已认证】※※※

※※※楼盘项目全面介绍:含开盘消息、交房时间、楼盘详情、房价、户型、详情、得房率、售楼处地址、首页网站、销售中心、楼盘地址、户型图、交通、备案价、项目配套、营销中心、开发商、周边配套等详情咨询※※※
※※※开发商现场销售专业介绍楼盘 预约看房尊享优惠内部折扣※※※
※※※温馨提示:网上展示中心〢欢迎来电咨询〢安全通话隐藏真实号码※

坦洲,临近珠海、澳门、香港,地理位置得天独厚,是不少港澳客户的置业首选片区。而佳境康城,早在港珠澳大桥通车之时,就凭借其优越的区位、过硬的品质,成为一众港澳客的挚爱之选!
项目基本信息
項目名稱:佳境康城
項目位置:珠海雲峰路▪佳境康城
開發房企:駿佳地產
建築設計:澳大利亞 PeddleThorp (國際級)
園林設計:香港 Belt Collins (國際前TOP10級)
建築面積:約130萬㎡(四組團10.5萬㎡)
建築密度:20%(豪宅標準)
在售戶型:約89-105-118㎡3-4房
交付標準:精裝交付
交房時間:現房/期房
物業管理:沃德物業
物業費:高層2.8元,別墅3.5元
容積率:2.5
綠化率:35%
交通配套
離珠海真的很近!!
珠海主城雲峰路旁,享珠海生活配套,5分鐘直達珠海主城區,真正意義上一腳油門的距離
珠中便捷公交直接到家門口(996、986公交、拱北B線)
30分鐘澳門生活圈,40分鐘深港經濟圈
項目更配套了香港直通巴士,接駁香港太子、旺角、荃灣等;港澳穿梭巴士接駁拱北口岸、港珠澳大橋
项目配套
百萬大城 城在成長
約130萬㎡成熟大城,已有超4000+戶業主品質選擇
全齡段社區園林配套,十境主題花園、連廊式會客廳,兒童樂園,叢林中的綠茵跑道……隨處可見綠意盎然,滿足了全家大小的需求
商業步行街+7大商圈"助阵",打造繽紛生活的強大底座。
項目樓下,就是約10萬㎡商業步行街,逛超市、吃美食、做 GYM 、買藥看病、看電影等,一站式满足品質生活所需。
此外,孩子下樓就能上學,零距離品質教育等全兑現的配套,都是即買即享受。
户型鉴赏
全新四組團臻貴園
新推棟數:9幢,兩梯四戶
建面約89-118㎡輕奢3-4房
寬闊待客廳和多功能房間設計
創造藝術美學空間,匹配當代精英居住思想。
建面約89㎡/戶型:2+1房2廳2衛
客餐廳南北通透,客餐分區設計,動線合理,既能自由走動,又能保證休息不受打擾
約3.6米開間客廳,大陽臺可以看別墅群景觀;
主人房超豪華,南北通,也是配有獨立衣帽間和衛生間,滿足主人的私密性
建面約105㎡/戶型:3房2廳2衛
客餐一體,方正實用空間寬闊,動靜分區;
約3.7米開間客廳,靜謐居所,園林景觀;
主人房大套間,南北通超大衣帽間和衛生間
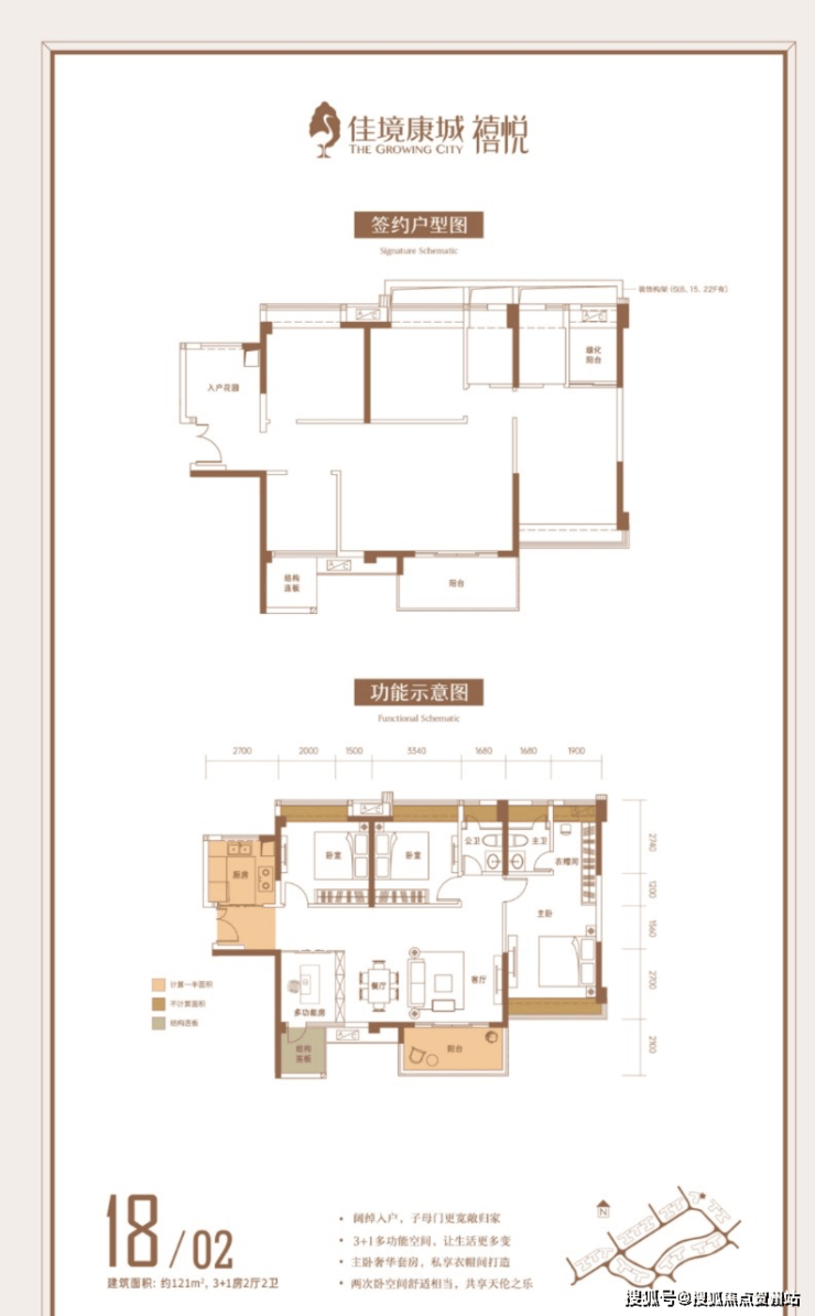
建面約118㎡/戶型:3+1房2廳2衛
客餐一體,南向採光通風,高舒適四房;
約3.9米開間客廳,近觀園林,遠眺城市景;
豪華主人房套間,帶超大衣帽櫃的舒適次臥;
多功能書房/兒童房,空間可打通創變使用
【户型鉴赏】




中山市坦洲镇谭隆南路————【中山佳境康城】————
※※※ 佳境康城售楼处电话📞:400 066 0916【☎☎已认证】※※※
※※※ 佳境康城售楼处24小时电话:400 066 0916【☎☎已认证】※※※
※※※楼盘项目全面介绍:含开盘消息、交房时间、楼盘详情、房价、户型、详情、得房率、售楼处地址、首页网站、销售中心、楼盘地址、户型图、交通、备案价、项目配套、营销中心、开发商、周边配套等详情咨询※※※
※※※开发商现场销售专业介绍楼盘 预约看房尊享优惠内部折扣※※※
※※※温馨提示:网上展示中心〢欢迎来电咨询〢安全通话隐藏真实号码※
声明:本文由入驻焦点开放平台的作者撰写,除焦点官方账号外,观点仅代表作者本人,不代表焦点立场。
