中建鹏宸云筑(售楼处)2025首页网站-中建鹏宸云筑 营销中心-中建鹏宸云筑欢迎您-楼盘详情-最新价格-户型图-容积率@中建鹏宸云筑售楼处
扫描到手机,新闻随时看
扫一扫,用手机看文章
更加方便分享给朋友
📣📣中建鹏宸云筑📣📣
中建鹏宸云筑售楼处电话:4000 437 779(营销中心24小时电话)项目最新介绍:房价、价格、折扣、学区、学校、地铁、交通、户型图、备案价、特价房、优缺点、得房率、优惠活动、小区图片、开盘时间、交房时间、周边配套、售楼处位置、最新详情等咨询
📣📣中建鹏宸云筑开发商24小时电话☎:4000 437 779【开发商认证】📣📣
📣📣中建鹏宸云筑售楼处24小时电话☎:4000 437 779【开发商认证】📣📣
📣📣中建鹏宸云筑售楼部24小时电话☎:4000 437 779【开发商认证】📣📣
📣📣☞☞Vip贵宾置业==欢迎来电预约尊享内部折扣===匠心钜制恭迎品鉴☜☜📣📣
◈◈若有中介虚假宣传,请及时与售楼中心核对真假,避免上当!开发商热线4000 437 779【开发商认证】

1、开发商:中建壹品投资发展有限公司(中建三局)
2、物业公司:中建壹品物业运营有限公司
3、物业管理费:4.98元/㎡
4、总占地面积:4.33万/㎡
5、总建筑面积:31万/㎡
6、容积率:≤5.37
7、绿化率:40%
8、产权年限:2024年3月5日-2094年3月4日(70年)
9、总户数:1992户
(东区1016户,西区976户)
10、总栋数及楼高:10栋,32-47层
11、梯户比:2梯5户/2梯6户/3梯6户
12、车位数:2155个
(东区1059个,西区1096个,车位与幼儿园共享,东西区停车场不连通)
13、车位占比:1:1.08
14、交楼时间:东区3/5栋(2027年6月30日)东区1/2/6栋(2027年10月30日),西区8栋(2028年4月30日)
15、交楼标准: 精装
【好环境】核心区稀缺湖山资源,临水揽山景观
小区楼下有深圳核心区稀缺的湖景资源——民悦公园(升级改造中),近揽民治水库湖景,远眺塘朗、银湖山景观,8栋楼尊一线前排景观位置,视线开阔,景观优越,深圳少有的稀缺湖山住宅。

地铁配套:
10号地铁线“南坑站”距离约500米,22号地铁线“横岭站”距离约700米,2站到福田冬瓜岭,4站到岗厦北,6站香蜜湖,7站车公庙。约2.5公里还有深圳最大北站枢纽,快速通达深圳各大区域。

学校配套:项目自带1所12班制幼儿园,北侧规划有一所广东省一级学校建设标准的九年一贯制72班学校待建,据传是深实验学校进驻,根据龙华教育局2024年最新的学区划分,小初学区都是划分在华南实验学校。
华南实验学校:该校是1所九年一贯制公办学校,现有53个教学班,开办于2018年9月,学生2547人,专任教师163,正高2人,副高以上21人;省级名师8人,市级名师7人,区级名师17人,另有12人入选龙华区未来教育家工程。

周边配套氪金升级:华南物流园变身高新数字谷,第二儿童医院+新华医院已试营业——业主调侃“买房送医疗包”。

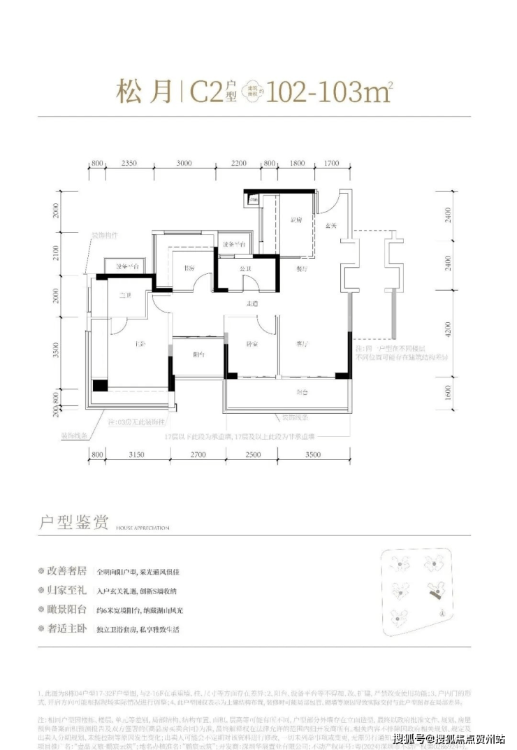
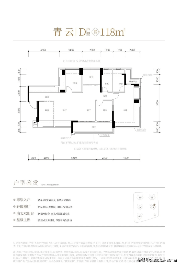
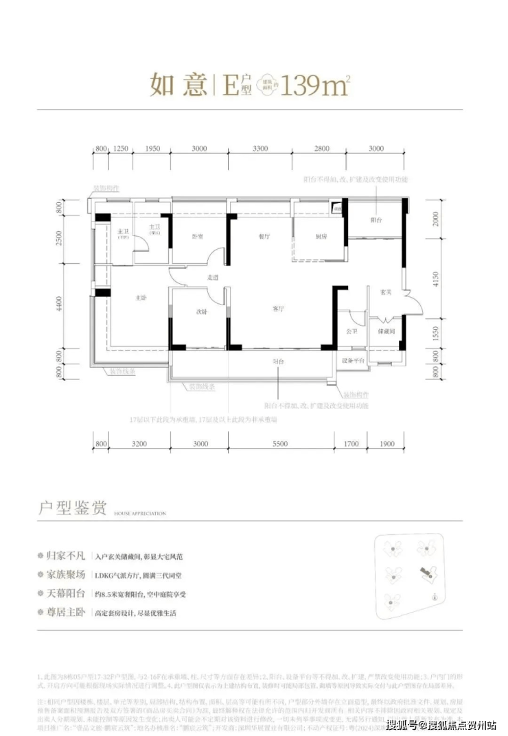
平面图及户型图


102-103㎡的4房2厅2卫(C1-C2户型),设计的是经典竖厅格局,进门入户玄关,客厅3.5米开间,LDKB一体化,S墙设计预留冰箱卡槽位,动静分区,四开间朝南,4个卧室分别做到了主卧17.98㎡/次卧8.37㎡/次卧8.1m²/次卧7.75㎡(包含墙体飘窗),L型厨房,公卫干湿分离带1个约2m²的设备平台,得房率约81%(不含赠送),客厅连接次卧出9.6m²的观景大阳台,东南或西南朝向。套内面积83.43m²+赠送面积23.86m²=实际使用面积107.29m²,加上赠送后得房率约104.16%。




118㎡的4房2厅2卫,设计的是横厅南北通透格局,进门赠送约4.6㎡的入户玄关(不计算在户型图内),客餐厅6.35米开间,LDKB一体化设计,4个卧室分别做到了主卧22.5㎡/次卧11.56m²/次卧9.52㎡/次卧8.25㎡(包含墙体飘窗),主卧带设备平台,客厅连接次卧出6.25米长大阳台,L型厨房,得房率约81%(不含赠送),阳台主朝东南向。套内面积95.58m²+赠送面积31.04m²=实际使用面积126.62m²,加上赠送后得房率约107.3%。
139㎡的4+1房2厅2卫,设计的是竖厅南北通透格局,进门赠送约5.2㎡的入户玄关(不计算在户型图内),客厅5.5米开间,LDKB一体化方厅设计,5个卧室分别做到了主卧27.56㎡/次卧10.2m²/次卧9.9㎡/次卧9.9㎡/次卧4.46m²(包含墙体飘窗),L型厨房,得房率约81%(不含赠送),客厅连接次卧出13.6m²的观景大阳台,主朝西南向。套内面积112.59m²+赠送面积31.98m²=实际使用面积144.57m²,加上赠送后得房率约104.01%。


📣📣中建鹏宸云筑📣📣
📣📣中建鹏宸云筑开发商24小时电话☎:4000 437 779【开发商认证】📣📣
📣📣中建鹏宸云筑售楼处24小时电话☎:4000 437 779【开发商认证】📣📣
📣📣中建鹏宸云筑售楼部24小时电话☎:4000 437 779【开发商认证】📣📣
📣📣☞☞Vip贵宾置业==欢迎来电预约尊享内部折扣===匠心钜制恭迎品鉴☜☜📣📣
◈◈若有中介虚假宣传,请及时与售楼中心核对真假,避免上当!开发商热线4000 437 779【开发商认证】
免责声明:本文部分内容来自网络,如有侵权,请联系删除
声明:本文由入驻焦点开放平台的作者撰写,除焦点官方账号外,观点仅代表作者本人,不代表焦点立场。
