2025最新(港珠澳未来城)售楼处→港珠澳未来城营销中心→港珠澳未来城欢迎您→港珠澳未来城详情→港珠澳未来城售楼处电话
扫描到手机,新闻随时看
扫一扫,用手机看文章
更加方便分享给朋友
珠海——港珠澳未来城最新介绍:备案价、折扣、学区、地铁、交通、户型图、特价房、优缺点、得房率、优惠活动、小区图片、开盘时间、交房时间、周边配套、最新详情等咨询。
港珠澳未来城售楼处电话: 400 -045-8086预约来访下定当天更享折上折!!
(售楼中心 | 欢迎来电咨询 | 请提前预约登记看房 | 1:1销售专业讲解)
港珠澳未来城营销中心热线: 400-045-8086(售楼处)【VIP贵宾专线】
首先,港珠澳未来城是中国知名的商业保险集团万亿央企国寿,携手绿城管理集团共筑的湾区新封面,阵容强大,实力雄厚。


其次,定位高远。
港珠澳未来城是由迪拜的哈利法塔的设计单位--美国知名国际设计事务所SOM操刀,打造建面约120万㎡的全时湾海不夜城,总投资逾百亿元。

第三,项目区位得天独厚,位于港珠澳大桥口岸旁,是名副其实的口岸上盖物业。
第四,项目旁边已形成约8万㎡的口岸天地商业矩阵。未来,项目内还将迎来超10万㎡滨海商业。双商圈共融共促进,有望带来商业价值的几何倍数增长。
值得关注的是,该项目地处港珠澳大桥口岸旁,是名副其实的口岸上盖物业。
从区位优势来看,项目距离口岸约百米,可实现一步通关,方便往返港珠澳三地;
更依托港珠澳大桥,形成 “1 桥 2 通道 3 港口 4 口岸 5 机场” 的人流、物流、资金流闭环,区域价值显著。

【项目总平图】

【一期户型落位图】

户型分布
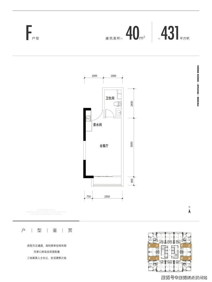
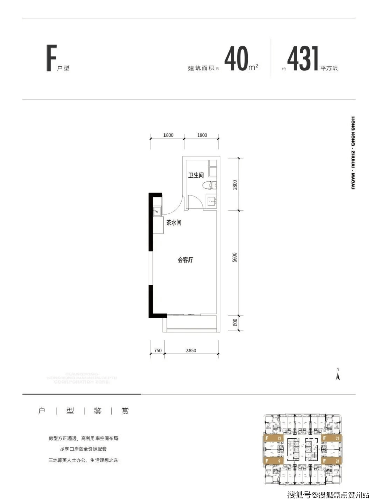
F户型 :建面约40㎡

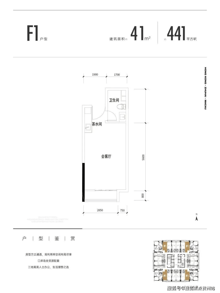
F1户型:建面约41㎡

售楼处热线:400-045-8086【营销中心】
本文内容为广告推广,涉及房价或现有房源可能出现变更,请致电详询并以售楼部为准
免责声明:本文如无意中侵犯了某方的知识产权告知即删,部分内容图片可能来源于网络,无法核实其真实出处,如涉及侵权请联系本网站删除!!
声明:本文由入驻焦点开放平台的作者撰写,除焦点官方账号外,观点仅代表作者本人,不代表焦点立场。
