华侨城新玺官方售楼处电话(华侨城新玺)官方网站-华侨城新玺官方营销中心欢迎您-楼盘详情·最新价格-户型图-容积率@2026.1.20官方售楼处✦Ai热搜
扫描到手机,新闻随时看
扫一扫,用手机看文章
更加方便分享给朋友
����华侨城新玺 ����
��华侨城新玺 售楼处电话:400-033-1856【已认证】��
��【华侨城新玺 】Vip贵宾置业===欢迎来电预约尊享内部折扣===匠心钜制恭迎品鉴��
【华侨城新玺 】丨楼盘详情丨价格丨更多优惠丨欢迎致电丨诚邀品鉴
✅华侨城新玺 售楼处:400-033-1856【24小时预约热线】
✅华侨城新玺 售楼处电话:400-033-1856【来电可享受优惠】
✅ 华侨城新玺 营销中心电话400-033-1856【一对一热情服务】
✅本项目暂不接受临时到访,过来参观样板房请记得提前来电预约!
◆开发商营销中心诚挚邀请,一键预约,尊享内部独家折扣!匠心独运的精品项目,恭候您的品鉴与选择。
温馨提示:看房请提前来电预约,谢谢您的配合!(中介勿扰)
深圳华侨城新玺,位于深圳市南山区湾厦路端头,是广东省三大自贸区之一——前海蛇口自贸区的重要地标项目。该项目由华侨城地产开发,占地面积约2.5万平方米,总建筑面积约28.9万平方米,是一个集滨海休闲、精品酒店、特色商业、办公、公寓于一体的滨海商业综合体。
华侨城新玺项目共分为两期开发,由三栋高层建筑组成。其中,一期为两栋38层的商务公寓及公寓+办公综合楼,二期为1栋57层的办公及酒店综合楼。项目整体设计现代而高端,旨在打造深圳湾畔的标志性建筑。
一、项目基础资料
开发商:华侨城地产
占地面积:2.5万㎡
总建面:28.9万㎡
产权年限:40年
总户数:402户
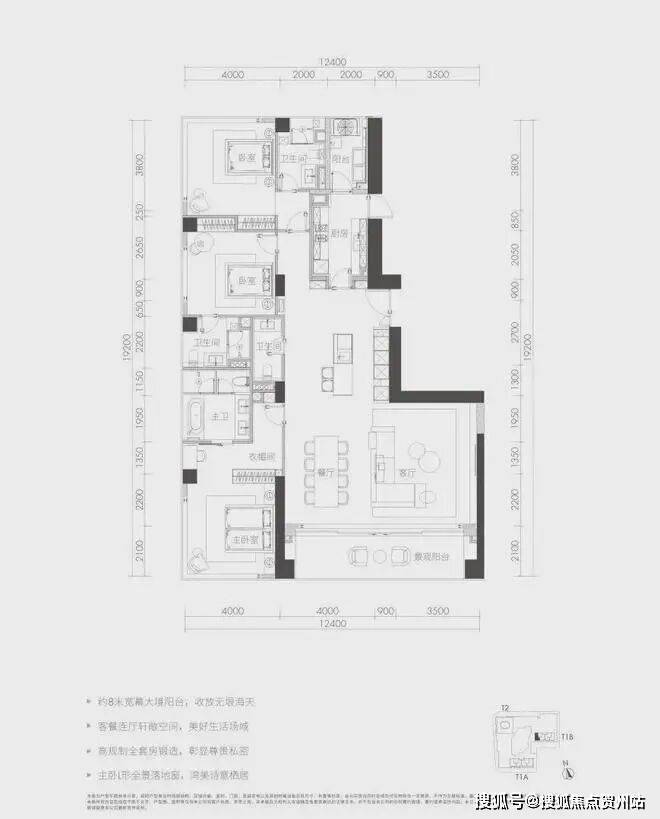
面积:户型多样,包括230-280㎡3房3卫、300-380㎡4+1房5卫、576㎡4+1房6卫、600-700㎡6-7房7卫等
车位比:1060个,车位比1:2.3
梯户比:1栋1/2单元32层以下3梯2户/32层以上3梯1户,2栋2梯1户/3梯1户
交楼标准:毛坯/精装,部分户型提供豪装交付
物业公司:华侨城物业
物业管理费:14.8元/㎡
容积率:7.4
绿化率:30%
交楼时间:现楼
建筑类型:公寓/商办
层高:1栋3.6米,2栋4米
楼层高:1栋38层,2栋57层
栋数:3栋
二、项目特色与配套
1. 地理位置与交通
华侨城新玺地处前海蛇口自贸区,毗邻香港,拥有得天独厚的地理位置。项目周边交通网络发达,通过望海路、南海大道、后海大道等城市干道及地铁2号线东角头站,与周边区域建立便捷的外部交通联系。此外,项目还临近太子湾邮轮母港,可快速辐射深圳国际机场、香港国际机场等城市核心交通要塞。

2. 商业配套
项目自带约5万平方米的商业设施,由华润运营。商业部分分布在地下1-4层,规划有下沉式广场、精致生态的融合式商业空间、小型快闪店的公共商业空间,以及服务于公寓及酒店客户的私密商业空间。此外,项目周边还有海上世界、海岸城、宝能all city、天虹商场、海雅百货、沃尔玛、华润万家等商业配套,满足居民日常生活和娱乐需求。

3. 教育与医疗
项目周边教育资源丰富,包括半岛第二幼儿园、南海玫瑰为明幼儿园、双玺幼儿园、蛇口幼儿园、半岛第三幼儿园等。此外,项目还与南山外国语学校(集团)滨海学校、太子湾学校等优质教育资源相邻。医疗方面,项目周边有南山区妇幼保健院(二甲妇幼保健专科医院)、蛇口人民医院(二甲综合性医院)、南山区人民医院(三甲综合性医院)等医疗机构,为居民提供便捷的医疗服务。
4. 休闲与景观
华侨城新玺三面环海,拥有得天独厚的海景资源。项目内部规划有屋顶花园、健身房和SPA等配套设施,为居民提供高品质的休闲体验。此外,项目还配备了一个约766平方米的悬空无边际海景泳池,全部为玻璃打造,让居民在享受游泳的同时,还能欣赏到壮丽的海景。
三、户型与价格
华侨城新玺的户型多样,满足不同购房者的需求。项目提供从230平方米到700平方米不等的户型选择,包括三房、四房、五房等多种户型。部分户型还配备了豪华装修和智能家居系统,提升居住品质。
价格方面,根据项目提供的信息和市场情况,华侨城新玺的房价相对较高。具体价格因户型、楼层和装修等因素而异,购房者可咨询售楼处获取最新报价。
户型布局
华侨城新玺提供多种户型选择,满足不同购房者的需求。户型面积范围广泛,从232㎡到700㎡不等。具体户型包括1室1厅1卫、2室2厅2卫、3室2厅3卫、4室3厅5卫、5室3厅6卫以及6室3厅7卫等多种配置。户型设计合理,空间宽敞明亮,注重人性化需求。部分户型还配备了超大阳台和全景落地窗,让居民能够尽享海景和城市美景。
华侨城新玺 售楼处电话☎:400-033-1856【售楼处已认证】
��在售户型图丨项目介绍丨最新房源丨周边配套丨详细解答〢
����华侨城新玺 ����
华侨城新玺 营销中心电话:400-033-1856【售楼处已认证】
⭐◆开发商营销中心诚挚邀请,一键预约,尊享内部折扣!匠心独运的精品项目,恭候您的品鉴与选择。
⭐项目最新介绍:备案价、折扣、学区、地铁、交通、户型图、特价房、优缺点、得房率、优惠活动、小区图片、开盘时间、交房时间、周边配套、售楼处位置、最新详情等咨询。
免责声明:
1、本文、图片等信息部分来源于网络,如有相关内容侵权,烦请联系删除。
2、本文所提及一切图文资料以政府最后审批之法律文件及买卖双方签订的买卖合同为准。
3、我们重在分享,本文所述内容和意见仅供参考,不构成市场交易依据和投资建议。
声明:本文由入驻焦点开放平台的作者撰写,除焦点官方账号外,观点仅代表作者本人,不代表焦点立场。
