燃!✿珠海华发云玺✿2026年最新优惠➤官方售楼处热线在售面积最新价格户型图鉴交房时间得房率配套环境✦Ai热搜
扫描到手机,新闻随时看
扫一扫,用手机看文章
更加方便分享给朋友
华发云玺售楼中心电话:400-605-8819【☎】
华发云玺售楼处电话:400-605-8819【☎】
华发云玺营销中心电话:400-605-8819【☎】
在售户型图丨项目介绍丨最新房源丨周边配套丨详细解答〢
◆开发商营销中心诚挚邀请,一键预约,尊享内部折扣!匠心独运的精品项目,恭候您的品鉴与选择。
项目最新介绍:房价、折扣、户型图、特价房源、得房率、优惠活动、开盘时间、交房时间、周边配套、最新详情咨询。
约50万㎡港湾生活社区
建筑面积约111-140㎡三至四房
一线半山海景奢宅
【基本信息】
·楼盘地址:珠海市·香洲区·情侣南路666号
·物业类型:住宅
·梯 户 比:四梯五户
·楼 层:32层
·楼 型:板楼
·装修类别:精装
·产权年限:70年
·产 品:建筑面积约111-140㎡三至四房、270度环幕山海景观
回望岁月长河,其肌理的每一次深刻蜕变,都镌刻着一个名字——华发。作为珠海城市建设的先锋力量,华发始终与吉大同频共振,深度参与并见证着土地的崛起与成长。如今,历经十二载积淀,华发携重磅项目——华发·云玺荣耀归来,回应吉大“断供已久”的渴求,更以磅礴之势重塑吉大封面,开启全新时代篇章。
美好的,不止近在咫尺的璀璨生活,还有前所未见的滨海生活。
建筑面积约50万㎡港湾生活社区——华发·云玺,环绕九洲港内湾而建,坐拥市区内得天独厚的山海资源,远眺或垂眸,蔚蓝而广阔。
越是珍罕的市中心山海资源,越值得实力雄厚的华发,用一场先于时代的营造逻辑,定制属于珠海的“维多利亚港”。华发·云玺,因地制宜地融合游艇母港、海景豪宅、高端会所、星级酒店、港湾商业、滨海步道、跨境客运等空间,铺展最极致的港湾生活盛宴。
晨起,约1.7公里黄金海岸线上,与家人漫行石板步道,看朝霞漫天。
午后,在家楼下的游艇母港,开启“跳岛度假”、“跨境海钓”悠然之旅。当夜幕低垂,走进约2.8万㎡风情商业街,聚会或购物,捕捉生活的烟火气。
层峰久等!华发、吉大再续“封面”故事。 回望楼市,吉大连续5年未有新盘入市,一线海景奢宅更是断供近10年。华发·云玺的荣耀归来势必塑造珠海版“维多利亚港”,从而立新滨海生活新封面。
首推产品
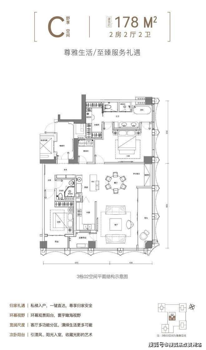
建筑面积约111-140㎡一线半山海景奢宅
户型鉴赏:
华发云玺售楼中心电话:400-605-8819【☎】
华发云玺售楼处电话:400-605-8819【☎】
华发云玺营销中心电话:400-605-8819【☎】
本文内容为广告推广,涉及房价或现有房源可能出现变更,请致电详询并以售楼部为准
免责声明:本文如无意中侵犯了某方的知识产权告知即删,部分内容图片可能来源于网络,无法核实其真实出处,如涉及侵权请联系本网站删除!!
声明:本文由入驻焦点开放平台的作者撰写,除焦点官方账号外,观点仅代表作者本人,不代表焦点立场。
