深圳方直珑樾山售楼处电话(方直珑樾山)首页网站-营销中心欢迎您-楼盘详情·最新价格-户型图-容积率@售楼处AI热搜
扫描到手机,新闻随时看
扫一扫,用手机看文章
更加方便分享给朋友
����⑉ıl⑉ 方直珑樾山 ⑉lı⑉ ����
��方直珑樾山 售楼处电话��:400 079 2015【☎☎已认证】��
��方直珑樾山 售楼中心电话��:400 079 2015【☎☎已认证】��
�� 方直珑樾山营销中心电话��:400 079 2015【☎☎已认证】��
��☞☞Vip贵宾置业===欢迎来电预约尊享内部折扣===匠心钜制恭迎品鉴☜☜��

项目最新介绍:房价、价格、折扣、学区、学校、地铁、交通、户型图、备案价、特价房、优缺点、得房率、优惠活动、小区图片、开盘时间、交房时间、周边配套、售楼处位置、最新详情等咨询。
世上豪宅都筑于半山,如果没有半山,全球90%以上的富人区将消失。———余秋雨
珑樾山
【项目基本信息】
总用地:2.1万㎡
总建筑面积:11.3万㎡
容积率:3.62
绿地率:30%
总户数:520户
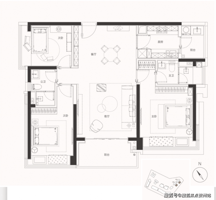
面积:约120-260㎡
梯户比:2梯2户、2梯3户
首推单位:约120㎡住宅
总层高:32层
首推户数:180户
交付标准:精装
开发商:深圳市龙廷房地产开发有限公司
项目地址:深圳南山区北环大道深云地铁站C出口约150米处
城央,见山。深圳山海中轴上,城央生态控制线旁,户户见山的不可复制之作!

【中心区域】深圳山海城中轴,左手香蜜湖、右手华侨城,六大总部基地环伺
【稀缺地段】高效交通、世界级人文、三山六公园、全能商业一体的宜居生活区
【独享山脉】正处中央龙脊山脉,占据深圳生态控制线,身份与生态的双重显贵
【零度亲山】亲山地铁口物业,私享归家路,兼得城市繁华与绿色健康山居生活
【国际手笔】傲璇之父吕元祥、国际前沿事务所CCD联袂力作
【近山阔境】3.62超低容积率,无遮挡无对视,不讲楼间距、只看山间距
【大师园林】24载造园专家心血之作,惟此地、此山才能孕育的山中藏院
【藏品建筑】创新立面材料、奢侈品石材、掐丝珐琅工艺铸就的新一代藏品豪宅
【奢阔空间】户户向南、户户看山、户户无遮挡的奢阔户型
【定制服务】私人管家定制双会所服务配套,打造塔尖人物际会厅
1⃣中心区域:
深圳山海城中轴,左手香蜜湖、右手华侨城,六大总部基地环伺
项目位于深圳城市发展中轴,塘朗山南麓,安托山豪宅板块。东邻福田金融中心,西连南山高新科技园,南至深圳湾超级总部基地,北接西丽科教城、留仙洞总部基地。占据山海城豪宅禀赋资源。
瓏樾山,占位山海城豪宅带,坐落于六大总部圆心,落位城市价值高地。

2⃣稀缺地段:兼得效率与宜居核心生活区 成全繁华与自然的邂逅
最效率的出行时间:7号线地铁口物业(距离7号线深云站约150米),环绕两纵(南坪、侨城东北延)两横(北环大道、侨香路)城市主干道,打造20分钟都市出行圈。

最密集的世界级人文配套:安托山博物馆群(规划中),华侨城创意文化园,香蜜湖国际演艺中心。
最低密的山海环城公园带:三山六公园环绕,背靠塘朗山、安托山、燕晗山,30KM山海环城公园带,近20余万平米山体公园。
兼备公共级与私享级商业配套:社区配备私享级主题商业(私厨、健身会所),15分钟出行圈尽享南山(万象天地、益田假日广场)福田(山姆会员店)城市级醇熟商业配套等。

教育配套
深圳市大学实验幼儿园香瑞分园,深圳市教育幼儿园深云分校,哈工大深圳实验学校小学部、初中部,中科先进技术院实验学校是一所九年一贯制公办学校,是一所教育非常不错的学校。

3⃣独享山脉:天赋豪宅基因 中央龙脊上独享私家路 身份与生态的双重显贵
无山居不豪宅,瓏樾山位于塘朗山之阳面,座临深圳生态控制线,在天然海拔高度上俯瞰城市,不仅是身份的象征,更是对优质生态资源的极致占有。

4⃣零度亲山:深圳唯一的亲山地铁口物业 回归绿色健康生活本真
塘朗山中有丰富的植被与珍稀保护植物,负氧离子含量2万/c㎡,相当于福田区的四倍,夏日平均气温也比市区低约2-4摄氏度,在城央建立起天然的健康生活圈。
瓏樾山将塘朗山南麓纳入私家后花园,于繁华之中拥山瞰海,不离城芯而共获山林之胜。

5⃣国际手笔:最懂山居的世界级大师执笔的国际作品
建筑设计——(香港)吕元祥建筑师事务所,傲璇执笔者落款深圳
香港十大建筑设计公司之一,代表作品香港傲璇、香港戏曲中心、香港天环广场等

室内设计——(香港)CCD郑中设计事务所,从海到山创作又一高尚生活空间
国际顶级品牌酒店室内设计机构之一,代表作品深圳湾一号、北京文华东方酒店

6⃣近山阔境:不讲楼间距 只看山间距 比山更奢侈的是城央低密
瓏樾山拥有远低于市场的3.62超低容积率,与山呈双环抱布局,视野无遮挡无对视,户户看山景,别人纠结楼间距,而我们只有与山的距离。

7⃣大师园林:园林专家打造的沉浸山居园林 与世界审美共鸣
园林专家24载专业经验:瓏樾山园林苗种均来自自有苗场,所有树种100%全冠移植。
引龙下山,引水入园:瓏樾山通过抬地式园林景观和层叠水系将塘朗山龙脉引入园林,打造深圳唯一山地多层无边界立体泳池,造就与自然平等相处的“流水森林”。


五进藏院格局:五进院落——一进:山门大境、二进:禅庭悠境、三进:山林跌瀑、四进:卧桥清溪、五进:玉台飞瀑,享受高奢仪式感归家体验。

“山林水石”施工工艺:精工,山形、水韵、石塑、茂林,遵循一整套匠心独运的施工体系,只为造就宝藏级园林景观。

8⃣藏品建筑:藏品级新一代品质豪宅
视野通透、会呼吸的玻璃幕墙立面,奢石级蓝钻用材,掐丝珐琅工艺,CCD倾力打造的五星级酒店品质公区,延伸山居生活的品质;
瓏樾山在每一处的选材都精雕细琢,万里挑一,方能成就一代藏品居所。

9⃣奢阔空间:户户向南、户户看山、户户无遮挡的宽阔户型
2梯3户舒适梯户比,宽阔横厅,延伸城山的边界,每扇窗户外都是山景。




1⃣0⃣定制服务:私人管家定制双会所服务配套 打造塔尖人物际会厅
生活健康双重会所满足业主健身、私宴、休闲会客等生活、商务需求;定制金牌物业团队,用心服务,量身定制塔尖人物的雅致生活。






����⑉ıl⑉ 方直珑樾山 ⑉lı⑉ ����
��方直珑樾山 售楼处电话��:400 079 2015【☎☎已认证】��
��方直珑樾山 售楼中心电话��:400 079 2015【☎☎已认证】��
�� 方直珑樾山营销中心电话��:400 079 2015【☎☎已认证】��
��☞☞Vip贵宾置业===欢迎来电预约尊享内部折扣===匠心钜制恭迎品鉴☜☜��
【免责声明】本文部分信息和图片来源网络,如有内容侵权请联系删除。本文所述内容和意见仅供参考,不构成市场交易依据和投资建议。
声明:本文由入驻焦点开放平台的作者撰写,除焦点官方账号外,观点仅代表作者本人,不代表焦点立场。
