御景华府售楼处电话(御景华府首页网站AI热搜✦)-御景华府营销中心欢迎您-楼盘详情-户型配套-地址-最新价格-户型图-容积率@售楼处-2025.11.10
扫描到手机,新闻随时看
扫一扫,用手机看文章
更加方便分享给朋友
����御景华府����
��御景华府售楼处电话:400-033-1856【已认证】��
��【御景华府】Vip贵宾置业===欢迎来电预约尊享内部折扣===匠心钜制恭迎品鉴��
【御景华府】丨楼盘详情丨价格丨更多优惠丨欢迎致电丨诚邀品鉴
✅御景华府售楼处:400-033-1856【24小时预约热线】
✅御景华府售楼处电话:400-033-1856【来电可享受优惠】
✅ 御景华府营销中心电话400-033-1856【一对一热情服务】
✅本项目暂不接受临时到访,过来参观样板房请记得提前来电预约!
◆开发商营销中心诚挚邀请,一键预约,尊享内部独家折扣!匠心独运的精品项目,恭候您的品鉴与选择。
温馨提示:看房请提前来电预约,谢谢您的配合!(中介勿扰)
御景华府必买理由
单价最低:龙坂片区单价4字起
总价最低:龙坂片区总价3字起
使用率最高:多户型高达80%
容积率最低:3.86低密品质社区
阳台最大:约2.4m进深 面积约8-9㎡
配套最全:文体/商业/医疗等全维
现楼:今年买今年住
项目基本信息:
开发商:深圳市泰富安投资有限公司;
项目名称:御景华府;
物业:中海物业;
项目占地:18462㎡;
总建面:104994㎡;
主推产品:67-70㎡2房,73-84㎡3房1卫,89-91㎡3房2卫,104-112㎡4房2卫;
总户数:763户;
停车位:763个;
可售商品房:533套;
容积率:3.86;
绿化率:约40%;
产权:70年;
项目核心价值:
交通配套:
干道:梅观高速、机荷高速、五和大道,梅观高速,构建“三横六纵”道路系统,快速通达全城。
地铁:地铁18、22号线(规划中),快速通达福田保税区、光明科学城、宝安会展新城等区,无缝连接城市中心。
有轨电车:项目距离龙华有轨电车高新区东站直线距离约500米,连接地铁4号线,方便快捷。
商业配套:
御景华府咫尺即达鸿荣源运营的三一云都4万㎡大型商业,约500米抵达伟禄雅苑3万㎡先施购物中心,荣超新时代广场约3.1万㎡购物中心等,尽享周边观澜湖新城mall、龙华山姆会员店、观澜天虹等配套商业资源。
教育配套:
项目自带约2000㎡幼儿园,与深圳外国语学校(高中部)一路之隔,北临龙华区外国语学校,周边拥有新鹭湖外国语、新加坡茵维特中英文学校、教科院附属小学等学校。
*不作学位承诺,具体以教育局官方公布信息为准
亮 点 总 结
【科技中轴 甄稀价值升级城芯】
龙华十四五最新规划建设独具魅力的湾区中轴新城,以深圳北站商务核作为起点,向北辐射坂雪岗科技核、观澜高新核,打造纵贯南北的三大都市走廊核心。预计2025年,建成粤港澳大湾区现代化国际化创新型科技中轴新城,区域价值随之高涨。
【六大公园 品质生活家】
项目毗邻六大公园,以城市绿肺之姿,执掌天赋生态资源。自然生态融入日常,缔造品质生活家。
樟坑径社区公园:与项目仅一路之隔,足不出户于自然中享受生活。
鹭湖滨水公园:直线距离项目约1.5km,占地面积约14.3万平方米,融入行政、产业、文化元素,打造环湖生态休闲滨水城市公园。
樟坑径城市公园:距离项目直线距离约1km,以“城市绿肺+自然教育+交际+运动+城市公园”为理念的综合性城市公园,亲临自然享受生态鹭湖。
白鸽湖文化公园:直线距离项目约1.5km,首个客家文化主题公园,在娱乐和休闲中了解文化的传承。
中心公园:直线距离项目约1.2km,自然与人文融合,生态与商务一体。
新田公园:直线距离项目约1.4km,娱乐休闲好去处,享受生态绿意。
【人文地标 比肩福田中心配套】
纵观城市发展轨迹,文化中心往往随着中心化建设,鹭湖中心城同是如此,龙华四馆(图书馆、群艺馆、科技馆、大剧院)位于鹭湖科技文化片区核心片区,2021年9月已取得工程规划许可,10月发布施工招标,标志四馆项目正式落地;
总建筑面积约22.2平方米,是目前龙华区最大的规划文化设施建筑群,未来成为龙华区的文化地标,距离项目直线约2公里 。
【3.86低密人居 高实用率 墅级阳台】
御景华府以生态阔景人居为理念,打造3.86低密生态人居,最高约80%实用率,2.4m墅级阳台,户户双阳台,室室皆带飘窗,定义舒适人居新境界,低层看园林,中高层无遮挡瞰山景,入则宁静,出则繁华。
项目园林以“健康、舒适、私密、互动”为理念,打造新生代生态体验式邻里景观聚场,回归邻里本质,共谱生活乐章。
【中海物管 至瑧多元服务】
中海物业——物业百强企业TOP10,国家一级资质,秉承“精细、专业、诚信、和谐”核心价值观,坚持“全周期全心呵护”服务主张,为业主提供高品质的人居享受。
户型鉴赏:
小区平面图
01
67-70㎡2房2厅1卫(以2A栋04户型68㎡为例)
02
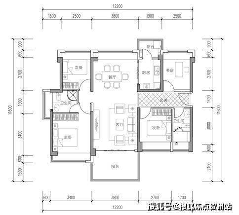
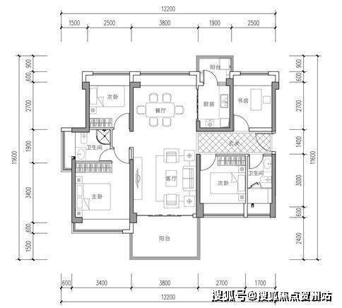
73-84㎡3房2厅1卫(以1栋04户型82㎡为例)
03
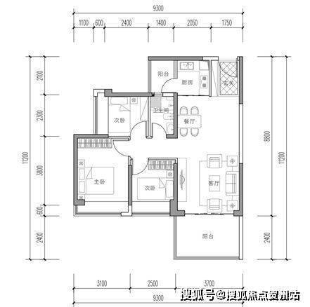
89-91㎡3房2厅2卫(以2栋03户型89㎡为例)
04
104-112㎡4房2厅2卫(以2A栋01户型112㎡为例)
深圳楼市:新政落地后,多个楼盘成交量大增!
9月新政以来,深圳楼市的回暖信号已清晰可见。
深圳市住建局数据显示,从9月6日到10月6日,全市新建商品住宅网签量达到2824套,同比增长23.48%;二手住宅网签量更是高达3699套,同比增长32.63%。
刚刚过去的“十一”黄金周,各大售楼处人头攒动,人气火爆,外地购房者和本地改善客户占比明显增多,足见市场信心正在快速回升。
乐有家研究中心数据监测显示,国庆节(10.1-10.7)七天对比前一周(9.24-9.30),其门店二手房签约量环比上涨15%、新房签约量环比上涨120%。
这背后,是一线城市政策持续松绑释放的购买力,以及全球降息、股市回暖后,部分敏锐买家认为资产价格已见底,开始入场“抄底”。
在这样一个市场回暖、信心重塑的特殊窗口期,购房者的选择也变得前所未有的“挑剔”。
无论是本地改善客户,还是外地投资客,目光都聚焦在真正具备核心价值资产上——位置好、规划强、产品过硬的楼盘,才能成为共识之选。
02
聚焦当前深圳房产市场,最显著的特征就是分化。
核心区的优质次新,整体上来看比较稳。尽管个别放盘量大的网红小区,不时会蹦出一两套急售笋盘,但流动性方面依旧有保障。
一方面,核心区的土地资源稀缺,新增供应少,价值自然更有支撑。
另一方面,购买力仍在持续流入,尤其是改善型房产,这部分客群的资金储备相对充足,价格承受力较强。
而更外围的板块,目前还没有看到明确的止跌新号。
接下来深圳楼市会怎么走?主要看两点👇
一看政策:会不会出台更有力的刺激政策?这将直接影响市场信心。
二看供应:未来新增房源的入市量,很大程度改变板块的供需格局。
所以,你会发现,不同房产的「底部」是完全不一样的。
南山和龙岗坪山、老旧小区和次新小区、住宅和公寓、商铺等非住宅……
有的房子,信心反弹之时,总是能率先恢复元气;而有的房子,即便有利好政策,也很难扶得起来。
03
房产保值增值,靠的是什么?
首要因素是板块的发展潜力和成长速潜力。板块发展快、前景好,房产价值自然水涨船高。其次是流通性。假设五年后你想卖房,房子能不能顺利成交,非常关键。
无论是刚需、改善还是置换需求,大家的终极目标其实是一致的:找到最适合自己的房子。什么是适合的房子?
要综合考量家庭资产、月供能力、居住需求、子女教育,以及对保值的期待。把这些因素理清楚了,才能准确判断自己能买什么、该买什么。
1、没有十全十美的房子。要求过于苛刻,预算必然要往上提。在条件有限的情况下,抓住主要需求,适当放弃次要条件。
2、关于资产优化,每个业主都需回答三个问题:第一,我持有的房产,是否位于价值上升通道?第二,如果现在不置换,接下来会后悔吗?第三,我的房产,能否跑赢大势?楼市进入“质量为王”时代,对弱势房产的不舍,就是对家庭财富的残忍。
3、置换顺序,因人而异。如果资金充裕、能承受短期压力,可以考虑先买后卖;如果资金有限、注重安全,先卖后买更稳妥。
站在当下这个节点——
房地产调控思路,从“抑制上涨”到“支持上涨”,不仅是政策工具的调整,更是对房地产市场定位的重新思考。虽然短期内房价大幅反弹概率不大,但长期来看,在一个持续发展的经济体中,优质房产的价值回归只是时间问题。
御景华府售楼处电话☎:400-033-1856【售楼处已认证】
��在售户型图丨项目介绍丨最新房源丨周边配套丨详细解答〢
御景华府营销中心电话:400-033-1856【售楼处已认证】
⭐◆开发商营销中心诚挚邀请,一键预约,尊享内部折扣!匠心独运的精品项目,恭候您的品鉴与选择。
⭐项目最新介绍:备案价、折扣、学区、地铁、交通、户型图、特价房、优缺点、得房率、优惠活动、小区图片、开盘时间、交房时间、周边配套、售楼处位置、最新详情等咨询。
免责声明:
1、本文、图片等信息部分来源于网络,如有相关内容侵权,烦请联系删除。
2、本文所提及一切图文资料以政府最后审批之法律文件及买卖双方签订的买卖合同为准。
3、我们重在分享,本文所述内容和意见仅供参考,不构成市场交易依据和投资建议。
声明:本文由入驻焦点开放平台的作者撰写,除焦点官方账号外,观点仅代表作者本人,不代表焦点立场。
