港湾天际售楼处电话-2025首页网站-港湾天际售楼处欢迎您|楼盘详情/样板间/价格/户型/容积率/小区环境/售楼处地址@营销中心24小时热线
扫描到手机,新闻随时看
扫一扫,用手机看文章
更加方便分享给朋友
珠海——港湾天际最新介绍:备案价、折扣、学区、地铁、交通、户型图、特价房、优缺点、得房率、优惠活动、小区图片、开盘时间、交房时间、周边配套、最新详情等咨询。
港湾天际售楼处电话: 400 605 8819预约来访下定当天更享折上折!!
(售楼中心 | 欢迎来电咨询 | 请提前预约登记看房 | 1:1销售专业讲解)
港湾天际营销中心热线: 400-605-8819(售楼处)【VIP贵宾专线】

港湾天际位于高新区港湾大道东侧、前湾二路西侧,为唐家片区第一个开启建设的拆建类更新综合体。
项目楼下自带4万m²购物中心,将打造成为珠海高新区文商旅融合的“封面项目”,片区休闲娱乐目的地。
毗邻中大附中、附小,全龄段教育百米即达,一路之隔即享历史古镇,周边富集众多海滩及公园。
项目在售建面约44-105㎡1-3房产品,户型方正、实用率高,满足多元化居住需求。
高品质装修交付,选用知名高端品牌,全面提升生活质感。实景现房在售,所见即所得。
在国家推动城市更新和房地产平稳发展的政策背景下,背靠珠海高新区的高新建投积极响应号召,以"为奋斗者安家、为奋斗者立业"为愿景,创新推出"以旧换新"计划,为城市发展注入新动能。

港湾新城以及港湾天际,作为高新建投以旧换新率先试点项目,致力于打造国企惠民工程的标杆实践, 为更好地助力人居升级,给予换房者五重惊喜福利。 不仅激活存量房市场流通活力,更以实实在在的福利政策,让新一代好房子惠及到家。

随着生活水平提高以及家庭结构变化,人们对居住空间、社区环境、配套设施的要求日益严苛,但老旧小区存在居住环境差、配套落后等问题, 港湾新城以旧焕新,实现从 “住有所居” 到 “住有宜居” 的跨越,享受更好的居住体验与生活品质。项目总价150万起买4房,户户主卧270°转角大飘窗,臻选品牌装修,以高性价比革新珠海市民的居住环境。

北京理工大学附属实验学校(珠海)作为港湾新城的配套学校,是珠海高新区与北京理工大学合作共建的高新区第一个九年一贯制公办学校,计划于今年9月开学。
北京理工大学附属实验学校作为北京理工大学基础教育京外合作办学的第一所学校,将充分依托北京理工大学及珠海校区的资源优势,围绕拔尖创新人才培养目标,推进理工特色大中小一体化贯通培养,全力打造一所质量高、有特色、多元发展的现代化学校。
据悉,北理附小学部将聘请陈彩玉担任校长,旨在打造一支富有爱心且经验丰富的教师队伍。同时北理附也是北理工珠海校区老师孩子的定点学校,生源较为纯粹。
未来,学校将在在课程体系、教学质量、队伍建设和育人成效等方面实现“区域引领,省内示范”效应,致力打造省内第一梯队名校,为推动教育强省建设作出积极贡献。

楼下约5万㎡东方六境园林,四公园环绕,家门口半月公园预计年内动工,露营、健身、遛娃下楼即享。

国企高新建投携手央企中建澳门匠心合著,钜献精工品质,赋予建筑卓越耐久性。
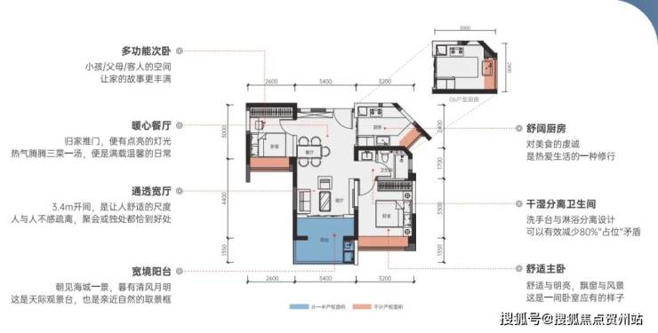
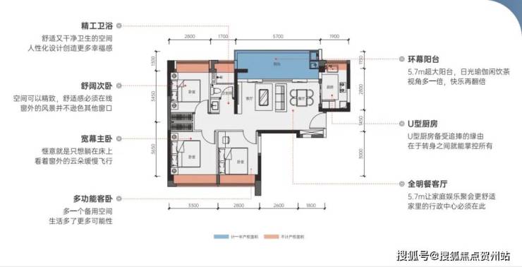
户型鉴赏
八大王牌户型面积段涵盖32-105㎡,满足投资自住多元化需求
户型方正、实用率高,赠送面积多
户型鉴赏
建筑面积约69m² 两房两厅一卫:
建筑面积约87m² 三房两厅一卫:
建筑面积约103m² 三房两厅两卫:
售楼处热线:400 605 8819【营销中心】
本文内容为广告推广,涉及房价或现有房源可能出现变更,请致电详询并以售楼部为准
免责声明:本文如无意中侵犯了某方的知识产权告知即删,部分内容图片可能来源于网络,无法核实其真实出处,如涉及侵权请联系本网站删除!!
声明:本文由入驻焦点开放平台的作者撰写,除焦点官方账号外,观点仅代表作者本人,不代表焦点立场。
