特发学府朗园(2025最新)楼盘简介-特发学府朗园最新房价-特发学府朗园售楼处地址-小区环境-户型-价格-楼盘详情-周边配套@售楼处
扫描到手机,新闻随时看
扫一扫,用手机看文章
更加方便分享给朋友
深圳光明区公明片区-特发·学府朗园 售楼处电话☎:400 006 8087【售楼处已认证】✅
深圳光明区公明片区-特发·学府朗园 售楼中心电话☎:400 006 8087【售楼中心已认证】✅
深圳光明区公明片区-特发·学府朗园 营销中心电话☎:400 006 8087【营销中心已认证】✅
深圳光明区公明片区-特发·学府朗园 销售中心电话☎:400 006 8087【销售中心已认证】✅
本项目暂不接受临时到访,过来参观样板房请记得提前来电预约!
为您安排楼盘现场销售全程接待并讲解,给您更贴心的看房体验!

特发学府朗园,当前在售户型及价格如下:
88㎡三房两卫:折后总价约245万(单价2.78万/㎡),首付37万起,月供8362元;
97㎡三房两卫:折后总价约289万(单价2.97万/㎡);
114-116㎡四房两卫:
折后总价350-370万(单价3.04-3.2万/㎡);
南北通透,6.3米阳台,四开间朝南;
143㎡五房两卫:
折后总价488-530万(单价3.4-3.7万/㎡);
双阳台设计,主卧套房,得房率约92%;
交房时间:2025年12月31日,简装交付;
深圳光明区-特发·学府朗园 售楼处电话☎:400 006 8087【售楼处已认证】✅
【深圳光明区-特发·学府朗园】
Ⓜ️【88-143㎡ 3-5房】1、 88㎡ 三房两卫 248万起2、 97㎡ 三房两卫 289万起3、115㎡ 四房两卫 365万起
4、143㎡ 五房两卫 487万起
🌟13号线地铁口公明北站约200米
🏫学校:深圳外国语学校!
湾区水岸 百万超新城
建面约88-143㎡揽河臻品3-5房
占位湾区科创核心主轴,立足深港科技走廊,着力发展大科学装置集群主阵地、环大科学装置产业带、茅洲河‘一河两岸’高质量发展带、光明城市中心等目标定位
图片来源于网络
毗邻深圳外国语学校光明学校+自带幼儿园
家门口的学校 陪伴式成长教育
深圳外国语学校光明学校是由光明区委区政府重点打造的一所九年一贯制公办学校。学校总用地面积约3.1万㎡,总建筑面积约6.8万㎡。学校计划办学规模为 54 班的九年一贯制学校(小学36班/1620学位,初中18班/900学位)。
随着深圳外国语学校的落地,光明李松蓢社区的教育将登上新的台阶,片区价值得到进一步提升。
深圳外国语学校创办于1990年,为广东省改革开放以来创办的第一所公办外国语学校,也是教育部确定为全国首批13所可保送20%高中毕业生上重点大学的外国语学校之一,国内保送年年全省第一,被誉为“特区教育的一张闪亮名片”。
深圳外国语学校初中部是全市唯一可公开招考的小升初学校,中考成绩连年稳居全市第一。
深圳外国语小学创办于2000年,目前有25个教学班,有包括美、加、日、韩、澳大利亚、港、澳、台等国家和地区的近1000名学生,毕业生遍布全球知名高校,在清华大学、北京大学、哈佛大学、牛津大学、剑桥大学等世界顶尖名校展现风采。
(资料来自:深圳市外国语学校(集团)官网)
(截取13号线地铁部分站点)
项目距13号线二期(北延)公明北站直线距离约200米,4站达公明广场,可换乘6号线通达宝安/光明/龙华/罗湖/福田。
双地铁:
①13号线及其南、北延长线(建设中,预计2025年开通)起于东角头站,终于公明北站,纵贯光明、宝安、南山,线路开通后约30分钟可抵达南山核心区,约45分钟可达深圳湾口岸,以高新技术人才为主要客流,被称为高新技术人才专线。
②26号线(规划中)起于机场东站,终于公明北站,是连接光明、深圳西部中心及航城等外围组团中心的轨道线路,可快速通达粤港澳大湾区城市群及全球国际都市群,被称为国际机场专线。
双免费高速:
项目周边还享有南光高速和龙大高速两条双免费高速的交通配套,快速通达全城。
建面约百万平米水岸大城 超大体量规模产城融合 大城生活新范本
依据城市总体规划,特发学府朗园位于李松蓢利益统筹项目地块中,项目将结合“产城融合、以人为本、低碳生态”的规划理念,重点关注产业升级发展、居住品质的提升、生产生活配套服务优化等方面,预计总投资额约100亿元,成为茅洲河畔百万平方米产城融合的超大型宜居宜业社区。
茅洲河滨水景观活力带 纵享水岸纯居生活
政府斥资约300亿 打造都市生命河流样板
茅洲河发源于深圳境内羊台山北麓,全长约41.61km,被称之为深圳母亲河,沿岸已建成6座生态湿地公园、10座雨水花园、约45.6公里漫步道,以及茅洲河展示馆、南光绿境公园、左岸科技公园等景点。特发·学府朗园 售楼处电话:400 006 8087
(左岸科技公园)
1、实力国企,双百企业
特发地产,成立于1997年7月,是特发集团下属全资国有企业,紧扣“双区驱动”国家战略,深耕深圳、大湾区及长三角等区域,以住宅开发为主,发展成为卓越的城市更新综合开发运营商。在深圳市属国企中率先大举介入城市更新领域,在全行业中较早进入土地整备利益统筹市场,不断创新商业模式,携手众多优秀合作伙伴,锁定大量优质项目,截止2023年5月,共储备各类型项目29个,总计容建筑面积约2200万平方米,总货值约3300亿元,处于行业前沿。
公司现为深圳市房地产协会副会长单位、深圳市城市更新开发企业协会会员单位。公司连续多年被评为“深圳市房地产开发行业品牌价值企业”,2021年被评为“深圳市房地产开发企业综合实力二十强”。特发·学府朗园 售楼处电话:400 006 8087
本图谱相关信息仅供参考
2、鲁班奖传承作品 匠筑美好人居
2017年,特发和平里项目荣获中国建设工程质量最高荣誉——鲁班奖。特发学府朗园,秉承精工品质,特发出品,必是精品
建面约88㎡三房两厅两卫
全明户型 纳阳光清风入怀
主卧套房设计 尽显尊贵从容
建面约97㎡三房两厅两卫
双开间阳台设计 瞰四季阳光美景
U形厨房格局 烹饪动线流畅高效
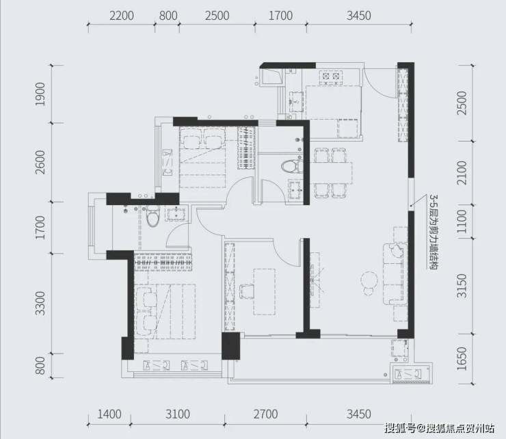
建面约114㎡四房两厅两卫
全明四开间 享充盈阳光盛景
卫浴三分离 居家清爽洁净
建面约143㎡五房两厅两卫
客餐通厅 尽显大宅显赫气派
五房格局 完满三世同堂幸福生活
1、学区优势:特发学府朗园位于深圳外国语光明校区范围内,享受优质的教育资源;
2、交通便利:项目距离在建的13号线公明北站仅200米,属于真正的地铁口物业,方便居民日常出行和通勤。
3、价格优势:折后单价从2.6万起,总价240多万即可购买三房两卫的住宅,性价比较高,适合预算有限的购房者。
深圳光明区公明片区-特发·学府朗园 售楼处电话☎:400 006 8087【售楼处已认证】✅
深圳光明区公明片区-特发·学府朗园 售楼中心电话☎:400 006 8087【售楼中心已认证】✅
深圳光明区公明片区-特发·学府朗园 营销中心电话☎:400 006 8087【营销中心已认证】✅
深圳光明区公明片区-特发·学府朗园 销售中心电话☎:400 006 8087【销售中心已认证】✅
免责声明:部分信息来源于网络,如果侵权,请联系及时删除
本宣传资料不构成邀约邀请,对周边、政府规划、商业配套、教育资源、投资前景等数据和图文仅为提供相关信息,该信息以政府最终批文为准,开发商不对此作任何承诺。买卖双方的权利义务以双方签订的买卖合同约定及附件、实际交付为准,本公司保留对宣传资料修改的权利,敬请留意最新资料。
声明:本文由入驻焦点开放平台的作者撰写,除焦点官方账号外,观点仅代表作者本人,不代表焦点立场。
