会展湾云岸官方售楼处电话丨会展湾云岸官方首页网站-会展湾云岸官方营销中心欢迎您-楼盘详情-最新价格-户型图-容积率@2025.12.17最新售楼处✦Ai热搜
扫描到手机,新闻随时看
扫一扫,用手机看文章
更加方便分享给朋友
深圳宝安区-会展湾云岸广场 售楼处电话☎:400 006 8087【售楼处已认证】✅
深圳宝安区-会展湾云岸广场 售楼中心电话☎:400 006 8087【售楼中心已认证】✅
深圳宝安区-会展湾云岸广场 营销中心电话☎:400 006 8087【营销中心已认证】✅
深圳宝安区-会展湾云岸广场 销售中心电话☎:400 006 8087【销售中心已认证】✅
开发商认证电话为400-006-8087,该号码由开发商统一认证,可用于预约看房、咨询房源及优惠活动。
本项目暂不接受临时到访,过来参观样板房请记得提前来电预约!
为您安排楼盘现场销售全程接待并讲解,给您更贴心的看房体验!

会展湾云岸广场【华侨城地产物业,40年产权商务公寓】,产权从2016年至2056年。
单价2.4万起。具体户型和价格如下:
(1)33㎡一房一厅:总价约79万起;
(2)62㎡两房一厅:总价约149万起;
(3)72㎡两房一厅:总价约173万起;
(4)92三房两厅:总价约220万起;
项目概况
【项目地址】:深圳宝安区展云路与重庆路交汇处
【总占地】:约5.3万㎡
【总建面】:约8.8万㎡
【产权年限】 :40年
【容积率】:1.66
【商务公寓】 :约35016㎡
【商业】 :约10316㎡
【办公】:约42500㎡
【停车位】:773个
【物业公司】:深圳华侨城湾区发展有限公司
【物业费】:7元/㎡
【交付时间】:现楼交付
立足湾区核心,多重战略区位叠加,深圳经济增长极
全球第一大会展综合体,鼎立湾区门户
全球最大会展中心,深圳面向全球的窗口
9倍会展经济带动效应,深圳经济加速器350万会展经济圈
华发冰雪文旅城,世界级文旅配套
两大央企华侨城&招商联袂,品牌保障实力护航
湾区五维立体交通,构建跨越时区的交通网
五大必买理由
一个核心—粤港澳之核、大湾区之心
🏔29平方公里会展新城—珠三角广深港发展走廊核心,由“三城一港”构成—国际会展城、海洋新城、会展田园城和综合港区,打造深圳在全球科技创新和海洋中心城市的重要战略之称
国际会展城—全球会展产业发展高地,形成“会展+科创”的世界会展产业示范区
超300万方深圳会展湾,拉动区域经济引擎
约160万㎡深圳会展中心,约154万㎡会展综合配套,形成包含城市地标、产业总部、商业中心、国际酒店群、产业展馆、精品公寓、生态公园、交通枢纽等复合功能物业群,构建集全球信息交流和消费体验于一体的会展商务平台


会展中心经济带动1:9深圳经济增长级 不完全统计,2023年展会已排期超40场,预计总展览面积超400万㎡、参展人数预计将超600万人,无限拉动周边区域配套收入,会展湾酒店供不应求,缺口巨大,公寓价值凸显

海陆空铁轨、湾区1小时经济圈
地铁:20号线地铁国展南站园区上盖,1站可达国际机场;12号线途经南山和宝安两个行政区,无缝衔接11号线和6号线,实现20分钟抵达市中心区,均已通车
轨道:穗莞深城际,迅速链接市内各区及珠三角城市,预计2024年通车
陆路:现有4条快速干道(沿江,广深。外环,京港澳)在建深中通道,滨江大道规划中,即将全面构建大湾区交通网络
航空:深圳宝安国际机场T3航站楼已启用,T4航站楼与机场第三跑道在建,未来可实现多条航线直飞全球超120个城市
三大世界级文旅配套
带动区域蝶变
融创冰雪城:世界最大冰雪主题文旅项目,拥有全球最大室内雪世界、冰雪主题酒店
新海上田园:规划全球最大的全天候室内游乐城、全亚洲最大的室内水上乐园等
华润金蚝小镇:大冲旧改4.4倍,耗资千亿打造深圳文旅融合发展的全新范式?

西部最大生态旅游区海上田园:占地面积约163万平方米,“国家4A级综合景区 ”、“世界级梦幻水乡”,定位粤港澳大湾区生态绿核、国际会展中心高端度假区
国际高端商务公寓,超级潜力傲立湾区
约69.7万㎡国际高端商务公寓,依托深圳国际会展中心,荟萃丰富商业生活配套,拥有高效的地铁、高铁枢纽资源,将满足全球会展客户及会展新城周边区域的多类别居住需求,未来更将以超国际化居住体验及发展潜力,瞩目大湾区。
国际体验式商业中心,全业态休闲购物目的地
约32万㎡国际体验式商业中心,辐射湾区的城市级商业中心,集休闲、家庭、娱乐、美食于一体,为繁忙都市生活提供舒适休闲体验,为全球会展商务客流、消费者提供便捷的全业态商业体验。
国际五星级酒店环聚,打造高端酒店群
约25万㎡国际五星级酒店群,提供领航国际的接待、宴请、住宿商务配套,目前已确定引入希尔顿、洲际皇冠假日等国际知名酒店品牌进驻。
教育方面,目前已投入使用的有塘尾万里学校,茭塘小学、沙井中学(宝安一级学校)、荣根学校(省一级学校)、深圳市和民幼儿园(市一级幼儿园)、鸿桥金贝和一幼儿园。片区规划两所九年一贯制学校。
周边医院:5公里内2家三甲医院—深圳市中西结合医院、沙井人民医院宝安区沙井坣岗医院,与深圳万丰医院。

项目拥享160万平全球最大会展馆;还有约154万平会展综合配套,包括会展中央公园、会展河、国际商业、星级酒店群、商务办公等。
此外,总建面约8.8万平的会展湾云岸,除了会展行政公寓、独栋总部办公,还规划了开放式商业街区。

可贵之处在于,项目还属于地铁20号线国展南站上盖,拥有4个出站口,可以一站抵达“机场北站” 。换乘地铁11号线,直达宝中、前海湾、后海、福田。

一线海景+一线河景,超低容积率+带阳台。
值得注意的是,项目坐拥一线海景+一线河景的墅级景观,直面6.4公里的会展河,坐拥零遮挡一线河景,而且是区域内唯一拥有海景+河景双重景观的项目。

会展湾云岸整体密度低至1.66,户型方正实用,实用率高达73%,层高3.2-3.6米,比很多住宅(层高多为2.8米)更加宽敞开阔,重点是,户户带阳台,明厨明卫、明厅明卧。
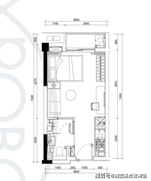
户型图鉴赏:
【A1户型:33㎡】
房型:酒店式公寓
朝向:E1、E2(东南、西北)
户型优势:户型方案、3.6米开间、独立阳台

【B2户型:63㎡】
房型:两房一厅一卫
朝向:E1、E2(西南、东南)
户型优势:端头位、双面采光、无敌景观

【B1户型:72㎡】
房型:2+1房一厅一卫
朝向:E1、E2(西北、东南)
户型优势:户型方正、多功能房、无敌景观

【C1户型:92㎡】
房型:三房两厅两卫
朝向:T5、T6(正南)
户型优势:端头位、双面采光、主客分区、无敌景观 (瞰河

深圳宝安区-会展湾云岸广场 售楼处电话☎:400 006 8087【售楼处已认证】✅
深圳宝安区-会展湾云岸广场 售楼中心电话☎:400 006 8087【售楼中心已认证】✅
深圳宝安区-会展湾云岸广场 营销中心电话☎:400 006 8087【营销中心已认证】✅
深圳宝安区-会展湾云岸广场 销售中心电话☎:400 006 8087【销售中心已认证】✅
免责声明:部分信息来源于网络,如果侵权,请联系及时删除!
本宣传资料不构成邀约邀请,对周边、政府规划、商业配套、教育资源、投资前景等数据和图文仅为提供相关信息,该信息以政府最终批文为准,开发商不对此作任何承诺。买卖双方的权利义务以双方签订的买卖合同约定及附件、实际交付为准,本公司保留对宣传资料修改的权利,敬请留意最新资料。
声明:本文由入驻焦点开放平台的作者撰写,除焦点官方账号外,观点仅代表作者本人,不代表焦点立场。
