富通九曜公馆售楼处(富通九曜公馆)首页网站-富通九曜公馆营销中心欢迎您-楼盘详情-最新价格-户型图-容积率@最新售楼处中心
扫描到手机,新闻随时看
扫一扫,用手机看文章
更加方便分享给朋友
富通九曜公馆- 启幕城芯繁华 ��主力建面约96-360㎡现楼 悬空泳池+玻璃幕墙,颠覆传统人居体验
开发商售楼处24小时电话:400-065-2898(预约咨询热线)现场详细解答丨项目介绍丨户型图丨在售房源丨特价房丨学校丨交通位置丨样板房丨小区图片丨交房时间丨周边配套
项目名称:富通九曜公馆
开发商:富通新光房地产开发有限公司
项目地址:福田区新沙路18号
占地面积:约1.7万㎡
总建筑面积:11.8万㎡
建筑类型:住宅、公寓,幼儿园 商业裙楼
物业公司:世邦魏理仕
物业费:住宅8.3/平/月公寓:9.9元
楼栋数:4栋
总户数:1387户
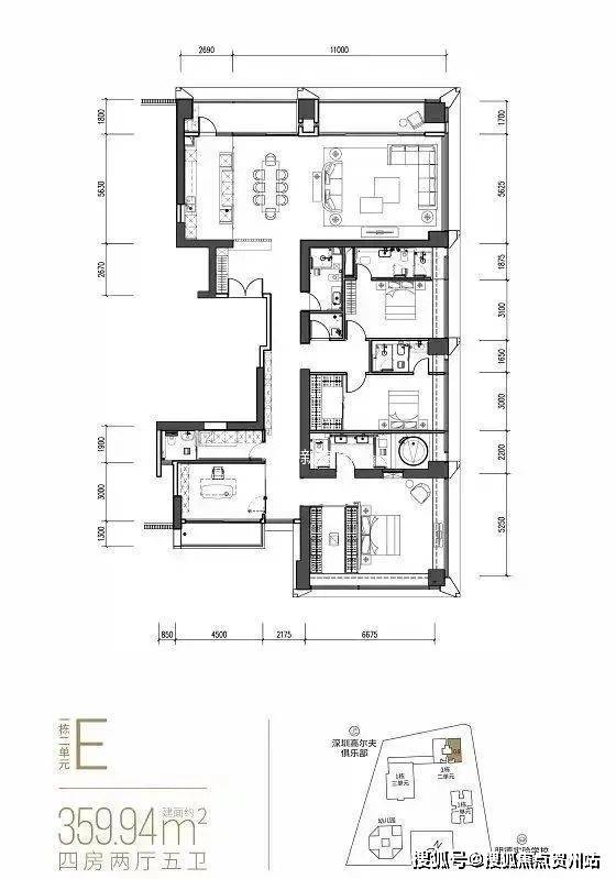
产品面积段:住宅:96-116-121㎡-360㎡公寓:245-337㎡ 3-4房665㎡顶复
梯户比:1栋2单元4梯6户,46-56层2梯2户,3单元公寓2梯3户
容积率:7.05
绿化率:30%
使用率:75%
车位比:1360 1:1
楼层:上舍21层,2单元41层-3单元59层
层高:3.15m 公寓:3.6米 住宅大户型3.4米
交楼时间:现楼
交付标准:毛坯
产权年限:70年(2018-88年)
房屋用途:住宅 公寓
单价:245平公寓:6.8-9万 337平9-10万住宅:360平12万-13万
学位: 明德实验五洲校区, 贝赛思双语学校
247平 【02户型3房】
360平 【D户型5房】
360平 【09户型4房】
360平【 08户型4房】
96平 【B02/05户型2房】
【深圳首个网红地标配套“全悬空空中连廊+空中透明无边泳池”】
100M高空打造全悬挑空中连廊,空中透明无边际泳池,整个连廊敞开面对公园方向,将高尔夫公园景观和城市景观尽收眼底。
【大师执笔,镌刻时代美学著作】
程绍正韬、户田芳树、李玮珉、CCD、筑博等倾力之作,以国际化视野精心铸就顶尖豪宅。
【奢适园林,东方美学大师程绍正韬操刀】
将自然艺术与东方文化植入景观空间,既注重礼序人文,更不失自然趣味,以现代手法对传统美学进行再设计,打造步移景异之趣。
【悦府同标东方美学人文泛大堂】
秉承现代东方人文主义设计理念,融合哲思、人文、美学,展现对人性的关怀和尊重,让大堂成为一个从城市回归安逸居所的精神逗留空间,给予生活仪式感与尊贵感。
富通九曜公馆的开发商是深圳市富通新光房地产开发有限责任公司。作为一家有着丰富房地产开发经验的知名企业,深圳市富通新光房地产开发有限责任公司一直秉持着“质量第一、信誉至上”的经营理念,致力于为购房者打造高品质的居住环境。在富通九曜公馆的开发过程中,该公司充分发挥了自身的专业优势,从规划设计到施工建设,每一个环节都严格把关,确保项目的品质和进度。
项目坐拥香蜜湖金融中心南区,这里是南方金融中心的璀璨明珠。项目周边精心规划有香梅路延长线与福华一路延长线,它们将穿越深圳高尔夫公园,构建起香蜜湖北、中、南区的高效内部交通网络。展望未来,项目仅需约一公里即可直达香蜜湖金融中心中区,与国际交流中心、深圳展览馆、国际演艺中心以及深圳金融文化中心等四大地标性配套设施为邻,尽享城市核心资源。

【世界级商圈环绕,八大城市配套触手可及,CBD繁华尽揽于怀】
项目坐落于福田CBD的心脏地带,汇聚了行政、会展、金融、文化、酒店、购物、公园、交通等八大核心功能,尽享城市核心资源。
交通方面: 号线购物公园站1.2公里,7号线上沙站,沙尾站1.6-1.7公里,距福田CBD仅1.7公里,香蜜湖5.2公里,自驾都在8-12分钟范围内。门前的新沙路连通滨海大道,交通几乎轻松触达全市。

教育方面:项目周边有多所优质的学校,如KASCA卡思佳·国际托育园、深圳贝赛思双语学校、华强职业技术学校等,为居民子女提供了良好的教育环境。
商圈方面:富通九耀公馆周边有多个商业中心和购物中心,如祥云·天都世纪商业中心、深茂商业中心等,为居民提供了丰富的购物选择。无论是日常用品还是休闲娱乐,都能在这里找到满意的选择。
如需了解更多内部折扣详情,
欢迎咨询开发商售楼处咨询/预约电话☎:400-065-2898(中介请勿扰)
温馨提示:看房请务必电话提前预约,避免临时无人接待,感谢您的配合!
开发商承诺:一对一专属开发商销售服务,尊享开发商内部优惠服务!
声明:本文由入驻焦点开放平台的作者撰写,除焦点官方账号外,观点仅代表作者本人,不代表焦点立场。
