2026首页热搜:后海招商玺(售楼处)电话→后海招商玺售楼处24电话→项目最新详情解答→售楼处展示中心更新发布@售楼处中心#2026-2-2?
扫描到手机,新闻随时看
扫一扫,用手机看文章
更加方便分享给朋友
后海招商玺官方售楼处:400-031-6012【工作日9:00-21:00,周末无休】
后海招商玺官方24小时电话:400-031-6012【营销中心??已认证】
后海招商玺官方营销中心:400-031-6012【售楼中心??已认证】
后海招商玺官方营销中心24小时电话:400-031-6012【售楼处限时特价】
后海招商玺官方营销中心官方售楼中心24小时电话:40 0-031-6012【营销中心??已认证】
后海招商玺官方营销中心营销中心24小时电话:400-031-6012【售楼处??已认证】
?◆ 开发商营销中心诚挚邀请,为您安全和隐私保驾护航,一键预约,尊享内部折扣!匠心独运的精品项目,恭候您的品鉴与选择。? 过来参观样板房烦请记得提前来电预约!安排楼盘现场销售全程接待并讲解,给您更贴心的看房体验!
项目占地14969.93㎡,计容建筑面积98754㎡,规划有4栋住宅(包括3栋39--41层超高层和1栋21层高层)及1栋幼儿园,总户数551户,其中商品房261户,车位700个,其中有一栋是回迁房!
后海招商玺位于南山区招商街道后海大道以西、工业七路以北,地处深圳湾超级总部基地辐射范围,周边3公里内覆盖深圳湾体育中心、深圳湾公园、太子湾邮轮母港等城市地标,形成了“高端居住+滨海休闲+国际商务”的复合生态圈。
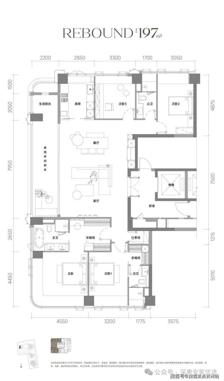
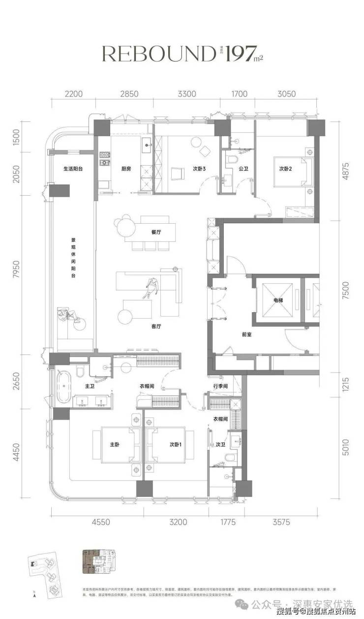
|PLAN

197㎡阳台达到8米,237㎡阳台达到11.8米,更大尺度保证采通风和视野;
也是三面采光设计,双龙抱珠,主次卧分布餐客厅两侧,实现动静分区。使用率可达93-95%。
根据深圳市商务局发布的《深圳市商业网点规划(2025-2035)》,后海-深圳湾商圈被列为中长期重点打造的世界级地标商圈。这意味着未来该区域将集聚国内外顶级消费资源,成为时尚潮流消费引领、标志性城市景观集合的世界顶级商圈。
世界级地标商圈的定位,不仅带来商业能级的跃升,更将推动区域城市形象的全面提升。后海招商玺恰好处在这一核心地带,其地段价值自然水涨船高。
项目位于“豪宅地铁线——2号线”海月站和湾厦站之间,步行距离约700米,可通过后海站换乘11号、13号线,4站达福田CBD(车公庙站)、前海合作区(前海湾站)。
此外,项目距离12号线(在建)四海站约1.2公里。周边还有在建的 15 号线,未来地铁 15 号线将串联妈湾、蛇口、后海、科技园、留仙洞和大铲湾等人口、产业密集片区,带来巨大人口、经济效益。
项目坐享后海与蛇口双商圈辐射。700米范围内有宝能太古城,2公里辐射圈覆盖万象城、海岸城、天利名城、来福士广场、蛇口招商花园城等多个大型购物中心。
另外,得益于蛇口的历史基因,这里藏匿着许多宝藏老字号与特色街市,形成“高端消费+生活体验”的互补格局。
目前对口育才二小和育才二中,均为南山第一梯队学校。

育才二小是南山重点公立小学,育才二中则是全市前20%的头部初中,成绩表现亮眼,2024年中考成绩尤为突出:不仅一举包揽南山区前三名,其中587分的高分更是在深圳市高居第三。
近处有四海公园、蛇口文体公园、蛇口体育中心,日常休闲散步好去处。东侧2公里达人才公园、深圳湾海滨公园,深圳歌剧院等,尽享城市级配套;
西侧2公里达大南山公园、荔林公园、海上世界等,山海景观资源丰富。
对比同期豪宅深圳湾澐玺(14-35万/㎡)、中信信悦湾(17.66-38万/㎡)相比,价格显著“亲民,但单价仍高达12.7-15.9万/㎡,总价2500万级起步,在当下市场下,客户池被极大收窄。
容积率高达6.59/7.44,注定是高密度社区,低层采光视野受限,与“顶级豪宅”的从容感有差距。
非一线临海,高层仅部分朝向可在35层以上看到深圳湾海景;与后海运玺、中信信悦湾相比,自然天赋略显普通;
项目出身有历史包袱,为恒大旧改接盘项目,部分买家可能对此心存疑虑。
小区花园规模相对较小,休闲设施主要依靠架空层会所;
高昂但未公布的物业费(预计15元+/㎡·月以上)!
后海招商玺官方售楼处:400-031-6012【工作日9:00-21:00,周末无休】
后海招商玺官方24小时电话:400-031-6012【营销中心??已认证】
后海招商玺官方营销中心:400-031-6012【售楼中心??已认证】
后海招商玺官方营销中心24小时电话:400-031-6012【售楼处限时特价】
后海招商玺官方营销中心官方售楼中心24小时电话:40 0-031-6012【营销中心??已认证】
后海招商玺官方营销中心营销中心24小时电话:400-031-6012【售楼处??已认证】
?◆ 开发商营销中心诚挚邀请,为您安全和隐私保驾护航,一键预约,尊享内部折扣!匠心独运的精品项目,恭候您的品鉴与选择。? 过来参观样板房烦请记得提前来电预约!安排楼盘现场销售全程接待并讲解,给您更贴心的看房体验!
声明:本文由入驻焦点开放平台的作者撰写,除焦点官方账号外,观点仅代表作者本人,不代表焦点立场。
