望海玥家园售楼处(望海玥家园)首页网站-望海玥家园营销中心欢迎您-楼盘详情-最新价格-户型图-容积率#售楼处 2025
扫描到手机,新闻随时看
扫一扫,用手机看文章
更加方便分享给朋友
🌈望海玥🌈
🌈望海玥售楼处电话:400-033-1856【已认证】🌈
🌈Vip贵宾置业===欢迎来电预约尊享内部折扣===匠心钜制恭迎品鉴🌈
【望海玥】丨楼盘详情丨价格丨更多优惠丨欢迎致电丨诚邀品鉴
✅望海玥售楼处:400-033-1856【24小时预约热线】
✅望海玥售楼处电话:400-033-1856【来电可享受优惠】
✅望海玥营销中心电话400-033-1856【一对一热情服务】
✅本项目暂不接受临时到访,过来参观样板房请记得提前来电预约!
◆开发商营销中心诚挚邀请,一键预约,尊享内部独家折扣!匠心独运的精品项目,恭候您的品鉴与选择。
温馨提示:看房请提前来电预约,谢谢您的配合!(中介勿扰)

渔二村旧改项目「望海玥 Sea Moon」,位于位于南山区蛇口街道。具体位置在望海路以北、湾厦路以西,临近蛇口渔港,总结就俩字:“靠海”。
蛇口的滨海惬意生活,一旦品了就终身难戒。蛇口新房的供应少之又少,因此「望海玥」即使项目体量不大,关注度却一直很高。
去年「望海玥」进入到《计划入市项目名单》,首推是海景公寓产品,带精装交付,据悉价格在6-9万/㎡,200万起。
01 地段位置
首先,「望海玥」的地理位置不错,临近大家熟知的「半岛城邦」,距离年底入市的王炸「中信元湾府」也很近,基本上享受到蛇口滨海公共配套,譬如歌剧院、渔人码头、滨海长廊等。
地段特点
① 位于蛇口板块,拥有滨海公共配套和海景资源;
② 户型偏刚需,上车门槛不高;
③ 临近「半岛城邦」/「新玺」生活圈,配建华润商业;
④ 临近蛇口渔港升级改造,连接深圳湾-蛇口滨海长廊;
⑤ 周边是蛇口老街区,生活气息浓厚,非常接地气。
02 产品信息
「望海玥」整个项目地块不大,有三栋高楼和底商,车位470个。
其中1-1栋、1-2栋为住宅,共395套,其中52套为可售商品房,其余为回迁房。2栋为公寓,可售389套。

公寓产品
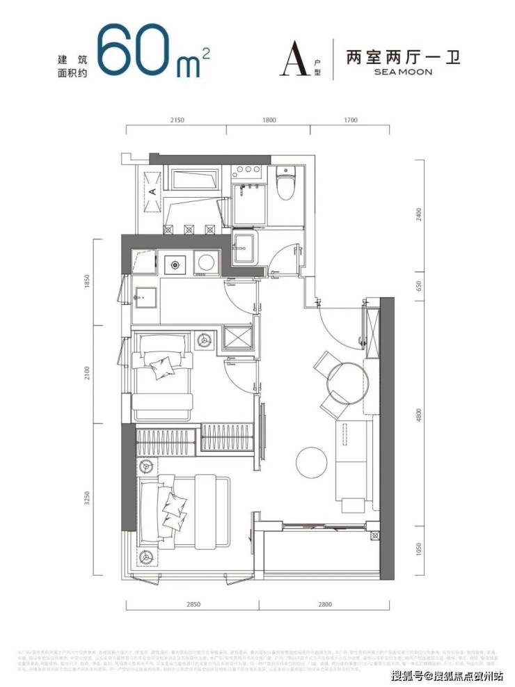
「望海玥」首推公寓389套,高度为35F,户型为36-44-46-60㎡的1-2房,精装交付。
公寓基本上跟住宅的面积错开,蛮适合喜欢蛇口的单身或者小两口自住,目前南向15F以上可以看海。
via@网络 60㎡效果图
「望海玥」项目不是豪宅定位,针对的是刚需及初步改善的居住需求,业态也相对复杂,跟「半岛城邦」及「双玺」这类豪宅的是明显区分开的。不过产品力比周边的一些普通二手盘还是要强点,而且还有部分景观房。
住宅产品
住宅为67-88-95-106-112-125㎡的2-4房,总户数395户。其中包括回迁房有343套,可售商品房仅52套,据悉招商有可能自己消化不对外入市。
其中1-1栋临近望海路,为45F三梯五户住宅楼,这一栋多数户型享有海景资源。
1-2栋在小区内侧,为44F三梯五户住宅楼,前方有35F公寓遮挡。这一栋不临近大马路,没有路噪影响。
03 配套资源
商业配套
「望海玥」自带楼下商业街,而且临近望海路和蛇口老街,周边是非常成熟的居住区,商业配套齐全。
高端的可以到即将开业的「新玺」华润万象商业、蛇口海上世界,驾车还能到即将开业的太子湾K11.
蛇口属于改革开放的早期发展区域,数十年的发展周边还有不少接地气的老街和商铺,像「百草堂」、「鱼仔档」这些老字号就在附近。
交通配套
临近东角头地铁站约200米,目前通蛇口线(2/8号线),未来还会加入13号线南延线,届时东角头站会变为换乘站。蛇口线被称为豪宅线,通达深圳蛇口、后海、超总、华侨城、香蜜湖、市中心区等核心地段,而13号线则通达深圳南北直达光明科学城。
道路交通方面,楼下的望海路作为蛇口的主干道之一,通达深圳湾沙河西路、滨海大道等城市主路,同时也承载了大量的交通压力。
由于蛇口开发过早,拥堵是常态,目前也没有办法快速改善,若望海路下沉能早日落实,应该会优化很多。不过庆幸的是,「望海玥」在望海路东端,没有深入到蛇口内部,交通压力不算大。
教育配套
学校为蛇口育才太子湾学校,属于育才品牌后入驻的学校,比不上传统的育才牌子。
公共资源
正如本文开头所言,蛇口滨海的公共配套比较丰富。除了现成大家都清楚的深圳湾公园长廊、海上世界、艺术馆以及太子湾的配套之外,距离最近的蛇口渔港也即将升级改造,会打造海洋博物馆和文化博览园,不再是一股腥味的内湾。
此后还有不远处的深圳歌剧院加持,未来深圳湾蛇口一带的公共配套是肉眼可见的丰富,如果把交通再完善一点就更好了。
04 往事回味
「渔二村」位于蛇口街道,始建于20世纪20年代初,至今历史已近百年,也是深圳蛇口最古老的渔村之一。
2006年,「渔二村」列入旧改;
2011年,「渔二村」举办项目启动暨合作签约仪式;
2014年,「渔二村」业主签约,于2015年基本完成签约;
2018年,「渔二村」开拆,拆除完毕后便一直作为临时停车场;
2021年,招商接手「渔二村」,并于2022年年底正式开工;
2023年,Sir发布户型图,项目曝出定名「望海玥家园」;
2025年,「望海玥」率先入市公寓产品。
🔘望海玥售楼处电话☎:400-033-1856【售楼处已认证】
🚦在售户型图丨项目介绍丨最新房源丨周边配套丨详细解答〢
🔘望海玥营销中心电话:400-033-1856【售楼处已认证】
⭐◆开发商营销中心诚挚邀请,一键预约,尊享内部折扣!匠心独运的精品项目,恭候您的品鉴与选择。
⭐项目最新介绍:备案价、折扣、学区、地铁、交通、户型图、特价房、优缺点、得房率、优惠活动、小区图片、开盘时间、交房时间、周边配套、售楼处位置、最新详情等咨询。
免责声明:
1、本文、图片等信息部分来源于网络,如有相关内容侵权,烦请联系删除。
2、本文所提及一切图文资料以政府最后审批之法律文件及买卖双方签订的买卖合同为准。
3、我们重在分享,本文所述内容和意见仅供参考,不构成市场交易依据和投资建议。
声明:本文由入驻焦点开放平台的作者撰写,除焦点官方账号外,观点仅代表作者本人,不代表焦点立场。
