琅玥湾佳园(售楼中心)2025首页网站-琅玥湾佳园欢迎您@琅玥湾佳园最新楼盘详情-营销中心电话400-032-8066
扫描到手机,新闻随时看
扫一扫,用手机看文章
更加方便分享给朋友
…琅玥湾佳园……琅玥湾佳园…
基础数据
琅玥湾佳园
【项目名称】琅玥湾佳园
【开发商】深圳市海越锦实业发展有限公司
【项目地址】南山区招商街道赤湾三路与赤湾六路交汇处
【占地面积】约1.1万㎡
【总建筑面积】约7.5万㎡
【建筑类型】2栋住宅
【可售套数】约380套
【产品面积段】建面约113-124-129-167㎡2-5房及少量顶复
【梯户比】5T5/4T4
【容积率】4.77
【使用率】约80%
【车位】330个,1:0.87
【楼层高】共两栋,48F/25F
【交楼时间】25年10月精装交付
【产权年限】70年
项目介绍
琅玥湾佳园位于南山区招商街道赤湾三路与赤湾六路交汇处。金众云山海公馆东区南面,赤湾总部大厦西面。项目总建筑面积1.1万m²,2栋纯住宅,无商业无保障房,南面无高楼无遮挡海景,视野非常开阔,精装交付。
项目信息
【开发商】深圳市海越锦实业发展有限公司
【总占地】约1.1万㎡
【总建面】约7.5万㎡
【容积率】4.77
【栋数】2栋
【总可售户数】约380套
【停车位】330个
【主力户型】建面约113-124-139-167㎡3-5房
户型分析
琅玥湾佳园为纯商品房社区,380套房源,面积段约113-124-140-167㎡3-5房,一共5种户型,分别为113㎡3房2卫,124-139㎡4房2卫,167㎡5+1房3卫,其中124㎡分横厅和竖厅户型,113㎡位于中低区,139、167㎡全部位于高区。
全部为一梯一户且带独立电梯厅,户户带6米宽看海大阳台。
113㎡的3房2厅2卫:位于2-30F,全朝南向,带6.5米宽大阳台。
周边配套
交通:2&5号线交汇站赤湾站步上盖,可乘坐5号线和2号线迅速到达前海宝中及蛇口、深圳湾等核心片区。
商业:旁边开云府还有4.6万㎡的赤湾汇购物中心(在建中)开车10分钟或地铁两个站还能去到海上世界以及全亚洲最大的太子湾K11购物中心(在建中,即将开业)。
教育:南二外赤湾学校,周边还有九年一贯制学校(规划中)、北师大南山附属高中新校区、南山中英文学校、深圳贝赛思国际学校、深美国际学校等教育资源。优劣势分析
优点:1、一梯一户,私家电梯厅;2、南向无高层遮挡,全看海;3、小区非常纯粹,无商业、无保障房、无回迁。
不足:1、小区占地面积偏小,花园偏小;2、周边配套欠缺,便利度低,片区有多个旧改项目,待片区成熟还需一段时间。
113㎡的3房2厅2卫,设计的是竖厅格局,电梯入户送独立公区,LDKB一体化设计,动静分区,三开间朝南,客厅连接次卧出超大观景阳台,主卧大套间设计,二字型厨房带1个小生活阳台,卫生间干湿分离,得房率:72.07%(不含赠送),西南朝向。
124㎡的3+1房2厅2卫,1栋02/2栋04户型,电梯入户送独立公区,设计的是竖厅格局,LDKB一体化设计,动静分区,主卧套间设计,还有一个多功能间可以做书房,U型厨房,公卫三段式分离,得房率:72.07%(不含赠送),西南朝向。
124㎡的4房2厅2卫,1栋01/2栋05户型,电梯入户送独立公区,设计的是横厅南北通透格局,客餐厅6.1米开间,LDKB一体化设计,五开间朝南,主卧大套间设计,6.1米长观景大阳台,U型厨房,公卫三段式分离,得房率:72.07%(不含赠送),西北或东南朝向。
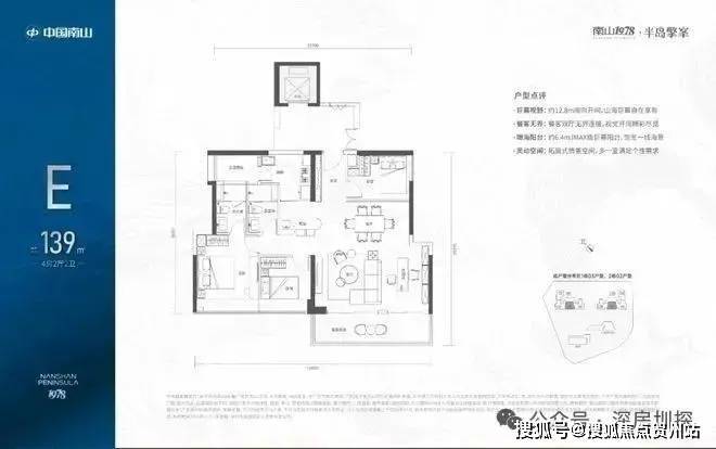
139㎡的4房2厅2卫,1栋03/2栋02高区户型,电梯入户送独立公区,设计的是竖厅类双龙抱珠格局,四开间朝南,主卧大套间设计,有1个多功能间可以做书房,6.4米长观景大阳台,L型厨房带1个生活阳台,卫生间干湿分离,得房率:72.07%(不含赠送),西南朝向。
167㎡的5房2厅3卫,1栋02/2栋03高区户型,电梯入户送独立公区,设计的是竖厅双龙抱珠格局,四开间朝南,超宽敞客厅巨幕阳台,主卧大套间设计,U型厨房,双公卫三段式分离,得房率:72.07%(不含赠送),西南朝向。
声明:本文由入驻焦点开放平台的作者撰写,除焦点官方账号外,观点仅代表作者本人,不代表焦点立场。
