华侨城新玺售楼中心欢迎您【深圳华侨城新玺】咨询楼盘信息/预约看房请拨打本文置顶销售热线!售楼处位置--最新房价-户型图一站式了解!
扫描到手机,新闻随时看
扫一扫,用手机看文章
更加方便分享给朋友
深圳【华侨城新玺】
※※※ 华侨城新玺售楼处电话📞:400 066 0916【☎☎已认证】※※※
※※※ 华侨城新玺售楼处24小时电话:400 066 0916【☎☎已认证】※※※
※※※楼盘项目全面介绍:含开盘消息、交房时间、楼盘详情、房价、户型、详情、得房率、售楼处地址、首页网站、销售中心、楼盘地址、户型图、交通、备案价、项目配套、营销中心、开发商、周边配套等详情咨询※※※
※※※开发商现场销售专业介绍楼盘 预约看房尊享优惠内部折扣※※※
※※※温馨提示:网上展示中心〢欢迎来电咨询〢安全通话隐藏真实号码※

基础资料
🔻开发商:华侨城地产
🔻占地面积:2.5万㎡
🔻总建面:28.9万㎡
🔻产权:40年(18-58年)
🔻总户数:402户
🔻面积:230-280㎡3房3卫,300-380㎡4+1房5卫,576㎡4+1房6卫,600-700㎡6-7房7卫
🔻车位比:1060个1:2.3
🔻梯户比:1栋1/2单元32层以下 3梯2户 /32层以上3梯1户,2栋2梯1户/3梯1户
🔻价格:中区10-16万 高区16-20万
🔻交楼标准:毛坯/精装(1.2万-1.6万/平)
🔻物业公司:华侨城物业
🔻物业管理费:14.8元/㎡
🔻容积率:7.4
🔻绿化:30%
🔻交楼时间:现楼
🔻建筑类型:公寓/商办
🔻层高:1栋3.6米,2栋4米
🔻使用率:75%
🔻楼层高:1栋38层,2栋57层
🔻栋数:3栋
🔻水电:民水民电
🔻商业:自带5万㎡(华润运营)
🔻学校:附近南山外国语滨海学校,蛇口学校,海岸小学,太子湾学校

海景公寓面积:230-280-350-500-630-700㎡单价约16-32万,总价约4000万-2.31亿
商办面积:300-310-320-370-380-430-567-610㎡,单价约9.5-18万,总价2900万-1个亿


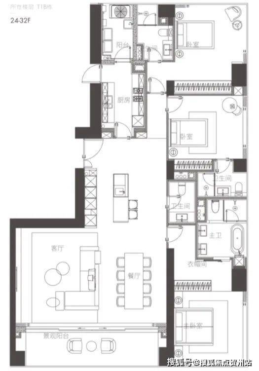
01户型 西端户 约350㎡ 四房两厅四卫45平米(四房两厅四卫)三梯两户270°一线海景
1A栋6-20楼单价:22-27万按揭约:7762-9377万一次性约:7517-9081万01比04户型贵1403万,层差26万
04户型 东端户 约350㎡ 四房两厅四卫(镜像对称户型)
【户型亮点】超9米超宽幕开间,厅出阳台邂逅无垠海景三套房设计,尊贵私属空间主卧L形全景落地窗,270°最佳观海位动静分区布局有序
【一栋一二单元02户型 约230㎡ 三房两厅三卫03户型 约230㎡ 三房两厅三卫(镜像对称户型)230平米(三房两厅三卫)3梯2户南向一线海景
1A栋6-20楼单价:18-22万按揭约:4332-5119万一次性约:4195-4957万03比02户型贵82万,层差17万
1B栋25-30楼单价:17-18万按揭约:4035-4124万一次性约:3908-3994万07比06户型贵41万,层差11万
【户型亮点】双龙抱珠户型设计,户型方正实用双套房朝南,赏南向一线海景广角视野景观阳台,遨游无垠海天
【一栋三四单元】05户型 西端户 约280㎡ 三套房两厅四卫280平米(三房两厅三卫)三梯两户南向看海无遮挡1B栋24-30楼单价:16-19万按揭约:4587-5351万一次性约:4442-5182万08比05户型贵600万,层差16万
08户型 东端户 约280㎡ 三套房两厅四卫
(镜像对称户型)

深圳【华侨城新玺】
※※※ 华侨城新玺售楼处电话📞:400 066 0916【☎☎已认证】※※※
※※※ 华侨城新玺售楼处24小时电话:400 066 0916【☎☎已认证】※※※
※※※楼盘项目全面介绍:含开盘消息、交房时间、楼盘详情、房价、户型、详情、得房率、售楼处地址、首页网站、销售中心、楼盘地址、户型图、交通、备案价、项目配套、营销中心、开发商、周边配套等详情咨询※※※
※※※开发商现场销售专业介绍楼盘 预约看房尊享优惠内部折扣※※※
※※※温馨提示:网上展示中心〢欢迎来电咨询〢安全通话隐藏真实号码※
免责声明:
以上所发布的关于楼盘相关图文信息仅供您买房前参考,以上所有关于本楼盘的图文资料及说明请以最终以项目批文及双方在楼盘营销中心现场签署的买卖最终合同为准;本图文内容如无意中侵犯到某方权益,请联系我们将会及时处理
声明:本文由入驻焦点开放平台的作者撰写,除焦点官方账号外,观点仅代表作者本人,不代表焦点立场。
