深圳-新天石厦铭苑售楼处电话→新天石厦铭苑Ai热搜>新天石厦铭苑营销中心24小时电话>最新房价>楼盘百科详情>售楼处最新发布2025.9.25
扫描到手机,新闻随时看
扫一扫,用手机看文章
更加方便分享给朋友
新天石厦铭苑-启幕城芯繁华 ��主力建面72-138㎡2-4房 毗邻地铁3、7号线石厦站,步行仅500米,贯穿深圳中心
开发商售楼处24小时电话:400-065-2898(预约咨询热线)现场详细解答丨项目介绍丨户型图丨在售房源丨特价房丨学校丨交通位置丨样板房丨小区图片丨交房时间丨周边配套
项目位于福田石厦片区,为石厦村旧改二期。
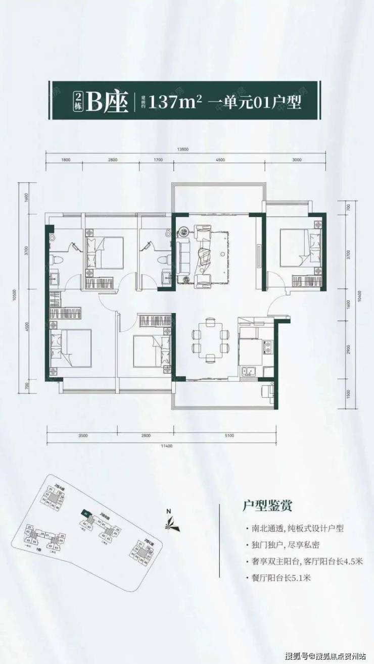
有5栋,共有房源1336套,可售商品住宅246套,1090套房源为回迁房住宅;该5栋建筑主体组成,分为1/2/3栋,其中1栋分为1单元和2单元,2栋分为ABC座,2栋B座由1/2单元组成,3栋为幼儿园;可售的只有2B栋的两个单元个
新天石厦铭苑项目总占地约2.6万平,总建面约29.5万平,容积率:6.28,包含45层,户型为72-138平2-4房。
区位优势:居福田腹地得塔尖精萃
集行政,文化,金融,交通,会展,购物,酒店,公园,住宅等九大优质配套;
积淀深圳40年发展力量,集权力行政中心、金融财富中心、企业总部中心、商业消费中心、文化艺术中心、交通梳纽中心、资讯交流中心、商务社交中心等八大中心于一体,是深圳影响世界的力量。


交通配套
踞立体交通 得无忧出行毗邻地铁3、7号线石厦站,步行仅500米,贯穿深圳中心;临近福田口岸与皇岗口岸,无缝接驳深港两地;穗莞深城际轨道(建设中)2站直达前海,联通两大深港合作区;福田高铁站,快速链接全国。
商业配套
拥三大商圈 揽万象繁华,周边坐拥购物公园、CBD及石厦三大商圈,下楼即享:项目与5万m²马成时代广场为邻,各大品牌下楼即享;地铁一站:COCOPark、皇庭广场、领展中心城、购物公园环伺万象繁华尽在掌握。
教育配套
荔园&红岭双名校旁周边500米内涵盖幼儿园到初中的全龄段教育配套。项目毗邻“省国家级示范性高中“红岭中学(石厦初中部)及荔园小学(众孚校区),以及益强小学和石厦学校中学部,为全龄段教育保驾护航。
医疗配套
开车10-30分钟可达上海医科大学、儿童医院、北大医院、人民医院,北京大学深圳医院,福田人民医院,深圳儿童医院,深圳市福田区中医院,中山大学附属第八医院,福田第二人民医院,深圳市眼科医院,香港大学深圳医院等

生态配套
拥多重景观 享自然生态,项目自带:倾力打造舒适生态人居,内揽无限园林美景;一路之隔:石厦公园,日常居住推窗见景,与家人一起拥抱自然;约600米:五星级皇岗公园,享受多重美景;约1500米:红树林生态公园,享受绿色健康生态。
主推产品:约72-138㎡ 二至四房产品
72-74㎡两房:单卫设计,次卧面宽2.7米,适合单身或小家庭。
88㎡三房:南向采光,双卫设计,但厨房无生活阳台,实用性打折扣。
138㎡四房:南北通透,主卧套间设计,但得房率仅75%,性价比弱于周边二手次新盘。
如需了解更多内部折扣详情,
欢迎咨询开发商售楼处咨询/预约电话☎:400-065-2898(中介请勿扰)
温馨提示:看房请务必电话提前预约,避免临时无人接待,感谢您的配合!
开发商承诺:一对一专属开发商销售服务,尊享开发商内部优惠服务!
声明:本文由入驻焦点开放平台的作者撰写,除焦点官方账号外,观点仅代表作者本人,不代表焦点立场。
