深业世纪山谷·世家最新(营销中心)2025首页网站-深业世纪山谷·世家欢迎您@深业世纪山谷·世家最新楼盘详情-售楼中心-在售户型-备案价@24小时(服务热线)
扫描到手机,新闻随时看
扫一扫,用手机看文章
更加方便分享给朋友
由千亿国企“深业”严苛择址,屹立深湾中轴,融于华侨城贵胄之地,揽纳果岭盛境,融贯大沙河、深圳湾巨幅景观,规划约1.2万m²流动绿洲,雄踞寸土寸金的城市核心宜居之地。携手华阳国际、CCD香港郑中、杜康生等世界知名设计团队倾力匠造。
——项目整体总占地面积4.21万m²,总建筑面积38.92万m²。
——建面约200m²起步的大平层住宅社区,席席珍贵,一席难求。
——3.5米层高 | 8梯3户专梯入户 | 高尔夫头排 | 深圳湾海景
——3大总部基地拱卫
——3大5A景区环抱
——4横3纵6轨全线系统交通
——5大文化艺术配套
——6大高端商圈环伺
——“金钥匙”服务体系标准,360°金牌管家服务
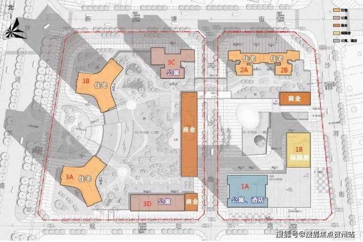
一、项目概况
地理位置:深圳市南山区沙河东路218号,毗邻大沙河生态长廊及名商高尔夫球场,周边环绕华侨城、白石洲等成熟社区
开发商:深业沙河世纪山谷(深圳)投资有限公司,隶属深业集团(深圳市国资委直管国有企业)
占地面积:约4.2万㎡,总建筑面积约39万㎡,容积率5.78,绿化率35%

物业类型:涵盖天际住宅、高端公寓、下沉式商业街等业态
二、产品信息
住宅产品:
户型面积:240㎡、280㎡(3-4房)、380㎡(4+1房),梯户比为8梯3户,部分户型配备独立电梯
楼层与高度:二期住宅建筑高度超247米(69层),楼间距近百米
公寓产品:面积段67-193㎡,折后单价6.1万元/㎡起,总价480-1350万元
交房时间:一期于2023年12月交付,二期住宅预计2026年12月交付
三、价格动态
住宅均价:约8.98万元/㎡(2024年12月报价),总价区间578-3327万元/套
公寓折扣:备案均价8.3万元/㎡,折后单价6.1万元/㎡起(2025年4月信息)
四、配套资源
交通:地铁1号线白石洲站(约149米),五轨环绕;快速路网连接京港澳高速、深南大道等主干道

商业:3km内享华润万象天地、益田假日广场等综合体,未来白石洲旧改将新增商业配套
教育:沙河小学(九年制公立)、南山区第二实验学校初中部等
医疗:深圳华侨城医院、香港大学深圳医院(三甲)
生态:紧邻大沙河生态长廊、深圳湾公园,及名商高尔夫景观

深业世纪山谷·世家产品为纯粹大面积阔宅,包括建面约233/280/386㎡大平层、420-1080㎡云端复式,不俗的总价门槛为业主圈层做了初步筛选。

▲效果图:
五
声明:本文由入驻焦点开放平台的作者撰写,除焦点官方账号外,观点仅代表作者本人,不代表焦点立场。
