深圳(鸿荣源珈誉玖玺)首页网站丨售楼处丨鸿荣源珈誉玖玺楼盘详情/户型/价格/地址
扫描到手机,新闻随时看
扫一扫,用手机看文章
更加方便分享给朋友
鸿荣源珈誉玖玺最新介绍:备案价、折扣、学区、地铁、交通、户型图、特价房、优缺点、得房率、优惠活动、小区图片、开盘时间、交房时间、周边配套、最新详情等咨询。
深圳宝安——鸿荣源珈誉玖玺售楼处电话: 400 605 8819 预约来访下定当天更享折上折!!
(售楼中心 | 欢迎来电咨询 | 请提前预约登记看房 | 1:1销售专业讲解)
鸿荣源珈誉玖玺营销中心热线:400-605-8819(售楼处)【VIP贵宾专线】

鸿荣源珈誉玖玺是鸿荣源集团在深圳西部沙井板块打造的又一力作。
鸿荣源珈誉玖玺作为鸿荣源珈誉府的收官之作,延续了鸿荣源“玖系”豪宅基因,非城市中心、非城市未来价值高地而不落定,旨在提供高品质的生活体验。
【硬核实力 冠领全城】
超硬核战绩:始终遥遥领先 传奇不止 玖玺新续
2023年7月首开,荣获深圳全年销售套数、面积双冠王
2024年1-8月荣获深圳全市销售套数、面积双冠王
【“玖”系瑧品 湾区全能生活大城封笔钜著】
约248万㎡人居全能生活大城,稀缺人居,私藏大平层,湾区圈层进阶首选!
项目位于沙井塘尾地铁站旁,航母级综合体含「湾区壹方」商业、总部办公、高端酒店、商品房住宅、保障房,各方面配套都非常丰富。
不仅刚需三宝齐全,还可以说是“六边形全能楼盘”:优点如下:
①地铁,11号线塘尾站,在售的2区是距离地铁最近,步行约200米左右;
②学校,家门口就是深圳外国语宝安南校区,九年一贯制学校;
③商业,项目楼下就是50万㎡商业包括湾区壹方和奥特莱斯,这个奥特莱斯是重奢版的奥特莱斯,不是卖尾货的奥特拉斯;
④大花园社区,准现楼,得房率高!项目自带2.8万㎡的实景大花园,刚需盘里面有2.8万㎡大花园的凤毛麟角;项目目前是准现房状态,预计明年年底精装交付,今年买明年住;项目户型得房率均在90%左右,最高达97%,超越新规产品户型!
⑤鸿荣源的品质和物管,鸿荣源虽然是民企,但是在深圳是第一梯队的,但凡鸿荣源的物业将来二手市场上也比旁边的非鸿荣源的物业都要卖得更贵一点,因为他保养的更好,服务物业更好;
⑥地段区位好,项目位于西部热点片区,西部城市新中心,粤港澳大湾区的核心内环,靠近国际会展中心、海洋新城和前海扩容区。
商业设施一应俱全
本项目自带宏大的奥特莱斯商业体,占地50万㎡,融合了壹方与奥莱的先进商业模式。此外,项目北侧还毗邻万丰海岸城,其购物中心面积近18万㎡,未来这里将成为沙井地区最高端、最繁华的商业聚集地。
本项目紧邻宝安大道与凤塘大道等城市交通要道,距离11号地铁线“塘尾站”仅约300米。乘坐地铁,仅需4站即可抵达宝安机场,6站可至宝中,7站可达前海湾,8站即至南山,而11站便可到达车公庙,交通极为便捷。
教育配套设施
鸿荣源珈誉府周边,规划了2块教育用地,并已正式确定为深圳外国语宝安学校(集团)南校区,其中一处为63班九年一贯制学校,另一处为27班九年一贯制学校(位于珈誉玖玺旁)。此外,根据宝安区2024年最新的学区划分,该区域的学校包括桥头学校、塘尾万里学校、滨海小学(集团)福桥小学、立新湖学校、凤凰学校等。
鸿荣源珈誉玖玺采用围合式布局,约2.9万㎡艺术大园林,采用世界名画“记忆的永恒”为灵感打造,最大楼间距约161米,全龄段子母双泳池。
纯板楼设计,二梯二户,外立面部分采用铝板,尽显品质;入户大堂采用大理石地面及花纹石材墙面;奢阔3.15m层高,体验归家礼序,尽享圈层人生。
【玖遇·围合式艺术大园林】
约2.9万平方米的宽敞艺术园林,采用围合式布局,使得最大楼间距达到惊人的约161米。这个园林深受西班牙著名画家《记忆的永恒》的超现实主义风格启发,打造出令人仿佛置身于多重梦境般的美妙空间。小区品质
【玖享·尊贵礼遇与全龄活动空间】
社区内精心设计了全龄子母双泳池,为不同年龄层的居民提供丰富的水上活动体验。此外,还配备了亲子乐园和交流花园,打造出宜人的休闲环境,满足各年龄段的活动需求。主出入口处,列阵式的礼仪轴线设计,彰显归家的尊贵与仪式感,让人深切感受到品质生活的魅力。
【玖品·卓越物业 共筑理想生活】
我们携手国家物业管理一级资质企业,共同打造中国高端物业的专属服务。我们不仅致力于实现客户对美好生活的追求,更以卓越的服务品质,荣获中国物业服务品牌100强及粤港澳大湾区物业服务综合实力50强的殊荣。
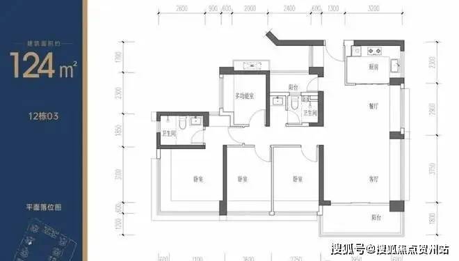
建面约124㎡的4房2厅2卫
124㎡的4房2厅2卫,此户型为东南朝向,设计的是经典竖厅格局,客餐厅位都设计了飘窗,就是为了争取更多的赠送,动静分区,四开间朝南,主卧270°观景飘窗,L型厨房,公卫三段式分离,得房率约88%(包含赠送)。
建面约137㎡的4房2厅2卫
137㎡的4房2厅2卫,设计的是横厅南北通透格局,超宽展面,动静分区,五开间朝南,主卧三面观景飘窗,L型厨房,公卫三段式分离,得房率约90%(包含赠送)。
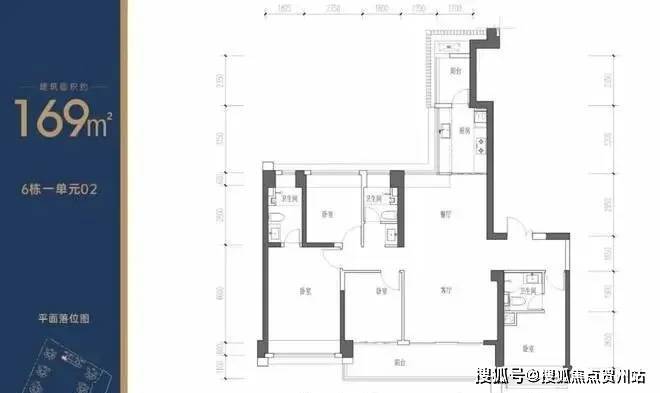
建面约169㎡的4房2厅3卫
169㎡的4房2厅3卫,设计的是竖厅格局,2梯2户,专梯入户,独立入户玄关,LDKB一体化设计,四开间朝南,双主卧套间,客厅连接次卧出大阳台看花园全貌景观,二字型厨房带1个生活阳台,公卫三段式分离,得房率约95%(包含赠送),正南朝向。
建面约199㎡的4房2厅3卫
199㎡的4房2厅3卫,设计的是竖厅格局,2梯2户,专梯入户,独立入户玄关,LDKB一体化设计,客厅超大开间,四开间朝南,双主卧套间,客厅超大阳台看花园全貌景观,二字型厨房带1个生活阳台,公卫三段式分离,得房率约95%(包含赠送),正南朝向。
售楼处热线:400 605 8819【营销中心】
本文内容为广告推广,涉及房价或现有房源可能出现变更,请致电详询并以售楼部为准
免责声明:本文如无意中侵犯了某方的知识产权告知即删,部分内容图片可能来源于网络,无法核实其真实出处,如涉及侵权请联系本网站删除!!
声明:本文由入驻焦点开放平台的作者撰写,除焦点官方账号外,观点仅代表作者本人,不代表焦点立场。
