深圳热搜红盘:满京华云曦花园(售楼处电话)首页网站-满京华云曦花园营销中心-满京华云曦花园欢迎您-楼盘详情-最新价格-户型图-容积率@2025.12.1售楼处
扫描到手机,新闻随时看
扫一扫,用手机看文章
更加方便分享给朋友
深圳——满京华云曦花园最新介绍:备案价、折扣、学区、地铁、交通、户型图、特价房、优缺点、得房率、优惠活动、小区图片、开盘时间、交房时间、周边配套、最新详情等咨询。
满京华云曦花园售楼处电话: 400 -045-8086预约来访下定当天更享折上折!!
(售楼中心 | 欢迎来电咨询 | 请提前预约登记看房 | 1:1销售专业讲解)
满京华云曦花园营销中心热线: 400-045-8086(售楼处)【VIP贵宾专线】

⏩ 项目概要
◇占地面积:约3.8万㎡
◇建筑面积:约16.4万㎡
◇产权年限:70年
◇交付标准:精装交付
◇交付时间:2023年5月31日
◇绿化率:30%
◇容积率:3.0
◇开发商:深圳市恒昌达房地产开发有限公司
◇物业公司:深圳市满京华物业管理有限公司
◇地址:深圳·大鹏新区·迎宾北路荷塘月色公园旁
◇项目共10栋楼:
1号楼公寓(16层)
2-4号楼(23层)住宅,2-23层可售,2梯6户
7-10号楼(18层)住宅,2-18层可售,2梯6户
5号楼回迁房及少量可售单位,(1、6、9、11、15、17、19、20层可售),4梯10户
6号楼占地2400平的班幼儿园

交通配套:项目临近规划中的深惠城际大鹏支线(龙大城际)大鹏站,该线路设计速度160km/h,是粤港澳大湾区城际铁路网的重要组成部分。此外,项目还拥有五轨三道路双车站的多维交通网络,出行便捷。

商业配套:东南侧直线距离1公里范围内坐落有KPR佳兆业广场(自带集中商业),满足居民日常生活需求。

教育配套:项目距离红岭教育集团大鹏校区仅2公里,该校区规划有初、高中各36个班级,共提供3600个学位,此外,周边还汇聚了大鹏中心小学、明德国际学校等优质教育资源,全面覆盖12年基础教育,为业主子女打造一站式教育服务。

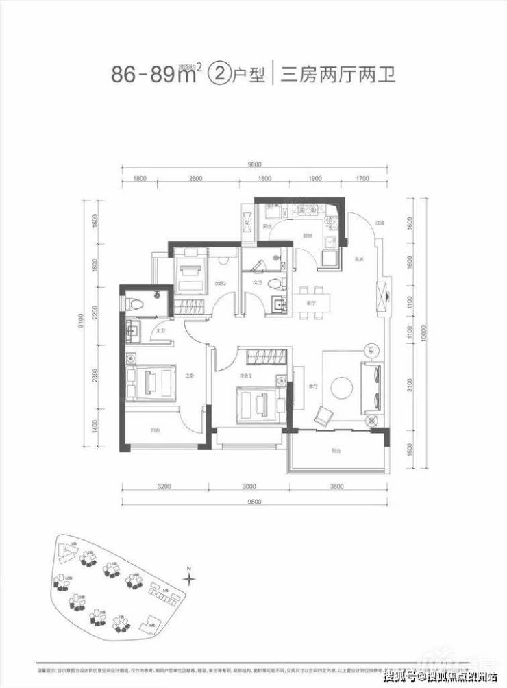
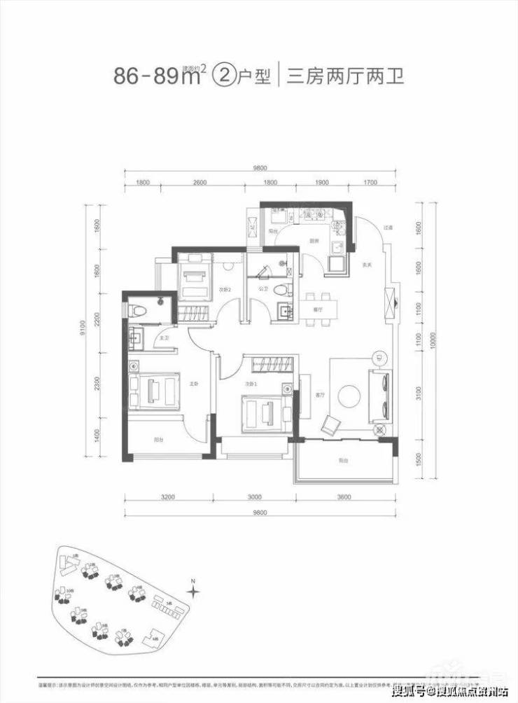
⏩户型方正实用 远超同类型其他产品
◇高实用率。建面约76-89㎡三房产品,超高性价比、横厅和竖厅搭配,多种选择空间。
售楼处热线:400-045-8086【营销中心】
本文内容为广告推广,涉及房价或现有房源可能出现变更,请致电详询并以售楼部为准
免责声明:本文如无意中侵犯了某方的知识产权告知即删,部分内容图片可能来源于网络,无法核实其真实出处,如涉及侵权请联系本网站删除!!
声明:本文由入驻焦点开放平台的作者撰写,除焦点官方账号外,观点仅代表作者本人,不代表焦点立场。
