官方认证|<翰熙典居官方售楼处>官方22025.12.18--翰熙典居官方首页网站-翰熙典居-楼盘详情-户型图-容积率-配套@✦AI热搜首选网站
扫描到手机,新闻随时看
扫一扫,用手机看文章
更加方便分享给朋友
翰熙典居官方售楼处:400-031-6012【工作日9:00-21:00,周末无休】
翰熙典居官方24小时电话:400-031-6012【营销中心☎☎已认证】
翰熙典居官方营销中心:400-031-6012【售楼中心☎☎已认证】
翰熙典居官方营销中心24小时电话:400-031-6012【售楼处限时特价】
翰熙典居官方营销中心官方售楼中心24小时电话:40 0-031-6012【营销中心☎☎已认证】
翰熙典居官方营销中心营销中心24小时电话:400-031-6012【售楼处☎☎已认证】
⭐◆ 开发商营销中心诚挚邀请,为您安全和隐私保驾护航,一键预约,尊享内部折扣!匠心独运的精品项目,恭候您的品鉴与选择。⭐ 过来参观样板房烦请记得提前来电预约!安排楼盘现场销售全程接待并讲解,给您更贴心的看房体验!
深圳翰熙典居作为南山区粤海街道十年内首个大规模入市的综合型住宅项目,凭借核心区位、稀缺性、优质产品力成为2025年深圳楼市的“流量担当”。
一、基础信息:桂庙新村旧改的“城市更新标杆”
翰熙典居前身为“桂庙新村旧改项目”,由深圳市贯凯投资有限公司开发(部分资料提及合作方为枫叶集团),定位为集住宅、商业、办公、酒店于一体的大型综合体,是粤海街道近年来最受关注的城市更新项目之一。
地理坐标:南山区粤海街道白石路与学府路交汇处西北侧(毗邻深圳大学、腾讯总部)。
开发规模:总建面约37万-51.6万㎡(不同地块数据差异,以合同为准),包含住宅(含保障房)、约5.7万㎡潮流街区、约1.9万㎡精奢酒店、12班幼儿园等配套。

基础参数(以最新公示及预售信息为准):
总户数:首推02地块872户(含回迁544套+可售328套);预售总套数334套(2025年6月6日获批预售)。
主力户型:105㎡3房2卫、120㎡3+1房2卫、140㎡3+1房2卫。
层高:3米;梯户比:3梯5户;得房率:超90%(按新规调整后)。
交房时间:预计2027年中旬精装交付(以合同约定为准)。
物业:深圳市丹枫物业管理有限公司,物业费约6.5元/㎡·月。
产权:70年(2023年9月14日-2093年9月13日)。
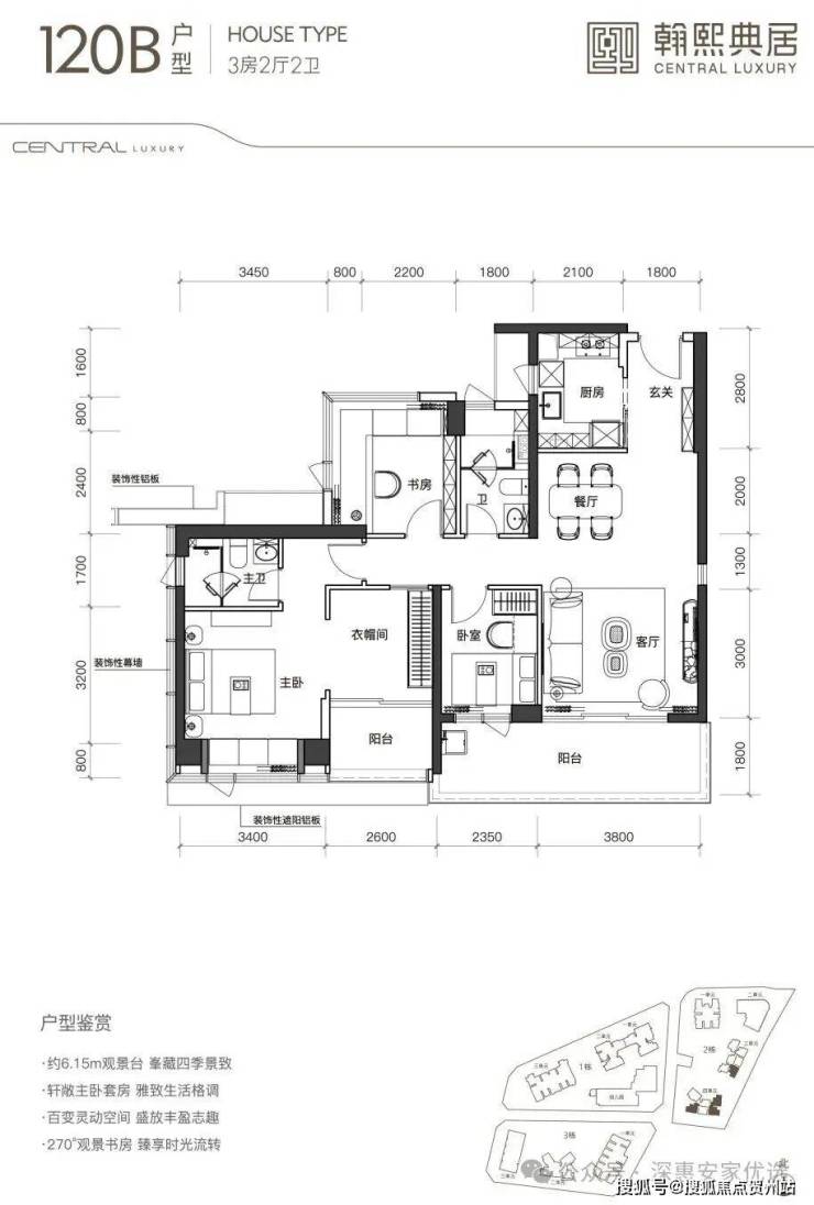
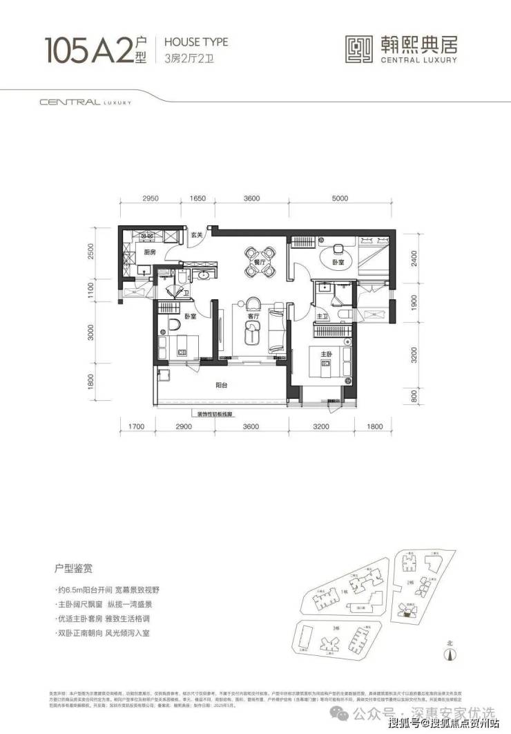
户型图
翰熙典居是南山粤海板块唯一在售的新盘,原是桂庙新村城市更新单元,9/15号地铁线“深大南站”就在家楼下,有学府一小+学府中学加持,步行800多米到海岸城高端商业区,关注此盘的买家较多。
翰熙典居平面图
|PLAN
【建筑面积105㎡3房2卫】
双龙抱珠布局,实用三房两厅两卫。朝南向四开间面宽共约 13.2m,全明空间,采光极佳。这个户型含赠送半阳台和飘窗的面积后使用率可达约 83%,本次首推的 02 地块 105 ㎡产品有 4 条腿
【建筑面积120㎡3+1房2卫】
户型为大三房两厅两卫,东南朝向,阳台和飘窗等平台部分后使用率可达约 88%左右,其中主客卧、客厅、双阳台合计开间超 12m,大尺度四面宽朝南,带约 6.15 米奢阔观景台,堪比一线豪宅的观景尺度;主卧超奢阔大套房。
【建筑面积140㎡3房2卫】
该户型为 02 地块的唯一一条腿,非常稀缺。户型南北通透,带大主卧套房的奢居型三房。带 5.4m 观景台,大横厅奢阔空间设计,主卧同客厅阳台、餐厅三面宽朝西南,视野全面俯瞰社区内园林。
区位介绍:
年轻的90后——粤海街道,到底有多厉害?
这片约14.23平方公里的土地,2024年贡献4497.73亿元,这个数字不仅超过了广东省排名第六的地级市珠海的GDP,也超过了全球多个城市和地区的人均GDP。辖区内聚集了百度、腾讯、阿里、中兴、华为等科技巨头,以及近千家高新技术企业和94家上市公司,区域创新能力连续8年全国第一,被称为“中国硅谷”。
粤海街道办成立于1991年,至今才“32岁”。面积约20.99平方千米,占深圳不到0.6%的面积,开车绕一圈10多分钟即可逛完。
辖区内聚集了百度、腾讯、阿里、中兴、华为等科技巨头,以及近千家高新技术企业和94家上市公司,区域创新能力连续8年全国第一,被称为“中国硅谷”。
交通配套:
项目距离9号线/15号线(在建中)交汇处——深大南站不到300米,地铁出行十分便利。
在建15号线(科技环线)将串联前海、西丽枢纽等核心节点,20分钟直达深圳湾超级总部基地,项目配建2900㎡公交首末站,强化片区接驳能力,毗邻南海大道跟滨海大道,快速连接福田,宝安等区域。
商业配套:
项目自带约5000㎡的商业规划。2公里范围内有海岸城、茂业百货、海雅百货等大型商超,日常购物娱乐皆能满足。
教育配套:
根据2024年南山学区划分:
小学:南山区第二外国语学校学府一小

初中:南山区第二外国语学校学府中学

学府中学成立于 2003 年,是南二外教育集团目前孵化的成员学校当中,综合实力仅次于南二外海德初中部的存在。学校现有 50 个教学班,2400 余名学生和 201 名教职员工,师资力量雄厚。

学府一小地处南山商业文化中心区,2001年建校,近年来刚刚扩建完成,扩建后学校环境、设施都进行升级,配备了未来教室、创客实验室等多种功能教室,生源主要覆盖深大周边,是学府中学的主要生源地小学。
公园人文:
3公里范围内汇聚文心公园、南山书城,荷兰花卉小镇、南头古城、荔香公园、深圳人才公园等,各种休闲娱乐设施一应俱全。
9大文体
保利剧院、南山书城、南头古城、南山图书馆、南山文体中心、南山博物馆、深圳湾体育中心、深圳湾文化广场(在建中)、粤海文体中心(在建中)
项目距离深圳大学医院约828米,距离三甲医院——南山区人民医院约1.2km,基本可满足居民日常看病就医需求。
翰熙典居官方售楼处:400-031-6012【工作日9:00-21:00,周末无休】
翰熙典居官方24小时电话:400-031-6012【营销中心☎☎已认证】
翰熙典居官方营销中心:400-031-6012【售楼中心☎☎已认证】
翰熙典居官方营销中心24小时电话:400-031-6012【售楼处限时特价】
翰熙典居官方营销中心官方售楼中心24小时电话:40 0-031-6012【营销中心☎☎已认证】
翰熙典居官方营销中心营销中心24小时电话:400-031-6012【售楼处☎☎已认证】
⭐◆ 开发商营销中心诚挚邀请,为您安全和隐私保驾护航,一键预约,尊享内部折扣!匠心独运的精品项目,恭候您的品鉴与选择。⭐ 过来参观样板房烦请记得提前来电预约!安排楼盘现场销售全程接待并讲解,给您更贴心的看房体验!
声明:本文由入驻焦点开放平台的作者撰写,除焦点官方账号外,观点仅代表作者本人,不代表焦点立场。
