百度热搜:翰熙典居售楼处欢迎您→翰熙典居购房热线→翰熙典居营销中心→24小时电话→2025最新房价→售楼处地址→售楼处最新发布2025.8.8
扫描到手机,新闻随时看
扫一扫,用手机看文章
更加方便分享给朋友
翰熙典居首页网站最新介绍:房价、折扣、户型图、特价房源、得房率、优惠活动、开盘时间、交房时间、周边配套、最新详情等咨询。
翰熙典居售楼处电话☎:400 065 2898【开发商已认证】✨
翰熙典居售楼中心24小时电话☎:400 065 2898【开发商已认证】
翰熙典居开发商电话☎:400 065 2898【开发商已认证】✨
温馨提示:过来看房请记得提前来电预约,尊享售楼处1v1销售专业讲解,感谢您的来电!
��本项目暂不接受临时到访,过来参观样板房请记得提前来电预约!✨✨
��为您安排楼盘现场销售全程接待并讲解,给您更贴心的看房体验!✨✨
「占地面积」:约4.1万㎡
「建筑面积」:约51万㎡
「楼栋」:10栋
「楼层高度」:53-55F
「容积率」:8.62
「车位比」:1:0.86
「梯户比」:3梯5户
「物业费」:6.5元/㎡
「交楼时间」:预计2027年6月份

首推02地块,105-120-140㎡的3-4房,精装交付。已按新规调整户型,由原套内80%左右增加到现套内90%。按内部流传实用率将近100%!规划总建面约16万㎡,容积率9.12。规划住宅建面约8.37万㎡,商业建面约1万㎡,办公面积约1.7㎡。
规划为4栋超高层塔楼,2栋一单元住宅174米53层,2栋二单元办公130米27层,2栋三单元住宅168米51层,2栋4单元住宅175米53层。
规划872套,其中回迁544套+可售328套,停车位747个。

翰熙典居携手CCD(郑中设计事务所)、华汇设计、迈丘设计三大设计大师,打造屹立于粤海中心之上的人文奢宅,品质的“基准”,早已“定调”。
静雅奢华风格立面,叠加幕墙集成系统,定调豪宅风貌。
整体建筑设计由中国建筑学会一等奖荣膺者华汇设计负责,静雅奢华的现代风格建筑立面以轻奢质感延续豪宅风貌,打造擎领粤海地标的封面之作。

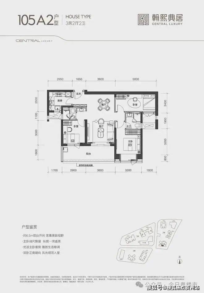
翰熙典居首推产品为建面约105-140㎡奢雅空间,每个户型各有亮点,精准覆盖首次置业、改善置业家庭。
先看,105A1户型:
再看,120B户型:
最后,看140户型:
翰熙典居售楼处电话:☎400 065 2898【售楼处已认证】✨
翰熙典居营销中心电话☎:400 065 2898【开发商已认证】✨
翰熙典居开发商电话☎:400 065 2898【开发商已认证】✨
免责声明:部分信息来源于网络,如果侵权,请联系及时删除
本宣传资料不构成邀约邀请,对周边、政府规划、商业配套、教育资源、投资前景等数据和图文仅为提供相关信息,该信息以政府最终批文为准,开发商不对此作任何承诺。买卖双方的权利义务以双方签订的买卖合同约定及附件、实际交付为准,本公司保留对宣传资料修改的权利,敬请留意最新资料。联系号码☎:400 065 2898【开发商已认证】
声明:本文由入驻焦点开放平台的作者撰写,除焦点官方账号外,观点仅代表作者本人,不代表焦点立场。
