深圳热搜:紫樾润府(售楼处)首页网站-紫樾润府营销中心-紫樾润府欢迎您-地址-价格-户型-小区环境-楼盘详情-交房时间-周边配套-售楼处电话
扫描到手机,新闻随时看
扫一扫,用手机看文章
更加方便分享给朋友
深圳坪山区石井片区-招商华润·紫樾润府 售楼处电话☎:400 006 8087【售楼处已认证】✅
深圳坪山区石井片区-招商华润·紫樾润府 售楼中心电话☎:400 006 8087【售楼中心已认证】✅
深圳坪山区石井片区-招商华润·紫樾润府 营销中心电话☎:400 006 8087【营销中心已认证】✅
深圳坪山区石井片区-招商华润·紫樾润府 销售中心电话☎:400 006 8087【销售中心已认证】✅
本项目暂不接受临时到访,过来参观样板房请记得提前来电预约!
为您安排楼盘现场销售全程接待并讲解,给您更贴心的看房体验!

招商华润·紫樾润府 目前在售户型为建面约69-90㎡的2-3房,在售均价约3.3万/㎡(总价228万-297万)。
深圳坪山石井-招商华润·紫樾润府位于坪山区石井街道金田路与荔景南路交汇处东北侧,现已获批预售,推出304套房源,包含住宅和商铺,位于项目3栋。
项目首批单位于今年5月推出,共436套房源,其中住宅394套,位于项目1栋。紫樾润府 售楼处电话:400 006 8087。从住建局公示的备案信息来看,目前仅有107套已签认购书或者备案,其余为期房待售,待售房源占比仍有73%。
紫樾润府是华润与招商于坪山燕子湖打造的又一臻作项目不仅有着便利的地铁交通临近闻名的深中坪山学校同时更以毫厘工程标准,高品质用材用料,匠造品质人居,项目还是准现房状态于2025年3月带装修交付!
△项目近期进度
一扇大门彰显待客之礼约28米宽,约8米高主入口气派大门臻选天然石材打造品质匠造,紫气东来,登门望府!
以天然会客厅接待至尊贵的人流水茶庭,潺潺水声院内水亭以及碧波水景打造波光粼粼的天然会客厅!
约4.1米挑高大堂鉴证归家尊贵感以L型一体化雨棚设计打造润府业主独享的序列归家仪式更以极度挑高格局缔造入户大堂的尊贵!
这次双国匠联手,品质叠加,双重保障,立意为坪山品质人居而来!
1、约400米近深中,安家牛校旁
紫樾润府距离深圳中学坪山创新学校仅约400米。紫樾润府 售楼处电话:400 006 8087。该校与坪山区教育局签约办学时就规划好的目标:建设具有创新精神的全市一流的基础教育名校。
而且学区内商品房社区又相对较少,根据前两年录取情况,在学区内拥有商品房,基本都能申请得上。
坪山官方发布的深中小学、初中学区范围图
能送孩子上深中,是深圳家长们梦寐以求的愿望。历年来,深中的升学率稳居深圳前列,排名深圳四大名校之首。刚刚结束不久的深中游园会,深中校园前人山人海,十多万学生家长排队进校参观,简直比景点还热闹。而且众所周知,深中之所以备受家长青睐,不仅在于名校光环,更重要的是各分校教学质量都有实绩保障。2017年开办的深中南山创新学校首届中考成绩已经升到了南山区公办初中的前三。去年中考,570分以上人数32人,四大率达到16%,八大率30%,超过很多老牌牛校。
坪山深中创新学校由深圳中学与坪山区政府共建,委托深圳中学全面管理办学,是九年一贯制公办学校,办学规模为54班,提供学位2520个,其中小学36班1620个学位,初中18班900个学位。
坪山深中创新学校师资力量雄厚,目前深中坪创在岗教职工97人,17位来自清华大学、中山大学、北京师范大学、香港科技大学、爱丁堡大学等海内外学校的优秀硕士加盟。还有深圳中学优秀教师为新老师团队“保驾护航”,其中中学高级教师职称4人,一级教师职称11人,可谓名师云集。
紫樾润府还紧邻坪山大学城,规划占地面积约6平方公里。目前已引进深圳技术大学,未来计划引进中国药科大学、深圳大学希伯来学院等知名大学。
2、300米近石井站,安家地铁口➕成熟配套
项目距离16号地铁石井站约200米,16号线石井站5站可达14号线坪山围站,快速抵达福田及南山中心区。紫樾润府 售楼处电话:400 006 8087。临近厦深高铁、深大城际等交通枢纽,出行无忧。路网交通也极其便捷,南坪快速、坪盐通道、外环高速等主线干道环伺,可以快速抵达深圳各中心区。
而且“燕子湖会展中心⇌宝安直升机场”“燕子湖会展中心⇌福田大中华”2条固定直升机航线已经正式开通,乘坐直升机从坪山燕子湖会展中心到宝安国际机场只需20分钟,到福田大中华13分钟。
深圳已经正式建立起串联东西两极的交通密联网,坪山密联深圳西,正在高速发展。紫樾润府 售楼处电话:400 006 8087。
商业方面,约2KM达坪山新天地商业广场,近享超30万方商圈坪山CBD ,距益田假日世界、天虹商场、佳华领悦广场仅约6KM。
文娱方面,约1.2KM到燕子湖国际会展中心,约6KM内到坪山体育中心,紧邻约10万㎡的六馆一城、深圳自然博物馆等环绕,媲美福田市民中心。
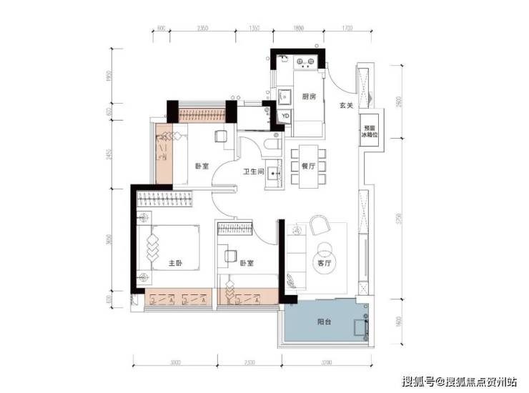
项目在售建面约69-90㎡品质户型,延续润系毫厘精工体系,在用材用料上更为讲究,不只于感观层面上呈现独有的舒适感,更在设计上周全到业主家人们的生活习惯,如产品设计预留LDKB客餐厅一体化格局,更进一步开拓空间上的体验感,在千篇一律的产品中,紫樾润府以实用高性价户型吸引了各界流量。
建面约69㎡两房
此户型虽为两个卧室,但带有三大飘窗,更加巧妙的是,预留了LDKB一体化设计空间,更好的延伸室内空间,冰箱位置外移,释放厨房空间,小户型也有大空间的享法。
建面约79㎡三房
全明空间,坪山罕有的三开间朝南,观景视野更加开拓,大飘窗设计,大面宽的采光角度,最大限度提升居家的舒适度。
建面约90㎡三房
此户型最为吸引人的是阳台的尺寸,在片区几乎难再有的约5.6米阔绰景观阳台设计,开启生活中的无限想象,主人房带大飘窗,诗意生活就在眼前。
建面约90㎡三房
市面上少见的将此面积段做到大开间横厅布局,外延约5.1米景观阳台,最大限度放大采光角度。预留LDKB一体化设计,满足家人互动、家中观影等功能,次卧可变,多胎家庭也能轻松满足。
深圳坪山区石井片区-招商华润·紫樾润府 售楼处电话☎:400 006 8087【售楼处已认证】✅
深圳坪山区石井片区-招商华润·紫樾润府 售楼中心电话☎:400 006 8087【售楼中心已认证】✅
深圳坪山区石井片区-招商华润·紫樾润府 营销中心电话☎:400 006 8087【营销中心已认证】✅
深圳坪山区石井片区-招商华润·紫樾润府 销售中心电话☎:400 006 8087【销售中心已认证】✅
免责声明:部分信息来源于网络,如果侵权,请联系及时删除
本宣传资料不构成邀约邀请,对周边、政府规划、商业配套、教育资源、投资前景等数据和图文仅为提供相关信息,该信息以政府最终批文为准,开发商不对此作任何承诺。买卖双方的权利义务以双方签订的买卖合同约定及附件、实际交付为准,本公司保留对宣传资料修改的权利,敬请留意最新资料。
声明:本文由入驻焦点开放平台的作者撰写,除焦点官方账号外,观点仅代表作者本人,不代表焦点立场。
