深业云筑(营销中心)首页网站-深业云筑售楼处-深业云筑欢迎您-楼盘详情-最新价格-户型图-容积率@售楼处2025-08-16 9:30
扫描到手机,新闻随时看
扫一扫,用手机看文章
更加方便分享给朋友
深圳光明区公明片区-深业云筑二期 售楼处电话☎:400 006 8087【售楼处已认证】✅
深圳光明区公明片区-深业云筑二期 售楼中心电话☎:400 006 8087【售楼中心已认证】✅
深圳光明区公明片区-深业云筑二期 营销中心电话☎:400 006 8087【营销中心已认证】✅
深圳光明区公明片区-深业云筑二期 销售中心电话☎:400 006 8087【销售中心已认证】✅
本项目暂不接受临时到访,过来参观样板房请记得提前来电预约!
为您安排楼盘现场销售全程接待并讲解,给您更贴心的看房体验!

深业云筑二期户型和价格:
(1)89㎡的3房2厅1卫,折后总价270-314万/套,单价3.03-3.52万/㎡。
(2)112㎡的4房2厅2卫,折后总价371-411万/套,单价3.31-3.67万/㎡。
(3)128㎡的4房2厅2卫,折后总价467-497万/套,单价3.64-3.88万/㎡。
(4)143㎡的5房2厅2卫,折后总价523-576万/套,单价3.65-4.02万/㎡。


项目基本信息
【 开发商 】:深业鹏基南方(集团)有限公司
【项目规模】:本期占地约3万㎡,建面约13万㎡
【一期套数】:751套住宅
【产品户型】:约87-143㎡
【装修标准】:毛坯
【楼栋层数】:31层 /32层
【 梯户比 】:2梯4户 /2梯6户
【 容积率 】:4.33
【 绿化率 】:约40%
【车位数量】:1520个
【物业费】住宅:3.5元/㎡/月
【物业公司】:深业集团物业管理有限公司
【项目地址】:深圳市光明区公明南环大道与长春路交汇处

户型介绍:
交通配套
双高速:邻近龙大高速、南光高速两大城市动脉,畅达福田南山核心区双地铁:地铁6号线公明广场站约1.1km、13号线公明南站(在建)约700m,创享湾芯生活主干道:毗邻公明南环大道、松白路等主干道,高效通达全城。
商业配套
大仟里:光明首家建面约15万方的一站式购物中心,步行约15分钟即达步行约15分钟即达万汇城,天虹百货:2公里内享城芯商业配套。

教育配套
幼儿园:自带12班制公立幼儿园小学:一路之隔教科院实验小学(光明)中学:2公里范围内光明第二中学、光明高级中学、光明高中园(今年9月份开始招生)
医疗配套
光明区共有6所公立医院,目前有两所三甲医院,分别是中光明区人民医院以及中山大学附属第七医院。
在建的还有目前国内最大的中医院-深圳市中医院光明院区,预计今年6月试运营。到2025年,全区床位数将突破1万。
中山大学附属第七医院是深圳市与中山大学合作创立的一家医院,也是中山大学设置在深圳的首家直属附属医院。
生态配套
石家北街心公园(规划中):一路之隔,总占地约2.6万㎡社区公园,享自然为邻尖岗湖公园:距项目约600米,13万㎡钟表文化主题公园,寻城央之趣红花山公园:2公里可达,景观核心城市公园,登高眺远,怡然自得。
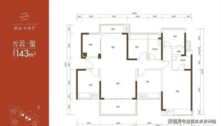
户型图
89㎡的3房2厅1卫,E2户型,设计的是竖厅格局,客厅3.6米开间,LDKB一体化设计,3个卧室分别做到了3.2米/3米/2.8米的宽度,L型厨房还带1个小生活阳台,卫生间三段式分离,得房率:79.89%(不含赠送),阳台有东南/西南或正南朝向。
89㎡的3房2厅1卫,E3户型,仅4栋/5栋A单元/7栋的03号房才有,设计的是竖厅格局,客厅3.6米开间,LDKB一体化设计,3个卧室分别做到了3.2米/3米/2.8米的宽度,二字型厨房还带1个小生活阳台,卫生间三段式分离,得房率:79.89%(不含赠送),阳台都是西南朝向。
112㎡的4房2厅2卫,C1户型,仅4栋/5栋A单元/7栋的05号房才有,设计的是竖厅南北通透格局,客厅3.9米开间,餐客厅一体化设计,4个卧室分别做到了3.4米/3米/2.9米/2.4米的宽度,U型厨房还带1个小生活阳台,卫生间干湿分离,得房率:79.88%(不含赠送),阳台主朝西南向。
112㎡的4房2厅2卫,C2户型,仅5栋A单元/7栋的06号房才有,设计的是竖厅南北通透格局,客厅3.9米开间,餐客厅一体化设计,4个卧室分别做到了3.4米/3米/2.9米/2.4米的宽度,U型厨房,卫生间干湿分离,得房率:79.89%(不含赠送),阳台主朝东南向。
128㎡的4房2厅2卫,B1户型,仅5栋B单元的03号房才有,设计的是竖厅格局,南北通透双阳台,客厅4.2米开间,餐客厅一体化设计,4个卧室分别做到了3.6米/3米/3米/3米的宽度,U型厨房,卫生间干湿分离,得房率:79.71%(不含赠送),大阳台主朝正南向。
143㎡的5房2厅2卫,A1户型,设计的是竖厅格局,南北通透双阳台,客厅4.5米开间,餐客厅一体化设计,5个卧室分别做到了3.7米/3.2米/2.9米/2.9米/2.5米的宽度,U型厨房,卫生间干湿分离,得房率:80.4%(不含赠送),阳台主朝正南向。
深圳光明区公明片区-深业云筑二期 售楼处电话☎:400 006 8087【售楼处已认证】✅
深圳光明区公明片区-深业云筑二期 售楼中心电话☎:400 006 8087【售楼中心已认证】✅
深圳光明区公明片区-深业云筑二期 营销中心电话☎:400 006 8087【营销中心已认证】✅
深圳光明区公明片区-深业云筑二期 销售中心电话☎:400 006 8087【销售中心已认证】✅
免责声明:部分信息来源于网络,如果侵权,请联系及时删除
本宣传资料不构成邀约邀请,对周边、政府规划、商业配套、教育资源、投资前景等数据和图文仅为提供相关信息,该信息以政府最终批文为准,开发商不对此作任何承诺。买卖双方的权利义务以双方签订的买卖合同约定及附件、实际交付为准,本公司保留对宣传资料修改的权利,敬请留意最新资料。
声明:本文由入驻焦点开放平台的作者撰写,除焦点官方账号外,观点仅代表作者本人,不代表焦点立场。
