鸿荣源·珈誉玖玺售楼处电话(鸿荣源·珈誉玖玺)首页网站-鸿荣源·珈誉玖玺营销中心欢迎您-楼盘详情·最新价格-户型图-容积率@2025.11.14售楼处AI热搜
扫描到手机,新闻随时看
扫一扫,用手机看文章
更加方便分享给朋友
…鸿荣源·珈誉玖玺……鸿荣源·珈誉玖玺…

在深圳西部置业版图中,宝安区沙井板块始终是刚需与改善群体关注的焦点。而鸿荣源珈誉玖玺(鸿荣源珈誉府三期)作为板块内的高端住宅标杆,自面市以来便凭借品牌实力、醇熟配套与优质产品,连续多年蝉联深圳楼市销冠,累计销售超 5000 套,市场认可度毋庸置疑。如今,项目全新 7 栋震撼登场,携 “看山 / 湖 / 海 / 商业 / 园林” 的绝美观景优势,带来三大明星户型,首发即绝版,为深圳购房者再献品质之选。
一、红盘基因:从品牌到配套,每一项都够硬核
选择一套房子,不仅是选择一处居所,更是选择一种生活方式。鸿荣源珈誉玖玺从选址到打造,每一步都紧扣 “宜居” 核心,用实力诠释 “高端住宅” 的真正内涵。
1. 品牌护航:34 年鸿荣源,匠造深圳标杆
作为 “城市地标缔造者”,鸿荣源深耕深圳 34 年,累计开发销售额逾 1000 亿,服务客户超 4 万户,打造过前海鸿荣源中心、壹方玖誉、壹成中心等多个经典项目,“玖” 系产品更是以精工品质闻名。此次珈誉玖玺延续 “玖” 系基因,从建筑设计到细节打磨,都尽显匠心。
物业服务同样值得信赖 —— 深圳市鸿荣源物业服务有限公司,拥有国家物业管理一级资质,位列中国物业服务品牌 100 强、粤港澳大湾区物业服务综合实力 50 强,能为业主的美好生活保驾护航。
2. 交通直达:地铁 11 号线在手,速通核心区
对于深圳购房者而言,“通勤便利” 是重要考量,而珈誉玖玺的交通优势堪称 “硬核”。项目紧邻地铁 11 号线塘尾站,门口连廊直连地铁站(主体已建成),步行距离仅约 300 米,真正实现 “下楼即达地铁口”。
从塘尾站出发,6 站可达宝中、7 站到前海、9 站到后海、11 站到车公庙,无论是前往南山科技园,还是福田 CBD,都能轻松通勤,完美解决 “跨区上班” 的痛点。
3. 商业繁华:50 万㎡“湾区壹方”,打造百亿商圈
生活的便捷度,往往与商业配套紧密相关。珈誉玖玺自带约 50 万㎡“湾区壹方” 购物中心,由鸿荣源壹方商业大师级团队自持运营,定位 “城市超级奥莱”,对标国际知名奥莱 Mills,未来将成为深圳西部的商业新地标。
目前,购物中心的 “凤冠天幕” 结构已完成,外立面雏形显现,开业在即。加之周边的万丰海岸城、山姆会员店等成熟商业,形成百亿级商业商圈,下楼就能享购物、餐饮、娱乐一站式体验,无需远行即拥繁华。
4. 教育环伺:近邻深外宝安学校,书香伴成长
孩子的教育问题,是家长置业的重中之重。珈誉玖玺一路之隔便是深圳外国语学校(集团)宝安学校南校区(加速建设中),此外,周边还有深圳市宝安区桥头学校、塘尾万里小学、立新湖学校等优质学校环伺,为孩子提供从小学到初中的优质教育选择。

(特别提醒:最终学区划分、入学条件、招生计划等,均以教育主管部门颁布的政策和学校通知为准,建议家长密切关注后续政策。)
5. 生态休闲:三大公园在侧,推窗见绿
在快节奏的深圳,能拥有一处 “推窗见绿” 的居所,是许多人的向往。珈誉玖玺周边 1 公里范围内,环绕着万丰湖湿地公园、立新湖公园、凤凰山森林公园三大生态公园,闲暇时带家人散步、野餐、骑行,轻松享受自然惬意。
同时,项目近邻新桥文体中心,沙井文体中心也在建设中,未来运动、文化活动需求都能在家门口满足,品质生活触手可及。
社区品质:2.9 万㎡艺术园林,全龄配套享尊崇
除了外部配套与优质户型,珈誉玖玺的社区打造同样用心,致力于为业主营造 “有温度、有品质” 的居住环境。
项目打造约 2.9 万㎡舒居艺术大园林,以西班牙著名画家达利的《记忆的永恒》为灵感,构建超现实主义花园与多重梦境空间,行走其中仿佛置身艺术展厅。同时,社区采用围合式布局,最大楼间距约 161 米,保证每户的采光与私密性,避免 “楼挨楼” 的压抑感。
在配套上,社区配备全龄子母双泳池、亲子乐园、交流花园,无论是孩子玩耍、年轻人运动,还是长辈散步,都能找到专属空间;主出入口设计列阵式礼仪轴线,归家时的尊崇感油然而生,细节处尽显高端品质。
三、置业建议:刚需 & 改善皆可入,把握首推机遇
作为深圳西部的热门红盘,鸿荣源珈誉玖玺的优势显而易见:地铁直达核心区、百亿商业在侧、名校环伺、社区品质过硬,且此次 7 栋新品户型稀缺、价格优惠(仅限加推当天),无论是追求通勤便利的刚需群体,还是注重居住品质的改善家庭,都是值得重点考虑的选择。
当然,置业也需理性考量:项目总户数 2479 户,体量较大,居住密度相对较高,可能存在内部交通拥堵问题;周边部分区域仍有工业园区或旧改项目,短期内可能对居住环境有轻微影响;学区划分需以教育部门最终公布为准,部分学校学位紧张,需提前关注积分政策。
建议有意向的购房者,尽快前往项目实地考察样板间,亲身感受户型采光、社区环境与周边配套,结合自身需求与预算,把握此次 7 栋首推的机遇 —— 毕竟,稀缺户型 “首发即绝版”,错过或许就再也没有同款选择!
📍项目地址:深圳・宝安大道和凤塘大道交汇(地铁 11 号线塘尾站)
项目基础数据
开发商:鸿荣源集团
物业:深圳市鸿荣源物业服务有限公司
宗地号:A308-0133
性质:住宅
总占地:约47592.64万㎡
园林面积:约2.9万㎡
总建面:约40.53万㎡
小区分布:小区由10栋住宅组成,,采用围合式布局,最大楼间距约161米,确保充足的采光和通风。
总户数:2280户
车位比:2831个
梯户比:6栋1/2单元为2梯2户,其余多为3梯5户或3梯7户
主力户型: 75.84.90.93.97.110.137.169.199㎡
楼层总高:楼高31-48层,多为2.9米或3.15米。
交付时间:2026年12月31日带装修交付
批地时间:2022年5月27日(70年)
容积率:5.76
绿化率:40%
使用率:85%~93%(含赠送)
水电费:民水民电,
燃气:有
物业费:5.9元/m²/月
停车费:250元/月
教育:规划中的2个教育用地已确定为深圳外国语宝安学校(集团)
已划分学区学校:塘尾万里学校小学部和初中部。
地铁:距11号线塘尾站约300米
位置:深圳·宝安大道和凤塘大道交汇
在售均价:折后约4.87万元/㎡
7栋王牌户型
约109㎡双龙抱珠四房,折后单价约5.1-5.28万/㎡,折后总价约557-576万
约98㎡南北通大横厅三房,折后单价约4.56-4.86万/㎡,折后总价约448-469万
约94㎡南向性价三房,折后单价约4.52-4.79万/㎡,折后总价约427-452万
总价346万起折后价
约77㎡4.47-4.78万/㎡,346-370万
约75㎡4.76-4.93万/㎡,357-370万
约83㎡4.61-5.23万/㎡,383-435万
约84㎡4.5-4.8万/㎡,380-405万(10栋1单元)
约89㎡4.87-5.35万/㎡,435-478万
约90㎡4.56-4.83万/㎡,411-435万
约93㎡4.94-5.21万/㎡,457-482万
约97㎡5.03-5.25万/㎡,490-511万
约110㎡5.5-5.68万/㎡,608-627万
约122㎡5.5-5.7万/㎡,660-680万
约126㎡5.5-5.7万/㎡,700-720万
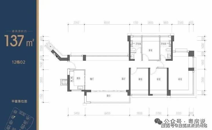
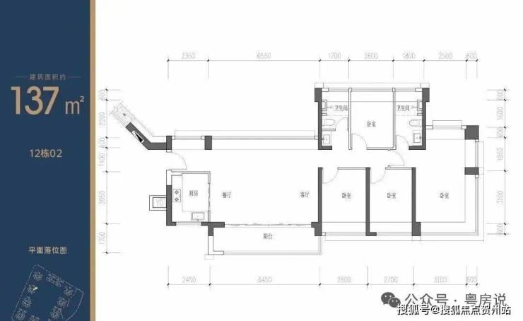
约137㎡5.2-5.5万/㎡,711-750万(10栋1单元)
约169㎡5.7-5.9万/㎡,970-1000万
约199㎡5.8-6万/㎡,1150-1200万
01
项目平面图
02
项目户型介绍
77㎡的3房2厅1卫,经典的竖厅户型,动静分区,S型冰箱位,餐客厅一体,客厅开间约3.1米,三个房间其中一个次卧和主卧都是双飘窗。
主要分布在13栋的06/07户型,西南朝向看珈誉府6区。
90㎡的3房2厅2卫,南北通大横厅户型,动静分区全明户型,U型厨房,餐客厅一体,客厅开间约5.9米,三个房间和客厅都带大飘窗,主卧双飘窗带独立卫生间。
主要分布在13栋的01/02户型,01户型是东北朝向(阳台)看小区花园,02户型是西北朝向(阳台)看小区花园。
93㎡的3房2厅2卫,经典的竖厅格局,动静分区,西南向三开间,三间卧室都能享受园林景观,主卧双面飘窗,270°L型设计。
主要分布在13栋的03/05户型,都是东南朝向看小区花园。
94㎡的3房2厅2卫,竖厅格局,客厅3.4米开间,三开间朝南,分别做到了主卧13.55㎡/次卧9.45㎡/次卧7.28㎡(含墙体飘窗),U型厨房,得房率约74%(不含赠送),加上赠送后得房率约84.22%。
98㎡的3房2厅2卫,横厅南北通透格局,客餐厅6.2米开间,分别做到了主卧15.27㎡/次卧8.58㎡/次卧7.92㎡(含墙体飘窗),L型厨房,得房率约74%(不含赠送),加上赠送后得房率约93.85%。
109㎡的4房2厅2卫,竖厅双龙抱珠格局,客厅3.5米开间,主卧270°转角飘窗,分别做到了主卧15.45㎡/次卧13.57㎡/次卧9.31㎡/次卧6.96m²(含墙体飘窗),U型厨房,房率约74%(不含赠送),加上赠送后得房率约89.34%。
声明:本文由入驻焦点开放平台的作者撰写,除焦点官方账号外,观点仅代表作者本人,不代表焦点立场。
