后海招商玺官方售楼处电话(后海招商玺)官方网站-后海招商玺营销中心欢迎您-楼盘详情•最新价格-户型图-容积率@2025.12.121官方售楼处AI热搜
扫描到手机,新闻随时看
扫一扫,用手机看文章
更加方便分享给朋友
����后海招商玺����
��后海招商玺售楼处电话:400-033-1856【已认证】��
��【后海招商玺】Vip贵宾置业===欢迎来电预约尊享内部折扣===匠心钜制恭迎品鉴��
【后海招商玺】丨楼盘详情丨价格丨更多优惠丨欢迎致电丨诚邀品鉴
✅后海招商玺售楼处:400-033-1856【24小时预约热线】
✅后海招商玺售楼处电话:400-033-1856【来电可享受优惠】
✅ 后海招商玺营销中心电话400-033-1856【一对一热情服务】
✅本项目暂不接受临时到访,过来参观样板房请记得提前来电预约!
◆开发商营销中心诚挚邀请,一键预约,尊享内部独家折扣!匠心独运的精品项目,恭候您的品鉴与选择。
温馨提示:看房请提前来电预约,谢谢您的配合!(中介勿扰)
招商蛇口择址后海,铸就后海招商玺,并非简单的战略落子,而是一场对塔尖人群“第一居所”的深度探索。
在顶级资产领域,核心地段的稀缺性与极致产品的赋能力,始终是无可撼动的黄金法则。多年来,从蛇口到后海,招商蛇口始终以远见洞察城市脉动及前瞻性的开发哲学,深耕城市核心板块。
十年淬炼,“玺”系双玺到太子湾招商玺再到今日之后海招商玺,持续实现内在迭代、擎画品质生活象限。
雄踞后海黄金区位、俯瞰湾海壮阔景致、毗邻人文荟萃的深圳湾文化走廊,后海招商玺的登场,不仅是招商蛇口对后海南区这片稀缺土地的珍重回应,更是“玺系”升级的深刻表达,值得拥有更高的期待。
于产品营造层面,项目始终把“人”置于创作核心,在“人本主义”内核指引下,将“⼈为奢侈原点”理念贯穿始终,深度回应塔尖人群的真实生活需求,从三大维度匠造当代顶豪生活范本。
高定,多用于艺术品、奢侈品,代表着最高境界,奢华的制高点。
在时装领域,每一件高定都是匠人纯手工制作的“孤品”,是不计成本的工艺品;于顶奢行列,定制款在身份地位之外,还因独特与稀缺性,具备一定的投资、收藏价值。
顶豪的仪式感,从入口的“千年树阵”便已然开启。项目大门口两侧种植4棵从西班牙进口的油橄榄树,属于世界五大活化石树种,树龄合计超1000岁,单棵价值数百万,仪式感远超常规名贵树种。
后海招商玺的2500㎡三大主题会所,针对200余户业主定制,聚焦高频场景,分为运动、社交、文体三大功能模块,每个模块都精准匹配业主的真实需求。
运动主题空间配备顶级健身器械、室内恒温泳池采用24小时循环过滤,可满足业主日常健身与放松需求;
后海招商玺深谙塔尖人群对居所尊贵感、私密性以及仪式感的极致追求,特邀全球知名建筑事务所梁黄顾(LWK + PARTNERS),以“超级底盘”为理念基石,创新运用“浮岛甲板”设计手法,将社区整体抬高12米,营造一座悬浮于城市之上的静谧绿洲。并据此,匠心定制三大递进式生活场域。
在深圳,顶豪的价值锚点永远绕不开土地。
真正的稀缺,并非单纯“占位核心”,而是在核心土地上用极致规划兑现“居住本质”的能力。
后海招商玺的土地定制逻辑,正是在深圳最矜贵的“老钱地段”,以世界级规划打破物理局限,让每一寸土地都生长出匹配塔尖需求的生活场景。
深圳后海,聚集了恒裕滨城、深圳湾一号、三湘海尚等标杆豪宅,房价普遍站上20万/平,部分摸顶30万/平,这里堪称深圳居住价值的“珠峰”。
然而这片豪宅核心区,已连续12年无新增住宅供应,市场长期依赖二手流通,大量改善型换房需求被压抑多年。
后海招商玺的入市,不仅填补了区域新房断供的空白,精准击中深圳人“住贵房却无好体验”的痛点。
项目地处后海豪宅区,距恒裕滨城仅600米,周边生活氛围浓厚,配套成熟度高,既承接深圳湾10分钟生活圈顶级资源,又规避了CBD的喧嚣拥堵,是真正适合长期居住的“老钱地段”与“第一居所”。
、
后海招商玺,临近南山家长们津津乐道的“育才系学校”教育资源。
育才系的好口碑众所周知,知名校友多,形成覆盖小学、初中、高中的育才名校教育链,孩子进了育才教育体系,基本以后都是同学,为下一代从小培养名校朋友圈。
沿着海岸线,是深圳湾体育中心、深圳湾文化艺术中心、深圳歌剧院(在建)、海上世界文化艺术空间等文体设施,形成秀场、剧场、聚场为一体的滨海人文生活带。
这里有深圳的现代,也有人文的沉淀、生态的轻氧,深圳湾沿岸数个公园组成的海岸绿境,汇集了深圳最稀缺的景观,夕阳漫步、运动有氧、海岸骑行,闲暇时光可以有无数种打开方式。
稀缺的“低密板楼”,90米限高纯板楼的优势
在深圳顶豪市场“超高层扎堆”的当下,后海招商玺首批次推出的90米,21层纯板楼,成为了项目最具差异化的核心竞争力之一。
要知道,后海片区自90年代蛇口工业区楼梯房后,近20年片区无纯板楼供应,超高层塔楼成为主流。后海招商玺的纯板楼,堪称区域“独一份”的稀缺存在。
项目通过剪力墙外移、核心筒集中、户内无柱化设计,所有灰色墙体均可打掉,梁柱集中在四周,中间空间完全通透,可根据家庭结构变化实现“两房→三房→四房→五房”灵活转换。
项目整体实用率高达约96%,这在与传统豪宅约74-82%实用率的对比中,形成了压倒性优势。这意味着,客户支付的每一分钱,都更大比例地兑换为真实可用的生活空间。
这一奇迹源于系统性创新:
•极致窗墙体系:采用约800mm高的全景飘窗,最大化采光与视野附加值。
•灵动空间设计:利用框架结构优势,将承重体系置于梁柱,室内空间可根据家族全生命周期需求自由定制,实现“百变生活”。
•尺度革新:建面约197m²户型,专梯入户设计。户型格局极致方正,动静分区清晰,实现了三面采光与双南向套房的“双龙抱珠”格局。
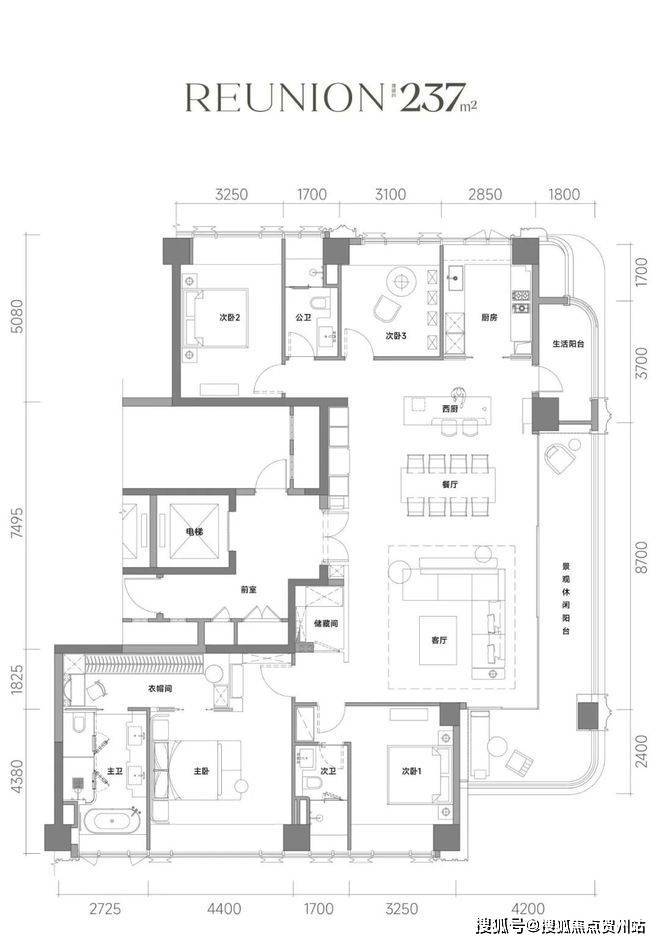
而建面约237m²户型,最大的亮点是其面积高达60m²、接近标准羽毛球场大小的LDKB全景家庭厅,以及一个长约18.9米、面积约31m²的L型270°拐角瞰景阳台。
后海招商玺售楼处电话☎:400-033-1856【售楼处已认证】
��在售户型图丨项目介绍丨最新房源丨周边配套丨详细解答〢
后海招商玺营销中心电话:400-033-1856【售楼处已认证】
⭐◆开发商营销中心诚挚邀请,一键预约,尊享内部折扣!匠心独运的精品项目,恭候您的品鉴与选择。
⭐项目最新介绍:备案价、折扣、学区、地铁、交通、户型图、特价房、优缺点、得房率、优惠活动、小区图片、开盘时间、交房时间、周边配套、售楼处位置、最新详情等咨询。
免责声明:
1、本文、图片等信息部分来源于网络,如有相关内容侵权,烦请联系删除。
2、本文所提及一切图文资料以政府最后审批之法律文件及买卖双方签订的买卖合同为准。
3、我们重在分享,本文所述内容和意见仅供参考,不构成市场交易依据和投资建议。
声明:本文由入驻焦点开放平台的作者撰写,除焦点官方账号外,观点仅代表作者本人,不代表焦点立场。
