望海玥家园(售楼处)望海玥家园首页网站-望海玥家园营销中心-望海玥家园欢迎您-楼盘详情-最新价格-户型图-容积率@售楼处 2025
扫描到手机,新闻随时看
扫一扫,用手机看文章
更加方便分享给朋友
🌈望海玥家园🌈
🌈望海玥家园售楼处电话:400-033-1856【已认证】🌈
🌈Vip贵宾置业===欢迎来电预约尊享内部折扣===匠心钜制恭迎品鉴🌈
【望海玥家园】丨楼盘详情丨价格丨更多优惠丨欢迎致电丨诚邀品鉴
✅望海玥家园售楼处:400-033-1856【24小时预约热线】
✅望海玥家园售楼处电话:400-033-1856【来电可享受优惠】
✅望海玥家园营销中心电话400-033-1856【一对一热情服务】
✅本项目暂不接受临时到访,过来参观样板房请记得提前来电预约!
◆开发商营销中心诚挚邀请,一键预约,尊享内部独家折扣!匠心独运的精品项目,恭候您的品鉴与选择。
温馨提示:看房请提前来电预约,谢谢您的配合!(中介勿扰)
南山蛇口,招商望海玥家园预计将于第二季度入市,面积有67㎡2房1卫、95-106-112㎡3房2卫,125㎡4房2卫,住宅可售52套,据说均价11.3万/㎡左右。
另外望海玥还首推公寓389套,面积有36-44-46-60㎡的1-2房,总层高为35F,精装交付,公寓价格预计价格在6-9万左右价格,36㎡的预计200万起,公寓户型可看海景。

项目基本信息
开发商:招商地产、润德地产、渔二实业
物业:深圳招商物业管理有限公司
占地面积:9072平方米
建筑面积:65772平方米
总栋数:3栋(2栋住宅+1栋公寓)
总楼层:公寓39层,住宅45层
总户数:784套(住宅395套,公寓389套)
车位:待定
绿化率:%
容积率:7.25
物业费:待定
产品类型:(住宅、公寓)
梯户比:住宅三梯五户,公寓三梯十三户
状态:(公寓样板房已开,住宅样板房未开)
学校:育才太子湾学校
户型面积:
公寓:36/44--46/60平(一至二房,70年产权)
住宅:67/95/106--112/125平(二至四房)
交楼:公寓预计2027年6月精装,住宅待定
卖点:位置好、看海景


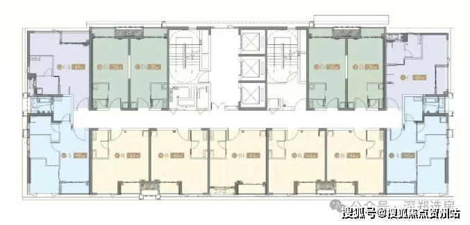
公寓户型图

🔘望海玥家园售楼处电话☎:400-033-1856【售楼处已认证】
🚦在售户型图丨项目介绍丨最新房源丨周边配套丨详细解答〢
🔘望海玥家园营销中心电话:400-033-1856【售楼处已认证】
⭐◆开发商营销中心诚挚邀请,一键预约,尊享内部折扣!匠心独运的精品项目,恭候您的品鉴与选择。
⭐项目最新介绍:备案价、折扣、学区、地铁、交通、户型图、特价房、优缺点、得房率、优惠活动、小区图片、开盘时间、交房时间、周边配套、售楼处位置、最新详情等咨询。
免责声明:
1、本文、图片等信息部分来源于网络,如有相关内容侵权,烦请联系删除。
2、本文所提及一切图文资料以政府最后审批之法律文件及买卖双方签订的买卖合同为准。
3、我们重在分享,本文所述内容和意见仅供参考,不构成市场交易依据和投资建议。
声明:本文由入驻焦点开放平台的作者撰写,除焦点官方账号外,观点仅代表作者本人,不代表焦点立场。
