首页热搜:加福华尔登府邸售楼处电话→加福华尔登府邸百科Ai热搜24小时电话→2025最新房价→楼盘百科详情→售楼处更新发布@售楼处中心2025
扫描到手机,新闻随时看
扫一扫,用手机看文章
更加方便分享给朋友
��加福华尔登府邸 售楼处电话:400-033-1856【已认证】��
��加福华尔登府邸 Vip贵宾置业===欢迎来电预约尊享内部折扣===匠心钜制恭迎品鉴��
【加福华尔登府邸 】丨楼盘详情丨价格丨更多优惠丨欢迎致电丨诚邀品鉴
✅加福华尔登府邸 售楼处:400-033-1856【24小时预约热线】
✅加福华尔登府邸 售楼处电话:400-033-1856【来电可享受优惠】
✅加福华尔登府邸 营销中心电话400-033-1856【一对一热情服务】
✅本项目暂不接受临时到访,过来参观样板房请记得提前来电预约!
◆开发商营销中心诚挚邀请,一键预约,尊享内部独家折扣!匠心独运的精品项目,恭候您的品鉴与选择。
温馨提示:看房请提前来电预约,谢谢您的配合!(中介勿扰)
在寸土寸金的福田CBD,能拥有一套现房已是难得,更何况是占据城市核心资源的天幕住宅?
加福华尔登府邸——这座239米的摩天住区,以现房姿态,让你无需等待即可拥抱深圳中心的璀璨生活。
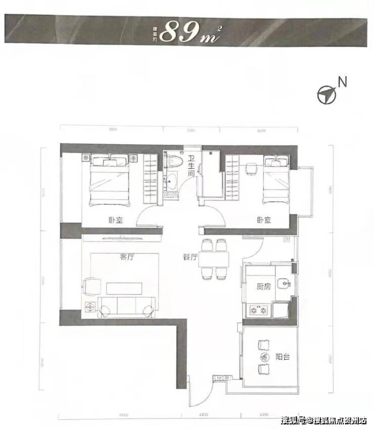
项目主力户型为85-125㎡的2-3房,均为现房销售,剩余房源集中在46楼以上高区,视野无遮挡。
🌟67层超高层地标,3.25米奢适层高,5楼起售,视野无遮挡
🌟6梯8户配置,三菱高速电梯,出行高效不等待
🌟1:1.1车位比,500个车位,满足高端家庭停车需求
🌟华尔登物业加持,8.9元/㎡/月物业费,享五星级管家服务
🌟2023年8月已交房,现房实景,即买即入住,无需等待
加福华尔登府邸位居福田CBD,地处深圳市核心位置,是集行政、文化、信息、国际展览、金融商务等于一体的综合服务中心,占据着城市顶级资源,拥有得天独厚的区位优势
福田中心枢纽|从容纵横全城
三地铁+双口岸+一轨道,三大综合交通系统,快捷联通前海、香港等核心区域
三地铁:下楼即达4、10号线枢纽福田口岸站,毗邻福田7号线福民站,2站直达福田CBD,从容通达深圳全城;三地铁物业占据天然优势;
轨道:穗莞深城际轨道2站直达前海,联通两大深港合作区;
道路:毗邻城市主干道,深南大道、滨河大道两条城市东西干道,京港澳高速公路入口,交通便捷,快速通达全市;
口岸:临近深圳福田口岸与皇岗口岸,无缝接驳深港两地,往来便利。
C>家门口即享优质教育|让孩子在书香里成长,与师为邻,书香满园优质学府环伺,实现家与学校“邻”距离让孩子从小深受书香氛围熏陶
D>接驳地铁|奢享一站式商业空间接驳地铁商业,共同打造高品质、高标准的一站式繁华商业空间
尽享福田CBD繁华版图,拥揽卓悦中心、深圳中心城广场、COCOPAPK、皇庭广场等超级SHOPPING MALL。深圳的繁华商业步行街—水围文化商业街为邻,于传承老店里享受繁华慢时光
一,揽城央盛景|赏自然风华以24小时无间断,360度宽频视野,媲美ONE57、海德园公园1号
1,周边环绕超500公顷的360度环幕景观,北看福田CBD繁华城市景观、南看香港米浦,西看深圳湾、东看罗湖城市景观,集萃深圳中心最高端丰盛的景观资源,让身份感和中心视野相得映彰
2,早8:00,俯瞰香港米浦湿地自然保护区清晨打开窗户,呼吸香港米浦的自然气息,看候鸟春秋迁移,新的一天由此唤醒
3,12:00,两座高塔的对望,以高度致敬经典于深圳居住之巅于平安金融中心,身处中心的自豪油然而生,新的一天又充满斗志
4,18:00,俯瞰湾区起源地,减夕阳西下在闲暇之余,静坐窗前,看夕阳西下,在城市中与家人享受片刻的
5,20:00,静享福田CBD的繁华脱去一身疲惫回到家中,给自己倒一杯红酒,于观景阳台上观赏福田CBD的灯光秀
>约239米藏品级臻宅|匠筑人居典范
以高度定中心:在约239m的城市地标中彰显身份
本项目以约239m的高度,雄踞于深圳价值高峰,筑深圳天际尖端住宅表率。于高空之中,尽享城央繁华与自然生态。
加福华尔登府邸 售楼处电话☎:400-033-1856【售楼处已认证】
��在售户型图丨项目介绍丨最新房源丨周边配套丨详细解答〢
加福华尔登府邸 营销中心电话:400-033-1856【售楼处已认证】
⭐◆开发商营销中心诚挚邀请,一键预约,尊享内部折扣!匠心独运的精品项目,恭候您的品鉴与选择。
⭐项目最新介绍:备案价、折扣、学区、地铁、交通、户型图、特价房、优缺点、得房率、优惠活动、小区图片、开盘时间、交房时间、周边配套、售楼处位置、最新详情等咨询。
免责声明:
1、本文、图片等信息部分来源于网络,如有相关内容侵权,烦请联系删除。
2、本文所提及一切图文资料以政府最后审批之法律文件及买卖双方签订的买卖合同为准。
3、我们重在分享,本文所述内容和意见仅供参考,不构成市场交易依据和投资建议。
住建部:建“好房子”不等同于建“大房子”“贵房子”
①住房城乡建设部在新闻发布会上介绍了其编制背景、意义及如何保障住宅安全性、健康舒适性、隔声性能和满足“一老一小”需求等内容。
②《规范》顺应了人民群众对高品质居住的需求,全面提升了设计、材料、建造等方面的标准水平,旨在推进城镇住宅高质量发展。
《住宅项目规范》(以下简称《规范》)自发布实施以来,受到了社会广泛关注。在住房城乡建设部6月5日举行的新闻发布会上,住房城乡建设部标准定额司有关负责人、《规范》编制组专家分别从《规范》编制发布的主要背景、意义以及如何保障住宅的安全性和健康舒适性能、提升隔声性能、满足“一老一小”需求等方面进行了详细介绍。
今年《政府工作报告》提出,要完善标准规范,推动建设安全、舒适、绿色、智慧的“好房子”,顺应了人民群众的新期待。
“‘好房子’要有好标准。需要通过完善标准体系,全面提高设计、材料、建造、设备以及无障碍、适老化、智能化等方面的标准,来引领和支撑‘好房子’建设。”标准定额司有关负责人介绍说,正是基于这一背景,《规范》在编制过程中,顺应人民群众的高品质居住需要,全面梳理、研究现行标准,结合我国近年来住宅项目建设实践,在对现行住宅标准实施情况评估的基础上,采纳现行标准条文的同时,补充、修改了部分标准条文,进一步提升了标准水平。《规范》的实施,将进一步推进城镇住宅高质量发展。
他表示,《规范》是对“好房子”建设的底线要求。建“好房子”不等同于建“大房子”“贵房子”,而是要通过好的设计、好的施工、好的材料、好的服务等,解决居住中的痛点问题,全面提升住房品质。不同地区、不同面积、不同价位都应当有不同的“好房子”。
下一步,住房城乡建设部将积极开展《规范》宣传贯彻实施指导工作,包括开展线下、线上的宣传培训以及组织编制实施指南等。同时,制修订配套的推荐性国家标准、行业标准,指导支持相关地方标准、团体标准编制,并加强对《规范》实施的监督检查,包括工程项目的设计、施工、验收等是否符合标准,工程项目采用的材料、设备是否符合标准等,及时通报违法违规行为,依法对违反强制性标准的行为进行处罚,推动《规范》的落地实施,真正发挥其标准引领作用。
声明:本文由入驻焦点开放平台的作者撰写,除焦点官方账号外,观点仅代表作者本人,不代表焦点立场。
