荔源雅苑首页网站-南山荔源雅苑销售中心-荔源雅苑楼盘欢迎您-户型-价格-地址-楼盘详情-周边配套-售楼处电话
扫描到手机,新闻随时看
扫一扫,用手机看文章
更加方便分享给朋友
深圳——荔源雅苑最新介绍:备案价、折扣、学区、地铁、交通、户型图、特价房、优缺点、得房率、优惠活动、小区图片、开盘时间、交房时间、周边配套、最新详情等咨询。
荔源雅苑售楼处电话: 400 -045-8086预约来访下定当天更享折上折!!
(售楼中心 | 欢迎来电咨询 | 请提前预约登记看房 | 1:1销售专业讲解)
荔源雅苑营销中心热线: 400-045-8086(售楼处)【VIP贵宾专线】

平面图和户型图
将推出建面约50-89-117㎡,容积率约3.52,南山稀缺低密准现楼住宅区。建面约50-52㎡南山稀缺小户型,89㎡南向园景户型,臻稀117㎡南北通透品质户型。
项目有3种户型,
50㎡2房1厅1卫 310-370万
89㎡3房2厅2卫 620-660万
117㎡4房2厅2卫 780-850万
建面约50㎡上车小户(可售169套),全明户型,客厅带飘窗,三分离卫浴,无过道零空间浪费。
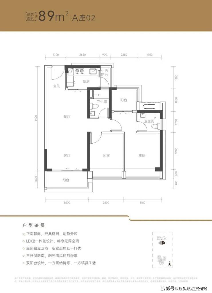
建面约89㎡正南户型(可售54套),三开间正南朝向,LDKB一体化设计,动静分区。
◆楼盘名称:荔源雅苑
◆地址:南山区--南头
◆物业公司:万家好物业管理有限公司
◆交房时间:2024年年底
◆占地面积:约0.62万㎡
◆建筑面积:约3.4万㎡
◆在售产品:50-89-117㎡
◆户型:2房-3房-4房
◆交付标准:精装交付
◆产权:70年产权
◆总户数:规划322户
◆车位:约240个
◆物业费:6.68元/㎡/月
◆容积率:约3.52
◆绿化率:约34%
◆梯户比:2梯5户、2梯7户
◆总栋数:1栋A\B座,总层分别30、28层
项目简介
荔源雅苑,位于南山区南头同乐片区中山园路与铁二路交汇处,项目东侧紧挨着同乐实验学校,西侧是同乐物联网产业综合基地,南侧是近期入市的安居房同乐馨苑。
从大区位来看,荔源雅苑位居宝安区跟南山区交界处,西侧是宝安中心区,北侧是南山TCL科学园国际E城,东侧是西丽交通枢纽,深圳超级总部基地,南侧是南山中心区。

交通配套
🚄🚄🚄✈️✈️✈️✈️荔源雅苑距离12号线同乐南站900米距离,还有建设中的15号线同乐关站双地铁口物业,贯穿前海、后海、南山、宝安等重要片区,环经济发展核心区域。

周边还有南坪快速,南山大道,北环大道,京港澳高速等交通要道,出行便捷。
教育配套
🎓🎓🎓🎓🎓项目距离科院同乐实验学校约100米,南山首个教科院系实验学校&九年一贯制学校,教科院:深圳市教育局直属公益一类事业单位,曾打造南山第二外国语学校。

商业配套
💍💍💍👜👜👜项目直线距离约100米有1万㎡隆尚Minitown(目前招商中),周边目前有成熟的社区底商,可以满足日常需求,在2.3公里范围内有海雅缤纷城,约6公里有前海壹方城,约7公里有深圳万象天地等大型商业综合体等等,坐享超50万㎡南山、宝中成熟中心高端商圈。
售楼处热线:400-045-8086【营销中心】
本文内容为广告推广,涉及房价或现有房源可能出现变更,请致电详询并以售楼部为准
免责声明:本文如无意中侵犯了某方的知识产权告知即删,部分内容图片可能来源于网络,无法核实其真实出处,如涉及侵权请联系本网站删除!!
声明:本文由入驻焦点开放平台的作者撰写,除焦点官方账号外,观点仅代表作者本人,不代表焦点立场。
