深业颐樾府售楼处电话_深业颐樾府售楼中心@深圳深业颐樾府首页网站_楼盘详情
扫描到手机,新闻随时看
扫一扫,用手机看文章
更加方便分享给朋友
龙华【深业颐樾府】售楼处24小时电话:400 033 9667(售楼中心)现场详细解答丨项目介绍丨户型图丨在售房源丨特价房丨学校丨交通位置丨样板房丨小区图片丨交房时间丨周边配套丨
详情咨询/预约看房热线:400 033 9667【售楼中心】
深业颐樾府★★售楼中心——欢迎来电预约尊享Vip一对一销售专业讲解服务!
▼▼Vip贵宾置业====欢迎来电预约尊享内部折扣====匠心钜制恭迎品鉴
【深业颐樾府】位于龙华区民塘路与上塘路交汇处,为2022年4月深圳首批集中供地,由科之谷(深业)+龙华人才安居,以37.8亿元+竞配人才房竞得。毛坯限价7.2万。奢居美宅,户型方正实用,超80%使用率。
深业颐樾府一期户型:建面约78-125㎡的3-4房住宅,户型方正实用,接近80%使用率,并且户户朝南、户户采光好。
深业颐樾府二期《颐璟台》户型:建面约99-116㎡3-4房,品质雅宅!户型方正实用,户户朝南,舒适采光!宽景阳台揽胜云端,奢阔景观面!
78㎡(2/3栋04户型)三房非常稀缺,可以说是上车红山的最低门槛了。
95㎡(2/3栋01/02/03户型)三房拥有稀缺的6米景观阳台,这不仅在红山,在整个龙华都非常少见。
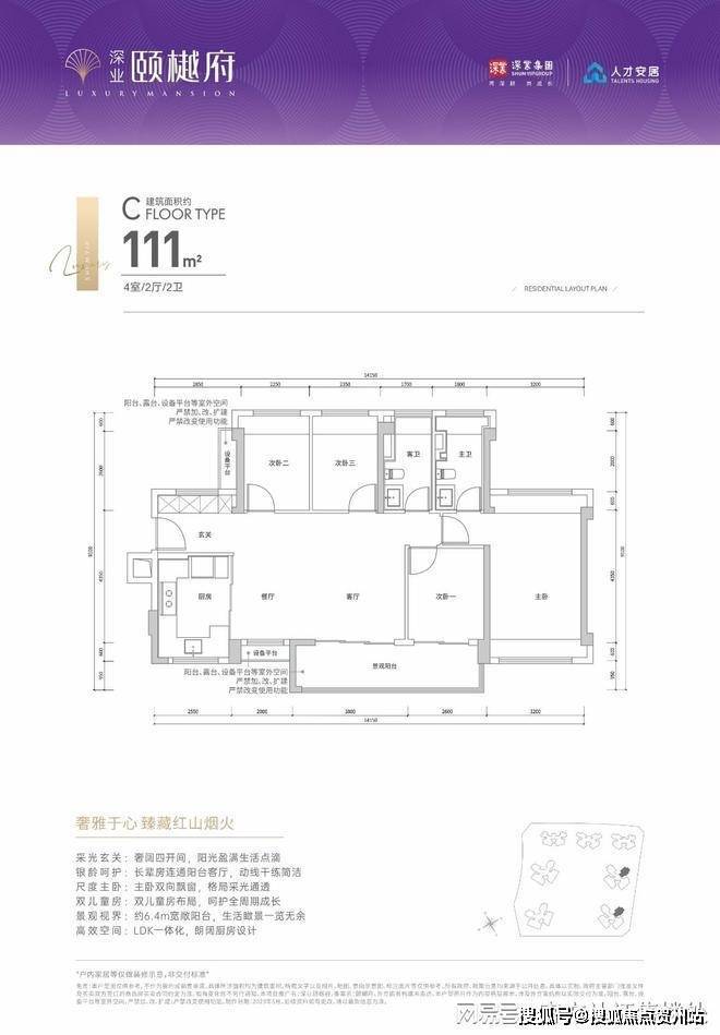
111㎡(2/3栋05户型)四房采用横厅设计,空间十分阔绰,主卧双面采光,居住非常舒适。
125㎡(2/3栋06户型)拥有6.8米景观大阳台,片区少有的270度景观主卧,视野非常好。
深业颐樾府二期《颐璟台》建面约99-116㎡3-4房
建面约99㎡三房两厅两卫
建面约116㎡四房两厅两卫
项目所在区域交通便利,位于地铁4号线上塘站、4/6号线交汇站-红山站双地铁口,1站抵达深圳北站,快速换乘5号线,极速福田中心。
自驾的话,约20分钟即可到达福田CBD、南山核心区。另外,周边有天虹、红山6979、美术馆、图书馆等龙华顶级城市配套环绕,还有龙华实验学校环绕,生活非常便利。
地铁4号线上塘站、红山站中间1公里左右、地铁6号线上芬站900米。轨道方面,从4/6号线红山站出来,步行约1公里即可到达,从该站出发一站可达深圳北站,可换乘5号线,也可乘坐高铁通往外省。
项目自带2000㎡商业,项目旁边还有星河cocogarden商场,方便日常生活。北站红山龙华三大商圈,项目距离天虹购物中心(龙华店)约500m、华南首家costco距离约700米,距离红山6979商业中心约1.3公里。
项目一街之隔为九年一贯制学校——深圳市龙华区实验学校,办学规模为70班,提供优质公办学位3400个(含中、小学),汇聚海内外骨干师资力量,2021年教学排名名列区属前茅。
自带公办幼儿园,未来业主有望实现家门口的12年全龄名优目送式教育。项目周边1公里范围内规划小学、九年制学校等多块教育用地,目前已兑现民顺小学、未来小学、民治中学、红山中学、格致中学等公办学校配套,书香浸润人文,涵养浓郁家风。
所在的红山片区,文体配套那可是市政级的,有已经建成的深圳美术馆新馆、深圳图书馆北馆以及已经开放使用的简上体育综合体,步行400米就可以到龙华简上体育馆,距离正在建设的深圳美术馆新馆和深圳第二图书馆仅800米!
开发商售楼处热线:400 033 9667 【营销中心】
本文内容为广告推广,涉及房价或现有房源可能出现变更,请致电详询并以售楼部为准
免责声明:本文如无意中侵犯了某方的知识产权告知即删,部分内容图片可能来源于网络,无法核实其真实出处,如涉及侵权请联系本网站删除!!!
声明:本文由入驻焦点开放平台的作者撰写,除焦点官方账号外,观点仅代表作者本人,不代表焦点立场。
