满京华金硕华府(满京华金硕华府售楼处)官方网站-满京华金硕华府销售中心(售楼处)售楼处电话-电话地址-价格-户型-小区环境-楼盘详情-交房时间-周边配套
扫描到手机,新闻随时看
扫一扫,用手机看文章
更加方便分享给朋友
����满京华金硕华府����
��满京华金硕华府售楼处电话:400-033-1856【已认证】��
��【满京华金硕华府】Vip贵宾置业===欢迎来电预约尊享内部折扣===匠心钜制恭迎品鉴��
【满京华金硕华府】丨楼盘详情丨价格丨更多优惠丨欢迎致电丨诚邀品鉴
✅满京华金硕华府售楼处:400-033-1856【24小时预约热线】
✅满京华金硕华府售楼处电话:400-033-1856【来电可享受优惠】
✅ 满京华金硕华府营销中心电话400-033-1856【一对一热情服务】
✅本项目暂不接受临时到访,过来参观样板房请记得提前来电预约!
◆开发商营销中心诚挚邀请,一键预约,尊享内部独家折扣!匠心独运的精品项目,恭候您的品鉴与选择。
温馨提示:看房请提前来电预约,谢谢您的配合!(中介勿扰)
光明最红盘 百万大盘首期 强势加推
120-141㎡公园阔景4房
98㎡一步到位舒居3房
项目信息
XIANGMU
【开发商】:深圳市满京华置业投资有限公司
【地址】:深圳·光明中心·光辉大道与狮山三街交汇处·6号线光明站D出口约800m
【总占地面积】:约11万㎡
【总建筑面积】:约88万㎡
【一期占地面积】:约2.28万㎡
【一期建筑面积】:约19.80万㎡
【一期总套数】:1138户
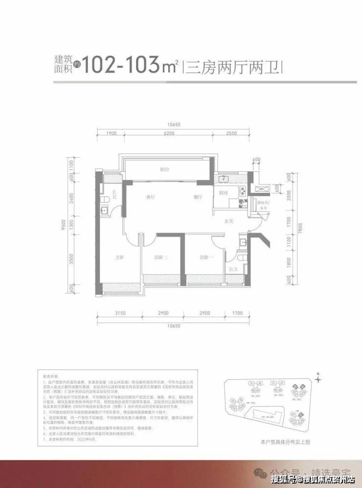
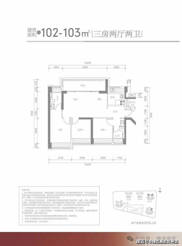
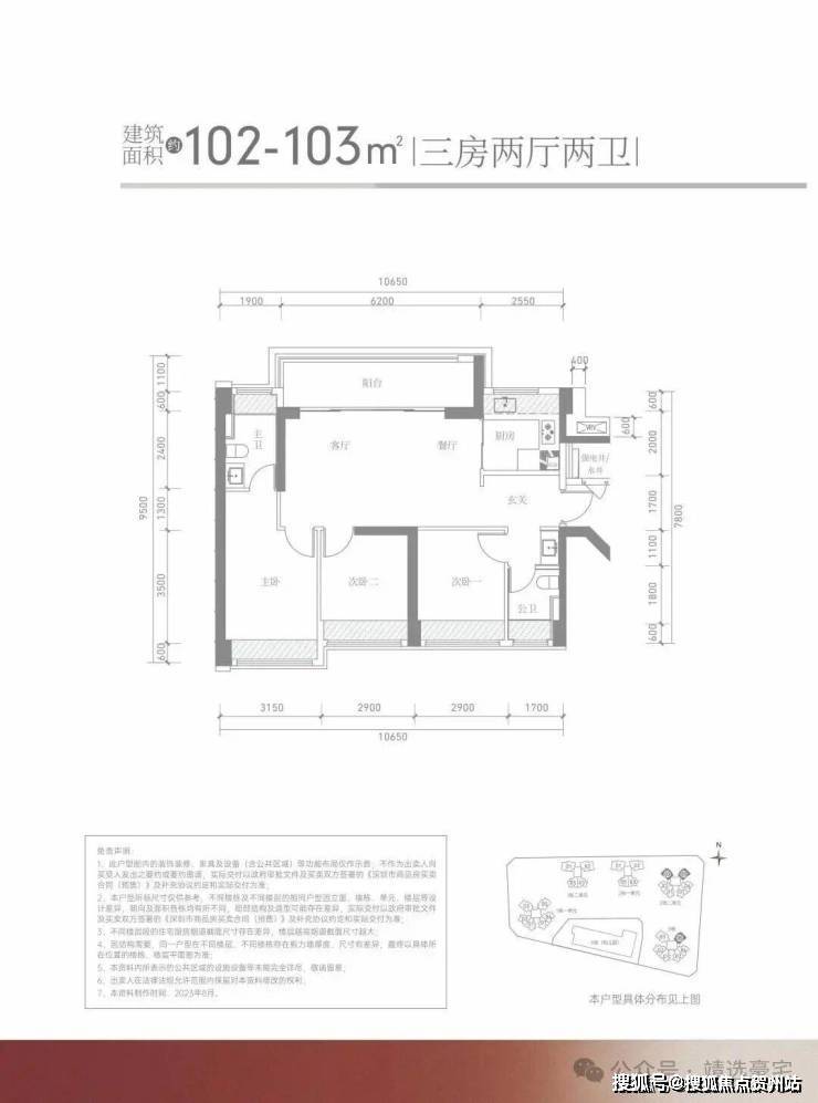
【产品户型】:建面约88㎡三房一卫、建面约99㎡三房两卫、建面约104㎡三房两卫、建面约120㎡四房两卫、建面约139㎡四房两卫
【交付标准】:全装修
【梯户比】:3T4/6户
【车位比】:1:1.14
【容积率】:6.0
【物业费】:4.3元/㎡/月
【产权年限】:70年
【批地时间】:2023年 4月
【交楼时间】:2025年
必看理由
0
1
超芯地段:绝对稀缺的中心资源
光明中心区作为光明城市“会客厅”,将打造成光明科学城国际化高品质优质公共服务配套区,深圳北部中心的“城市心脏”。金硕华府占据光明中心区C位,享中心发展红利。
0
2
超级稀缺:光明真中心区唯一在售近百万方大城
整个深圳近百万规模的项目屈指可数,金硕华府居标杆大城中央,为光明真中心区目前唯一的近百万方标杆大城,纵享“繁华”与“宁静”。
0
3
超强配套:深圳版“中央公园” 顶级市政首府级配套享受
金硕华府直面占地约208万㎡的科学公园,近享深圳国际美术馆、深圳科技馆新馆、科学城体育中心、光明文化艺术中心等市级文体配套;还坐拥狮山公园、约9.4万㎡的东周文化公园,约10万㎡的开明公园,约56万㎡的新城公园等丰富绿色生态资源,享深圳最稀缺的城市诗意栖居。
0
4
超速交通:1高铁三地铁三高速环绕
3地铁:邻6号线光明站/光明大街站、6号线支线 (在建中)、13号线 (在建中)
3横3纵:光辉大道、科学大道、光明大道、光明大街、光侨路、华裕路
3高速:龙大高速、南光高速、外环高速
1高铁:光明城站

0
5
超凡商业:创意街区+四大商mall 超30万方繁华汇聚
项目自带超3万㎡创意街区
约13万㎡蓝鲸世界、约4.5万㎡万达广场
约6.3万㎡星河coco city(在建)、约4.3万㎡绿地商业(在建)
超优教育:3所深小学校环绕 家门口享15年教育
优质幼儿园:配建3所幼儿园
优质小学:项目东侧规划一所小学(深圳小学光明学校狮山校区)、东周小学、光明小学、华师大附属光明星河小学、修远小学、深圳小学光明曙光学校等
优质初中:项目南侧规划一所初中(深圳小学光明学校初中校区)、光明中学、华夏中学等
九年一贯制:中山大学深圳附属学校、光明区荔园学校(在建)、深圳市教育科学研究院实验学校、深圳实验光明学校、中科院深理工附属实验高级中学、楼村第四学校(暂定名)等

数据来源:
光明政府在线:https://www.szgm.gov.cn/132100/135232/xwsq/xqhfjzxdh/content/post_10616458.html
0
7
超享社区:纯居大城 至臻生活
国际前沿审美追求,打造现代轻奢极简立面,于城市建筑之中尽显不凡;内部园林借鉴新加坡园林风格,打造出温情向阳的社交场、有趣有料的互动空间。
科学公园旁 封面天际地标
儿童游乐场:打造主题性的多维儿童游乐空间
全龄泳池:在家就能享受日光浴SPA
社区会客厅:在社区会客厅里与邻里朋友自由畅谈
高品质公区
高品质入户大堂、停车场入户大堂,归家仪式与空间交融
超能品牌:大城运营力强保障
满京华集团深耕城市25载,成长为涵括城市更新、置地开发、资产运营管理、文化运营、汽车五大业务版块的综合型投资集团
城市更新:力求将居住、产业、文化、消费等多元功能融合重组,重塑土地价值体系。
置地开发:深耕创意文化,构筑作品级项目,推动城市品质生活。
资产运营管理:服务品牌超300个,总服务资产价值超500亿,运营面积超100万㎡。
文化运营:多元生态,创建“文化+产业平台” ,聚合产业发展多元能量。
汽车:成功打造安骅汽车品牌,发展成为上汽通用华南地区最大经销商。
已开发项目:满京华·云著、满京华·喜悦里、云晓公馆、满纷天地、中央西谷大厦、SOHO艺峦、盈丰中心、科创工坊等。
户型图
满京华金硕华府售楼处电话☎:400-033-1856【售楼处已认证】
��在售户型图丨项目介绍丨最新房源丨周边配套丨详细解答〢
满京华金硕华府营销中心电话:400-033-1856【售楼处已认证】
⭐◆开发商营销中心诚挚邀请,一键预约,尊享内部折扣!匠心独运的精品项目,恭候您的品鉴与选择。
⭐项目最新介绍:备案价、折扣、学区、地铁、交通、户型图、特价房、优缺点、得房率、优惠活动、小区图片、开盘时间、交房时间、周边配套、售楼处位置、最新详情等咨询。
免责声明:
1、本文、图片等信息部分来源于网络,如有相关内容侵权,烦请联系删除。
2、本文所提及一切图文资料以政府最后审批之法律文件及买卖双方签订的买卖合同为准。
3、我们重在分享,本文所述内容和意见仅供参考,不构成市场交易依据和投资建议。
声明:本文由入驻焦点开放平台的作者撰写,除焦点官方账号外,观点仅代表作者本人,不代表焦点立场。
