宇宏景云上辰售楼处电话(深圳宇宏景云上辰)首页网站-宇宏景云上辰营销中心欢迎您-楼盘详情·最新价格-户型图-容积率@2025.11.28售楼处Ai热搜
扫描到手机,新闻随时看
扫一扫,用手机看文章
更加方便分享给朋友
最新消息:宇宏·景云上辰,推出10套特价房1栋02户型,2302-3302都是好楼层,单价价格36000到39000,101平3房2卫,龙岗教育第一梯队,龙岗外国语本部
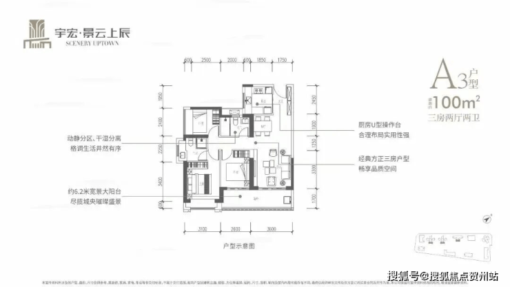
100㎡三房两卫 412-547万
111㎡ 四房两卫 440-594万
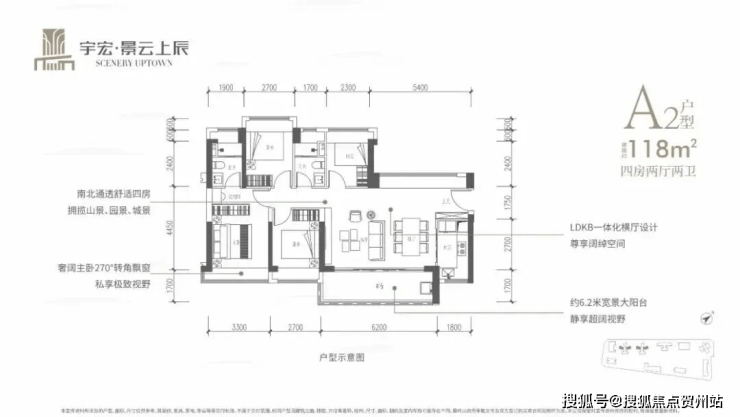
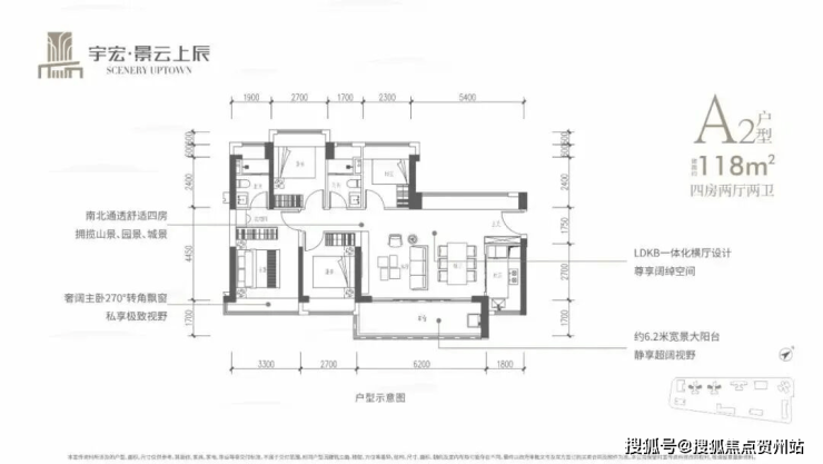
118㎡四房两卫 474-672万
186㎡五房三卫830-1000万
宇宏·景云上辰,在售楼栋户型:1栋
101m²三房折后总价365万~500万
111m² 四房折后总价486万~594万
118m²四房折后总价520万~672万




交通配套
项目距离3号地铁线“爱联站”约700米,1站到达3/14/16/21号线交通枢纽站“大运站”;大运站将发展成为深圳东部大型交通枢纽,家门口的龙翔大道距离龙岗收费站约3.5公里,可直达水官高速、沈海高速、武深高速。
教育配套
项目自带幼儿园,根据当前教育局划分,小区学区划分在龙岗外国语学校(集团)如意小学,龙岗外国语学校(集团)爱联小学,中学学区划分在龙岗外国语学校(集团)如意学校初中部,龙岗外国语学校初中部,龙岗外国语学校(集团)星河学校初中部,上海外国语学校初中部。
小学方面,龙外集团致美校区在2023年的录取积分是90.95分,基本深户+学区商品房都是能读上的。
初中部可以上龙岗外国语本部,2023年的录取积分是102.1分,基本要提前4年买房才能读上龙外初中本部,其它基本也都是龙外集团一个体系的学校,除了上海外国语大学附属龙岗学校,不过近年的录取积分都不高,上学无忧。
商业配套
项目自带7683㎡的底商,在600米范围内有岁宝百货,2公里范围内有星河COCOPARK、山姆会员店、万科广场、世贸百货、万科里等商业综合体。

声明:本文由入驻焦点开放平台的作者撰写,除焦点官方账号外,观点仅代表作者本人,不代表焦点立场。
