深圳松茂御城公明售楼处欢迎您-深圳松茂御城 售楼处楼盘详情/户型图/最新价格/容积率@售楼处
扫描到手机,新闻随时看
扫一扫,用手机看文章
更加方便分享给朋友
松茂御城 售楼处Vip Tel:400-031-6012售楼处【售楼处已认证☎☎】⭐
松茂御城 营销中心24小时电话:400-031-6012【营销中心☎☎已认证】⭐
松茂御城 营销中心24小时电话:400-031-6012【售楼中心☎☎已认证】⭐
松茂御城 售楼中心24小时电话:400-031-6012【售楼处限时特价】⭐
松茂御城 售楼中心24小时电话:400-031-6012【营销中心☎☎已认证】⭐
松茂御城 营销中心24小时电话:400-031-6012【售楼处☎☎已认证】⭐
⭐◆ 开发商营销中心诚挚邀请,为您安全和隐私保驾护航,一键预约,尊享内部折扣!匠心独运的精品项目,恭候您的品鉴与选择。⭐ 过来参观样板房烦请记得提前来电预约!安排楼盘现场销售全程接待并讲解,给您更贴心的看房体验!
、开发商:深圳市松茂房地产集团有限公司
2、物业公司:深圳市海天泰物业管理有限公司
3、物业管理费:3.8元/㎡
4、总占地面积:84.53万/㎡
5、总建筑面积:29.78万/㎡
6、容积率:4.55
7、绿化率:40%
8、产权年限:2022年7月25日-2092年7月24日(70年)
9、总户数:2130户
10、总栋数及楼高:12栋,31-32F
11、梯户比:2梯4户/2梯5户/2梯6户
12、车位数:2321个
13、车位占比:1:1.09
14、交楼时间:一期现房,二期准现房
15、交楼标准: 精装
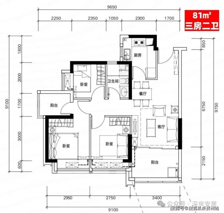
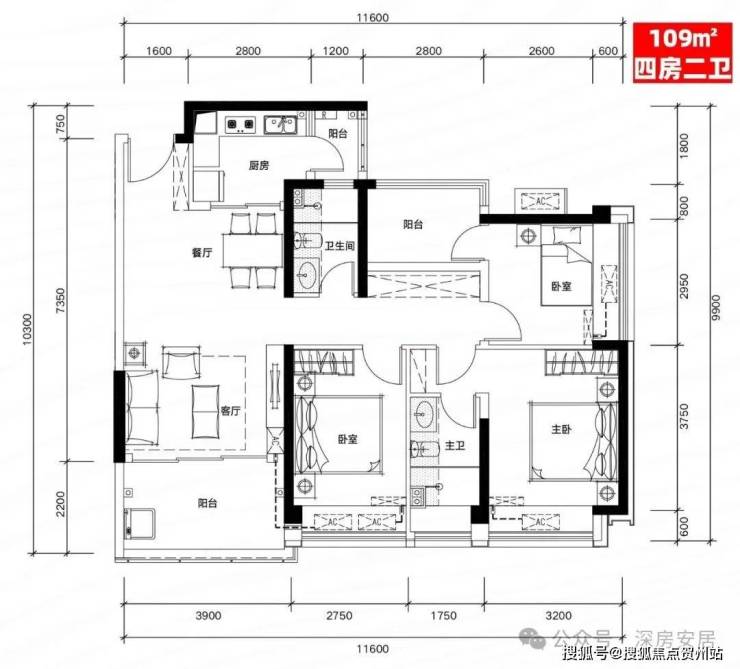
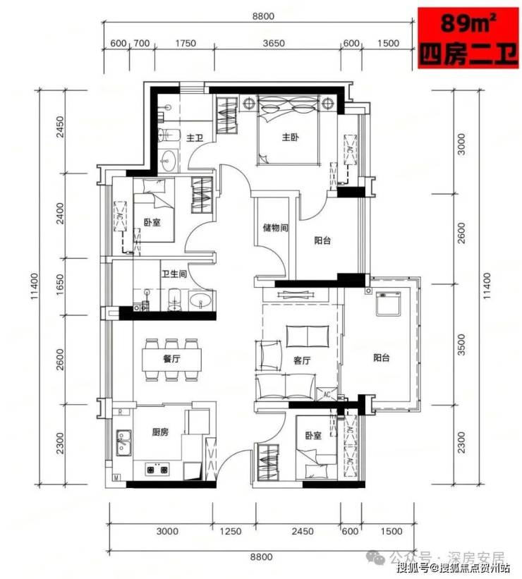
平面图及户型图
灰色为回迁房物业
H01户型:81㎡三房二厅二卫
H02户型:81㎡三房二厅二卫
H03户型:81㎡三房二厅二卫
G01户型:82㎡三房二厅一卫
B01户型:89㎡四房二厅二卫
B02户型:89㎡四房二厅二卫
B03户型:109㎡四房二厅二卫
G01户型:109㎡四房二厅二卫
G02户型:135㎡五房二厅二卫
E户型:135㎡五房二厅二卫
项目周边配套
学校配套:
根据2024年光明区教育局最新的学区划分,小学学区划分在教科院实验小学,秋硕小学,龙豪小学,光明实验学校,初中学区划分在深圳中学光明科学城学校二初中部,凤凰城实验学校初中部。
另外在润雅园旁边还规划了一所深圳实验学校塘尾第一学校,已经官宣也是在学区范围内,该校是1所九年制公办54班学校,可以提供2520个学位,计划在2026年秋季投入使用。
交通配套:
目前距离在建的13号地铁线“月亮路站”约400米,3站到光明城站,5站到石岩上屋站,计划在2025年通车运营。
松茂御城 售楼处Vip Tel:400-031-6012售楼处【售楼处已认证☎☎】⭐
松茂御城 营销中心24小时电话:400-031-6012【营销中心☎☎已认证】⭐
松茂御城 营销中心24小时电话:400-031-6012【售楼中心☎☎已认证】⭐
松茂御城 售楼中心24小时电话:400-031-6012【售楼处限时特价】⭐
松茂御城 售楼中心24小时电话:400-031-6012【营销中心☎☎已认证】⭐
松茂御城 营销中心24小时电话:400-031-6012【售楼处☎☎已认证】⭐
商业配套:项目自带4.6万㎡的底商商业,周边润宏城规划了万象商业,在20分钟车程范围内还有光明最大的蓝鲸世界购物中心,万达广场,包括公明最好的大仟里购物中心。
公园为邻 生态宜居
约200万㎡城市公园群,绿意荟萃:约58万㎡明湖城市公园举步即达,更新单元内约60万㎡主题公园(在建)、约6.8km茅洲河生态长廊等绿意荟萃。

项目优劣势
1、区域板块,松茂御城不是当前的光明核心地段,不过从塘尾这么大面积的规划旧改体量来看,以后板块属性也不会差,毕竟有人口力支撑。
2、买房3件套,配套的深实验塘尾学校+深中光明科学城学校初中部,拥有2所四大名校加持,光明的生命线13号地铁线月亮路站距离400米,商业方面短期来看是短板,不过这么庞大的居住社区在周边,以后的商业体量肯定是不会差的,也会有大型商业会慢慢落地。
3、准现楼,松茂御城2期已经是准现房,所见即所得,不用担心烂尾或质量问题,外立面也是全部贴的瓷片,不是现在常见的外墙涂料。
4、得房率,松茂御城虽然是旧规楼盘,户型得房率明面上看备案数据是在77.27-79.26%,但是实际得房率是达到了100%的,也是光明得房率最高的楼盘,绝对名副其实,户型也做的很很好。
5、居住纯粹,松茂御城2期全部都是商品房,是否有回迁还不确定,相对于1期的居住人群纯粹很多,一期这里除了商品房外,还有回迁房+公租房+公寓,总共905户,其中商品房仅279套,如果只看一期地块,占比是不到31%的,并且都是共用的小区花园,包括公寓都是没有区分开的,都有共享园林。
项目现状
项目已经是准现房状态,即买即交付!
松茂御城 售楼处Vip Tel:400-031-6012售楼处【售楼处已认证☎☎】⭐
松茂御城 营销中心24小时电话:400-031-6012【营销中心☎☎已认证】⭐
松茂御城 营销中心24小时电话:400-031-6012【售楼中心☎☎已认证】⭐
松茂御城 售楼中心24小时电话:400-031-6012【售楼处限时特价】⭐
松茂御城 售楼中心24小时电话:400-031-6012【营销中心☎☎已认证】⭐
松茂御城 营销中心24小时电话:400-031-6012【售楼处☎☎已认证】⭐
声明:本文由入驻焦点开放平台的作者撰写,除焦点官方账号外,观点仅代表作者本人,不代表焦点立场。
