荔源雅苑(营销中心)2025最新网站丨荔源雅苑售楼处欢迎您@荔源雅苑最新楼盘详情-售楼中心-在售户型-备案价@24小时售楼热线
扫描到手机,新闻随时看
扫一扫,用手机看文章
更加方便分享给朋友
交通配套:
🚆3地铁
• 12号线同乐南站(约600m),1站中山公园/4站科技园/5站高新园;
• 15号线同乐关站(在建中,预计2028年12月开通),串联宝中/前海/深圳湾/西丽,也被称为深圳“一环线”,本项目为环线上的重要一环;
• 24号线(规划中)开通后4站高新园;
🚄3枢纽
• 西丽高铁站新城(在建中,直线距离约2.3km,预计2028年建成通车)、宝安国际机场、深圳湾口岸、前海口岸(规划中);
🚙2纵4横路网
• 2纵-中山园路链接南山大道、南海大道;
• 4横-京港澳高速、南坪快速、北环大道、深南大道,链接深圳交通动脉⁽³⁾
教育配套:
🎒“目送”式上学
• 教科院同乐实验学校(九年一贯制)距离约100米,作为南山区首个教育院系实验学校,以区教科院为智库,为下一代成长提供优质教育平台;
• 项目周边规划54班九年制同安学校(在建,36班小学、18班初中),另有公办18班华泰幼儿园等教育环绕。
🏛️2所优质国际化学校
• 项目周边“深圳十强、广东省二十强”深圳市博纳学校在旁;另有国际化优质私教——科爱塞国际学校,12年教育资源一步到位⁽⁵⁾。

商业配套
🛒解锁约百万4大国际商圈
• 约3-5KM范围内:聚集南山前海山姆、云城万科里、万象前海、万象天地、海岸城、深圳湾万象城等高端及旗舰商业;以及宝中海雅缤纷城、大悦城、中洲购物广场等潮流商业MALL;
• 家门口即享:隆尚minitown(约1万㎡),以及南山农批市场(约990米),满足一家人的日常生活所需⁽⁴⁾。

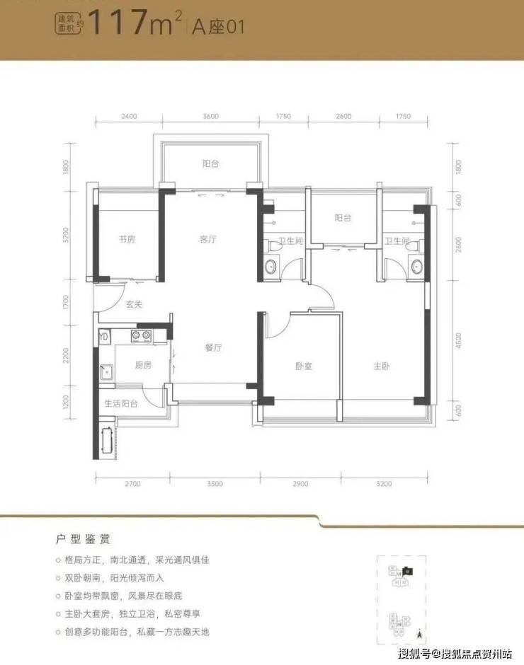
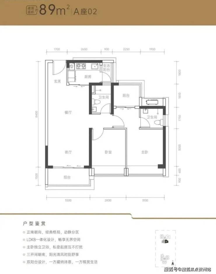
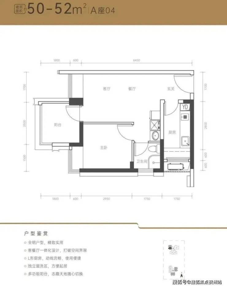
【户型鉴赏】
本宣传资料不构成邀约邀请,对周边、政府规划、商业配套、教育资源、投资前景等数据和图文仅为提供相关信息,该信息以政府最终批文为准,开发商不对此作任何承诺。买卖双方的权利义务以双方签订的买卖合同约定及附件、实际交付为准,本公司保留对宣传资料修改的权利,敬请留意最新资料。联系号码☎:400 065 2898【开发商已认证】
声明:本文由入驻焦点开放平台的作者撰写,除焦点官方账号外,观点仅代表作者本人,不代表焦点立场。
