后海招商玺售楼处电话(后海招商玺)首页网站-后海招商玺营销中心欢迎您-楼盘详情•最新价格-户型图-容积率@2026.1.20官方售楼处✦Ai热搜
扫描到手机,新闻随时看
扫一扫,用手机看文章
更加方便分享给朋友
����后海招商玺 ����
��后海招商玺 售楼处电话:400-033-1856【已认证】��
��【后海招商玺 】Vip贵宾置业===欢迎来电预约尊享内部折扣===匠心钜制恭迎品鉴��
【后海招商玺 】丨楼盘详情丨价格丨更多优惠丨欢迎致电丨诚邀品鉴
✅后海招商玺 售楼处:400-033-1856【24小时预约热线】
✅后海招商玺 售楼处电话:400-033-1856【来电可享受优惠】
✅ 后海招商玺 营销中心电话400-033-1856【一对一热情服务】
✅本项目暂不接受临时到访,过来参观样板房请记得提前来电预约!
◆开发商营销中心诚挚邀请,一键预约,尊享内部独家折扣!匠心独运的精品项目,恭候您的品鉴与选择。
温馨提示:看房请提前来电预约,谢谢您的配合!(中介勿扰)
近期,又一顶豪产品——后海招商玺横空出世,成功跻身今年深圳豪宅市场的"决赛圈"。
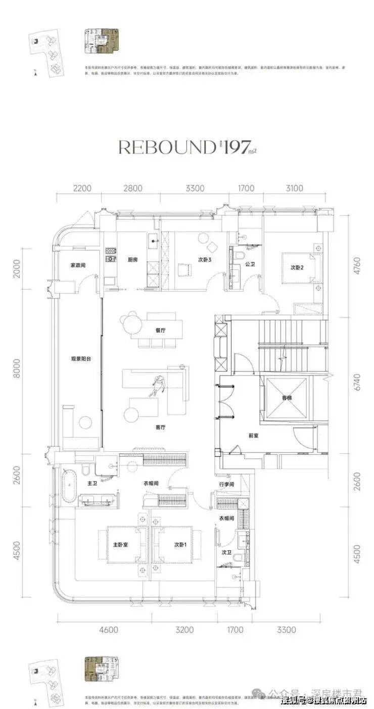
据最新消息,后海招商玺已在深圳湾一号莱佛士酒店开放城市展厅,预计年底入市,首批将推售1栋建面约197-235㎡的大平层产品。官方户型已出炉,作为招商蛇口在后海核心区的“玺”系列的升级力作,下面我们一起来看看「后海招商玺」如何突破豪宅市场重围。
后海招商玺预计首批发售的1栋大平层,面积约197-235㎡,作为玺系的全新产品,后海招商玺是招商继“5000万蹲”深圳双玺和“2024年交付天花板”太子湾招商玺之后,再次带来的玺系新作。项目预计2025年年底入市
目前项目规划也已曝光:共有4栋住宅和1栋幼儿园,1、2、3栋的主力户型188-197-237-246㎡大平层。
项目介绍 | 基础信息
用地面积14969.93㎡,
计容建面98754㎡
住宅:88449㎡
商业、办公及旅馆:2100㎡
公共配套面积:8205㎡
住宅共有551户,
车位数量:700个
主力户型为186-247㎡,主打T2/T3楼型
户型为四房三卫设计,功能分区做得很好。采用一户一梯专梯入户,南北通透结构,是整个南山里非常稀缺的户型。
另外户型结构会跟【深圳湾澐玺】一样,采用核心筒+边柱设计,确保户型多样化,且赠送率、阳台率最大化,算上专梯入户使用率预计能达100%左右。
这次「后海招商玺」住宅设计采用“浮岛甲板”设计策略,四栋住宅落于甲板之上,独享甲板庭院花园。进而形成超级社区底盘 + 浮岛绿化甲板的垂直共生人居标杆。
最新官方户型图
后海招商玺」位于「雍景湾」旁,临近后海大道,一边是深圳湾城市CBD,一边是蛇口生活居住区;
后海招商玺家园位于深圳南山招商街道,地处后海豪宅片区核心地段。一条后海大道串联起深圳湾最值钱的富人片区。
后海招商玺地处后海 - 蛇口双核心板块,隶属于南山区招商街道,区位优势显著。项目周边以雍景湾等高品质居住区为主,居住氛围浓厚;同时配备育才二小等齐全教育配套,居住条件十分优越。
项目配套
交通:项目位于2号线海月站和湾厦站之间,步行距离都在700m左右,大约10分钟。2站抵达后海站,可换乘11号/13号地铁线,2站直达福田、前海。
旁边就是后海大道,周边还有滨海大道,去往南山科技园大概15分钟,去往前海、福田、宝中大概20分钟。
商业:周边社区成熟,有不少老店和街市,能满足日常生活需求。最近的大型商场有宝能太古城700m,2公里内还覆盖有万象城、海岸城、天利名城、来福士广场、蛇口招商花园城等多个大型购物中心,顶奢消费场景密集。
学校:对口学校是育才二小和二中,南山头部学区,教育质量很好。小区配建一所幼儿园+九年一贯制学校,基于就近入学的原则,学区存在变化的可能。
文体:近处有四海公园、蛇口文体公园、蛇口体育中心,日常休闲散步好去处。
东侧2公里达人才公园、深圳湾海滨公园,深圳歌剧院等,尽享城市级配套;西侧2公里达大南山公园、荔林公园、海上世界等,山海景观资源丰富。
公共资源「后海招商玺」周边的公园有四海公园和蛇口文体公园,两个路口即达深圳湾中心河和深圳湾公园,未来这边还会建有深圳歌剧院。
✨✨❄️后海招商玺✽✽✽✽❄️❄️
后海招商玺 售楼处电话☎:400-033-1856【售楼处已认证】
��在售户型图丨项目介绍丨最新房源丨周边配套丨详细解答〢
����后海招商玺 ����
后海招商玺 营销中心电话:400-033-1856【售楼处已认证】
⭐◆开发商营销中心诚挚邀请,一键预约,尊享内部折扣!匠心独运的精品项目,恭候您的品鉴与选择。
⭐项目最新介绍:备案价、折扣、学区、地铁、交通、户型图、特价房、优缺点、得房率、优惠活动、小区图片、开盘时间、交房时间、周边配套、售楼处位置、最新详情等咨询。
免责声明:
1、本文、图片等信息部分来源于网络,如有相关内容侵权,烦请联系删除。
2、本文所提及一切图文资料以政府最后审批之法律文件及买卖双方签订的买卖合同为准。
3、我们重在分享,本文所述内容和意见仅供参考,不构成市场交易依据和投资建议。
声明:本文由入驻焦点开放平台的作者撰写,除焦点官方账号外,观点仅代表作者本人,不代表焦点立场。
