卓越·缦悦(卓越·缦悦售楼处)首页网站-2025深圳卓越·缦悦房价_楼盘评测丨地址丨详情丨售楼处电话丨交房时间
扫描到手机,新闻随时看
扫一扫,用手机看文章
更加方便分享给朋友
📣📣卓越·缦悦📣📣
📣📣卓越·缦悦开发商24小时电话☎:4000 437 779【开发商认证】📣📣
📣📣卓越·缦悦售楼处24小时电话☎:4000 437 779【开发商认证】📣📣
📣📣卓越·缦悦售楼部24小时电话☎:4000 437 779【开发商认证】📣📣
📣📣☞☞Vip贵宾置业==欢迎来电预约尊享内部折扣===匠心钜制恭迎品鉴☜☜📣📣
◈◈若有中介虚假宣传,请及时与售楼中心核对真假,避免上当!开发商热线4000 437 779【开发商认证】
每一座繁华都会,必有一条象征其精神与力量的城市中轴。它浓缩时代精华,执掌经济命脉,代言文明高度——在深圳,这条城市脊梁,正是纵贯南北的深圳中轴。
深圳中轴 一座城市的脊梁
七百年前,庄子后人翻山越岭,择莲花状山而居,以福田为核心的中轴故事由此开篇。
1980年,特区蓝图初绘,皇岗定位为“工商业中心”①。而真正奠定深圳脊梁的,是吴良镛、周干峙先生南下亲绘的南北中轴线。该轴线以北京中轴为蓝本,北起莲花山,向南延伸,串联起市民中心、福田CBD、深交所、会展中心等城市发展精华,掌握着一城的政经命脉与文明高度。

这一中轴线设想最早在1982年总体规划草图中提出,次年拓展为与深南大道交错的“十字轴”。其形态的清晰化始于1996年,华裔设计师李名仪的中心区中轴线优选方案,明确了规划总平面图,提出市民中心“大鹏展翅”的设计形态。②
1998年,日本著名建筑师、新陈代谢派代表人物黑川纪章以“共生”理念深化设计中轴,将其升级为一曲“现代城市奏鸣曲”,凝聚着全球智慧。其中代表作有美国KPF建筑师事务所设计的深圳平安金融中心、OMA库哈斯设计的深圳证券交易所等,目前已汇聚九国十七位建筑大师的杰出作品,成为深圳面向世界的璀璨名片。

中轴正脉 硬核价值根基
现在这条轴线上,正汇聚着深圳乃至大湾区最核心的资源与力量。
财富心脏<<<
这里是全国“含金量领衔”土地之一,聚集了约295家持牌金融机构,超156家世界500强企业,超150座过亿纳税楼宇等,贡献了全市超1/5GDP,是当之无愧的经济命脉。③
依托河套深港科技创新合作区,已汇聚苹果应用研究实验室、星巴克数字技术创新中心、西门子深圳能源创新中心等200+科研项目④,加速撬动中轴创新能量。
这条从莲花山延伸而出的中轴龙骨,以地脉为基、文化为韵、资本为脉,已成为一条资源虹吸、能量汇聚的发展动脉。它以“行政+金融+科技”三核驱动,铸就其无可撼动的中轴价值。
卓越集团自福田CBD始便深耕中轴,一路见证并参与缔造这条轴线上的重要建筑。当中轴价值不断夯实,卓越亦在此落下又一力作,与城市共赴新程。
ETERNAL
深圳中轴始终奔涌向前,其生命力正随国家战略向南澎湃。其北承福田CBD鼎盛繁华,南接河套科创浪潮与新皇岗口岸时代,在这南北双核交汇之地,正是中轴心系处,亦为卓越缦悦屹立之地。
向南望去,河套深港科技创新合作区,由全球知名设计师规划(如扎哈事务所),正吸引超过15万研发人才聚集⑤,被誉为“深圳硅谷2.0”。作为其前沿生活区和价值外溢承载地,此区域坐享深港融合带来的产业、人才和政策红利,未来发展潜力巨大。
而新皇岗口岸建设也为中轴注入巨大活力,预计2026年启用,将成为全球最大陆路口岸和深港24小时通关枢纽。它将连接5条地铁及城轨,与香港北环线无缝对接,实现快速通关,打造深港同城圈,成为深港超级枢纽。⑥
至此,这条始于特区原点的城市脊梁——深圳中轴,已从一城中轴,升维为驱动深港融合、赋能国家科创的“国之枢纽”。中心不断发展,中轴永不移位,这里是塔尖人物资产配置的终极坐标。
卓越与中轴伟大重逢,始于福田心,再著福田新。今以29载匠心修为,于中轴之上敬呈一席奢宅,既是对土地的致敬,亦是对城市未来的笃信。深圳中轴新作【卓越缦悦】即将启幕,敬请期待!
【主力户型】建面约91-173㎡3-4房新规产品
【开 发 商】深圳卓越皇岗旧城改造有限公司、深圳皇岗实业股份有限公司
【物业公司】卓越商企服务物业
【物 业 费】待定
【产权年限】70年
【总 栋 数】1栋5单元
【总 户 数】一期可售232户
【总 楼 层】45层
【梯 户 比】近1:1梯户比,大户型双电梯独立电梯厅入户,北区2梯2户双电梯独立电梯厅入户,南区3梯4户
【容 积 率】5.54
【占地面积】31428.9㎡
【建筑面积】174082.2㎡
【停 车 位】1266个
【交楼标准】精装
皇岗村城市更新总建面约201万㎡,由卓越与皇岗强强联合开发,承载历史融合新生,将打造成世界级城市典范综合体项目。项目位于深圳中轴之上,北接莲花山公园和城市CBD,南至深圳河对望香港,是深圳城市地标轴线的重要一环。

【学校】项目1km内云顶学校、皇岗创新实验学校、石厦学校、绿洲国际学校、荔园外国语小学等。

【商业】约7万m²自营商业MALL,周边福田CBD五大世界级地标商圈之一,5万+㎡体量商业体有18个

📣📣卓越·缦悦开发商24小时电话☎:4000 437 779【开发商认证】📣📣
📣📣卓越·缦悦售楼处24小时电话☎:4000 437 779【开发商认证】📣📣
📣📣卓越·缦悦售楼部24小时电话☎:4000 437 779【开发商认证】📣📣
📣📣☞☞Vip贵宾置业==欢迎来电预约尊享内部折扣===匠心钜制恭迎品鉴☜☜📣📣
◈◈若有中介虚假宣传,请及时与售楼中心核对真假,避免上当!开发商热线4000 437 779【开发商认证】
【户型鉴赏】:
【105㎡3+1房2厅2卫】

📣📣卓越·缦悦开发商24小时电话☎:4000 437 779【开发商认证】📣📣
📣📣卓越·缦悦售楼处24小时电话☎:4000 437 779【开发商认证】📣📣
📣📣卓越·缦悦售楼部24小时电话☎:4000 437 779【开发商认证】📣📣
📣📣☞☞Vip贵宾置业==欢迎来电预约尊享内部折扣===匠心钜制恭迎品鉴☜☜📣📣
◈◈若有中介虚假宣传,请及时与售楼中心核对真假,避免上当!开发商热线4000 437 779【开发商认证】
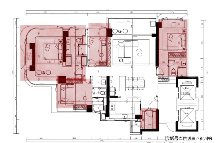
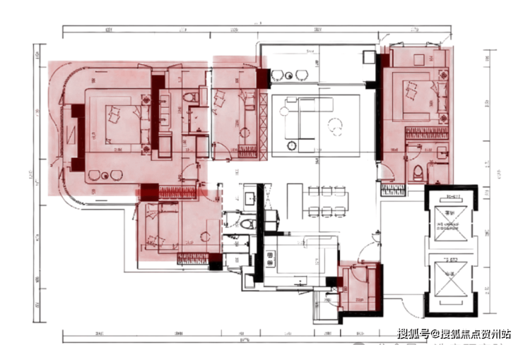
【125㎡4房2厅2卫】

📣📣卓越·缦悦开发商24小时电话☎:4000 437 779【开发商认证】📣📣
📣📣卓越·缦悦售楼处24小时电话☎:4000 437 779【开发商认证】📣📣
📣📣卓越·缦悦售楼部24小时电话☎:4000 437 779【开发商认证】📣📣
📣📣☞☞Vip贵宾置业==欢迎来电预约尊享内部折扣===匠心钜制恭迎品鉴☜☜📣📣
◈◈若有中介虚假宣传,请及时与售楼中心核对真假,避免上当!开发商热线4000 437 779【开发商认证】
【173㎡4+1房2厅3卫】双梯入户

📣📣卓越·缦悦📣📣
📣📣卓越·缦悦开发商24小时电话☎:4000 437 779【开发商认证】📣📣
📣📣卓越·缦悦售楼处24小时电话☎:4000 437 779【开发商认证】📣📣
📣📣卓越·缦悦售楼部24小时电话☎:4000 437 779【开发商认证】📣📣
📣📣☞☞Vip贵宾置业==欢迎来电预约尊享内部折扣===匠心钜制恭迎品鉴☜☜📣📣
◈◈若有中介虚假宣传,请及时与售楼中心核对真假,避免上当!开发商热线4000 437 779【开发商认证】
免责声明:本文部分内容来自网络,如有侵权,请联系删除
声明:本文由入驻焦点开放平台的作者撰写,除焦点官方账号外,观点仅代表作者本人,不代表焦点立场。
