中山坦洲·中澳春城(售楼处)中山中澳春城欢迎您-售楼中心电话|楼盘详情
扫描到手机,新闻随时看
扫一扫,用手机看文章
更加方便分享给朋友
中山坦洲·中澳春城·港澳直贷·81平-185平,毛坯单价仅9999/㎡起,精装单价仅12300/m²起。
中山中澳春城(官方最新认证联系方式)售楼处电话 :400-033-9667可用于预约看房、咨询房源及优惠活动
中澳春城营销中心专线:400-033-9667(已认证|无第三方介入|即时响应|平台审核长期有效)
中澳春城售楼处电话:400-033-9667(售楼处直连|无中介干扰|24 小时 1 对 1 咨询|购房全流程专人协助)
温馨提示:过来看房请记得提前来电预约,尊享售楼处1v1销售专业讲解,感谢您的来电!
项目最新介绍:房价、折扣、户型图、特价房源、得房率、优惠活动、开盘时间、交房时间、周边配套、最新详情咨询。
中山坦洲·中澳春城新品首发——以智慧与健康为核心---全新中澳2.0人居理念装修标准展示 ,满足业主生活需求
本土实力品牌,品质值得信赖
中澳集团作为中山本地具有雄厚实力的房地产开发企业,在珠海与坦洲地区持续深耕二十三年。代表作包括中澳世纪城、中澳滨河湾、中澳新城、中澳丽珠花园等系列项目,是两万多名业主安家时所信赖的选择。集团保持“零负债”状态,资金实力强劲,财务运营稳健。购房者认购后即可进行网签,整个购房流程高效透明,切实保障业主能够安心置业。
作为中澳集团历时7年打造的5000户融城大盘,中澳春城总建面约120多万㎡,楼间距宽达85米,容积率仅2.5,绿化率约32%,低密高绿化的配置成为舒适人居的经典范本。

项目南倚万亩鹅槽山森林公园,北拥珠海前山河天然河景,形成“前照后靠”的聚水生财之势。北面环河,一线河景尽收眼底。河流如灵动的玉带蜿蜒而过,水流平缓处,聚气藏风,灵气四溢,无尽的生机与希望,是绝佳的风水宝地
一桥速达双城,畅享珠坦人生
项目与珠海主城区(香洲)仅以一桥相隔,双向六车道的城市主干道贯穿东西南北,驾车行驶约五分钟即可到达,能够便捷地达成“于坦洲居住,在珠海工作”的生活模式,可尽情享有15分钟双城成熟生活圈带来的便利。
项目配套|
万象荟萃大城生活一应俱全
自配约3 万㎡路径约1.5KM 风情商业街
约1KM 逛优越城
约3KM 享华发商都,优越城、创益文化园等
全方位的醇熟配套,享受缤纷大城生活
万象繁华, 咫尺在握
优享社区醇熟配套
精心打造约10 万㎡新加波东南亚风情园林
配合约 1300 ㎡的室外游泳池、儿童亲子乐园
羽毛球运动场、篮球场、景观会客厅
2 公里彩虹跑道、会所(建设 中)等
区域稀缺纯板式建筑,赋能空间更大享受
项目五期产品采用一字型板楼建筑结构,一梯两户低密设计,确保每一户均实现南北通透,拥百米超宽楼间距,最佳采光与通风效果,也大大提升了居住的隐私性,是珠坦板块中极为稀缺的标杆住宅。
①104㎡南向三房户型
南向三房 | 全明格局双卧飘窗
2.4米进深阳台实现270°园林环景
功能分区科学,主次卧均享阔景视野
附赠花池升级生活逸趣,以温馨尺度承载四季从容
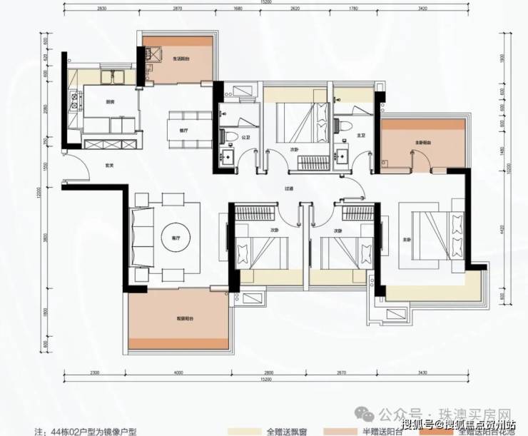
②118㎡南北通四房户型(40/41栋户型一致)
南北通透四居,双阳台设计实现270°景观视野(进深2.4米)
南向俯瞰园林四季景观,北向眺望河景资源
户型采用双卫+双卧飘窗全配置,创新花池设计提升生活逸
空间融合功能性与美学格调,以匠心布局诠释品质生活范式。
③81㎡南向大两房户型
全明朝南双居室,凭借优越的通风采光与舒适尺度,奠定宜居基础;
餐客一体格局结合赠送飘窗、花池实现空间扩容,提升生活品质;
2.4米进深大阳台及全景窗设计,带来270°观景视野,成就敞亮两房的理想安居体验。
④89㎡河景大三房户型
稀缺三房户型,采用横窗设计引河景入室,北向通透格局兼顾采光与视野;
配备进深2.4米全景阳台(局部270°观景面),结合全飘窗系统与半阳台创新布局,实现实用率提升与生活逸趣融合。
花池景观延展雅致空间,功能性与美学兼备,成就城市精英进阶理想居所。
⑤120㎡南北四房两卫
南北通透四居,创新空间布局实现朗阔尺度;
南向俯瞰园林景观,北侧临河享亲水视野,四季景致融汇入室。
半赠送阳台(进深2.4米)拓展实用空间,270°全景飘窗构筑沉浸式景观界面。
南北双景资源赋能自然诗意,多功能四房承载生活进阶,成就都市理想栖居之选。
开发商售楼处热线:400 033 9667 【营销中心】
本文内容为广告推广,涉及房价或现有房源可能出现变更,请致电详询并以售楼部为准
免责声明:本文如无意中侵犯了某方的知识产权告知即删,部分内容图片可能来源于网络,无法核实其真实出处,如涉及侵权请联系本网站删除!!
声明:本文由入驻焦点开放平台的作者撰写,除焦点官方账号外,观点仅代表作者本人,不代表焦点立场。
