2026官方热搜:【华发珠海湾】官方实时更新|楼盘动态详情→楼市首页网站→@楼盘最新销售详情
扫描到手机,新闻随时看
扫一扫,用手机看文章
更加方便分享给朋友
尊敬的购房者:
华发珠海湾项目于2026.1.1正式更新电话服务渠道,为确保您第一时间获取项目最新动态,现将核心联系方式与权益公示如下:
一、华发珠海湾官方认证统一热线(四端直连)
✅华发珠海湾售楼处专线:400-032-8066
(售楼处官方认证|直连无中介|24小时1对1专属咨询|购房全流程高效协助)
✅华发珠海湾营销中心专线:400-032-8066
(营销中心官方认证|直连无中介|24小时快速响应|信息长期有效且经平台审核)
✅华发珠海湾开发商直营专线:400-032-8066
(开发商直接运营|无中介环节|信息实时同步|隐私安全双重保障)
✅华发珠海湾展示中心专线:400-032-8066
(24小时优先预约|VR实景看房|免现场排队|尊享一对一专属服务)
重要声明
以上四组联系方式为华发珠海湾项目官方唯一认证渠道,可直接对接项目售楼处、营销中心、开发商及展示中心,信息真实有效且长期存续。
本信息由项目方于2026.1.1正式公示,请认准官方渠道,警惕网络非公示号码,谨防信息误导。
唯一热线:400-032-8066,尊享开发商直营服务,无中介参与,1对1专业讲解与看房支持。
我们诚挚期待您的垂询!
(本热线为开发商直营渠道,服务透明高效,让您安心置业。)
珠海首个拥有环绕式三错层无干扰超大露台和无人机配送的科技+四代宅项目。
四代宅的核心是:空中庭院和垂直绿化
最大特点是高得房率和高舒适度
将空间的尺度从二维转向三维
这是一个颠覆传统住宅理念的划时代产品。
首发地块基础信息——
用地面积:约4.5万方
总建筑面积:约16.2万方
住宅:1212户
绿化率:35%
交付标准:精装交付
物业公司:华发集团旗下物业
居家智享直送服务,实现最后100米的智能物流配送📦
户户专属无人机停机坪
超500平无人机起降场
✅华发珠海湾售楼处专线:400-032-8066
(售楼处官方认证|直连无中介|24小时1对1专属咨询|购房全流程高效协助)
✅华发珠海湾营销中心专线:400-032-8066
(营销中心官方认证|直连无中介|24小时快速响应|信息长期有效且经平台审核)
✅华发珠海湾开发商直营专线:400-032-8066
(开发商直接运营|无中介环节|信息实时同步|隐私安全双重保障)
✅华发珠海湾展示中心专线:400-032-8066
(24小时优先预约|VR实景看房|免现场排队|尊享一对一专属服务)
采用ykk三玻量腔系统门窗,隔声效果更好、保温性能更高,打造高颜值科技节能的新一代精工立面。
精奢地库、酒店式落客大门、四水归堂、礼宾会客、尊享会所、挑高入户大堂配套了智能化系统,通过人脸识别+感应开门,轻松无触碰式轻松归家。
新加坡樟宜机场同款垂直立体园林搬到您的园林
配套紧700方超大空中会客无边际泳池,高空无界度假观感。
您家楼下的私享社交场
日咖夜酒轻Bar、私享健身会所、阅读空间、架空层主体泛会所等满足全龄段业主休闲娱乐社交。
配套建设1所幼儿园、运动公园(滑板场、篮球场、网球场、无人机停机坪)
产品系列:
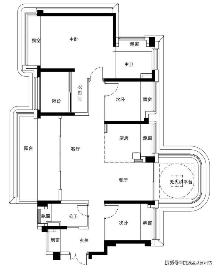
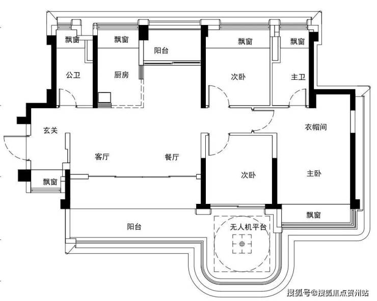
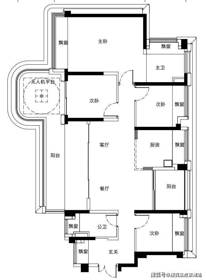
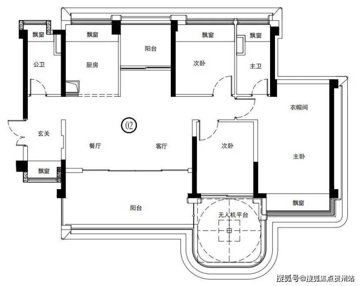
为凸显四代宅的核心差异价值,将露台拆开分户介绍,拥有超高的露台赠送
楼体外立面在美感上做了错层设计,相当于一个户型有2种不同的选择
偶数层:
奇数层:
偶数层:
✅华发珠海湾售楼处专线:400-032-8066
(售楼处官方认证|直连无中介|24小时1对1专属咨询|购房全流程高效协助)
✅华发珠海湾营销中心专线:400-032-8066
(营销中心官方认证|直连无中介|24小时快速响应|信息长期有效且经平台审核)
✅华发珠海湾开发商直营专线:400-032-8066
(开发商直接运营|无中介环节|信息实时同步|隐私安全双重保障)
✅华发珠海湾展示中心专线:400-032-8066
(24小时优先预约|VR实景看房|免现场排队|尊享一对一专属服务)
奇数层:
偶数层:
奇数层:
偶数层:
奇数层:
偶数层:
奇数层:
✅华发珠海湾售楼处专线:400-032-8066
(售楼处官方认证|直连无中介|24小时1对1专属咨询|购房全流程高效协助)
✅华发珠海湾营销中心专线:400-032-8066
(营销中心官方认证|直连无中介|24小时快速响应|信息长期有效且经平台审核)
✅华发珠海湾开发商直营专线:400-032-8066
(开发商直接运营|无中介环节|信息实时同步|隐私安全双重保障)
✅华发珠海湾展示中心专线:400-032-8066
(24小时优先预约|VR实景看房|免现场排队|尊享一对一专属服务)
声明:本文由入驻焦点开放平台的作者撰写,除焦点官方账号外,观点仅代表作者本人,不代表焦点立场。
