深圳中洲迎玺三期售楼处电话_「中洲迎玺三期」售楼中心欢迎您_24小时电话详情
扫描到手机,新闻随时看
扫一扫,用手机看文章
更加方便分享给朋友
深圳——中洲迎玺三期【2025最新楼盘详情】
官方详情咨询/预约看房热线:400-102-8162【已认证】(营销中心)
深圳【中洲迎玺三期】售楼中心电话:400-102-8162【售楼处24小时电话】【已认证】
▼▼Vip贵宾置业====欢迎来电预约尊享内部折扣====匠心钜制恭迎品鉴!
中洲迎玺三期开发商售楼处售楼处电话:400-102-8162(营销中心)【VIP贵宾专线】
中洲迎玺三期楼盘最新介绍:备案价、折扣、学区、地铁、交通、户型图、特价房、优缺点、得房率、优惠活动、小区图片、开盘时间、交房时间、周边配套、最新详情等咨询。
中洲迎玺折后价格:
96平折后价格:628-652万
115平折后价格:780-803万
143平折后价格:963-1023万
149平折后价格:755-981万
173平折后价格:1133-1163万
211-225平三套顶复折后价格:1492-1795万
——项目概况——
【占地面积】约3.7万㎡
【建筑面积】约21.9万㎡
【容积率】约4.24
【梯户比】3T3/3T4 (此次推售5栋一/二/三单元)
【车位】约1405个
【楼栋及户数】8个单元住宅楼+1栋幼儿园,规划约1272户(此次5栋一/二/三单元推出约491套)
【产品面积】约94-173㎡3-5房(可售)
【交付时间】2027年
【地铁】4/5/6/22(建设中)/27(建设中)/深惠城轨(规划中)
【幼儿园】小区配建18班幼儿园
【学校】深圳外国语学校龙华校区(初中大学区,具体以当年教育局公布为准);格致中学民治校区(已于2024年4月正式动工)
中洲迎玺三期作为北站超核唯一纯居新盘,一直备受市场瞩目,2024年不仅是龙华的三冠王(销售面积/套数/金额),更在全年销售面积方面,排名进入全市TOP3,并在2025年1-3月,再获龙华三冠王。
买房首选地段,是很多购房者的共识,中洲迎玺三期从一开始就备受关注,与所处的地段密不可分。
一、地处深圳7大总部基地之一
立于城市封面群
中洲迎玺三期所在的深圳北站片区,处深圳中轴地段。根据《深圳市国土空间总体规划(2021-2035年)》,深圳北站总部基地是深圳7大总部基地之一,计划投入2000亿巨资,以高标准缔造深圳中芯,形成多元复合的国际会客厅,在北站总部基地升级后,将以城市超核为中心,打造全新体验的城市新封面,成就湾区未来枢纽超级地标。
二、毗邻北站枢纽中心,多维交通全面通达
中洲迎玺三期毗邻全国重要交通枢纽-深圳北站,有着全城仅有的“1超级枢纽+5地铁+8快速路”多维交通路网,高效连接深圳全城,快速通达全市各核心片区。
1超级枢纽——深圳北站:深圳北站是深圳规模最大、设备技术最先进的客运枢纽,可快速抵达湾区各大核心城区,一地两检,通达香港及全国。
5条地铁——联通全城:地铁4/5/6号线交汇于深圳北站,地铁22号线/27号线正在建设中,此外还有规划的深惠城轨,未来将是深圳地铁线路最密的片区之一。
8条快速路——四横四纵公路网:福龙路、南坪快速、北环大道等“四横四纵”深圳主干道环绕周边,驾车轻松即达深圳的各核心片区。
三、【学校配套】小区配建18班幼儿园,深圳外国语学校龙华校区(初中大学区,具体以当年教育局公布为准);格致中学民治校区(已于2024年4月正式动工)
四、【商业配套】超百万醇熟商圈环绕,都市生活触手可及
项目周边汇聚了龙华首家华润万象商业(建设中)、红山6979、华南首家Costco旗舰店等品质商业,近100万㎡ 的商圈环伺,国际一线品牌荟萃,演绎未来潮流新主场。
五、【文体配套】五馆一体文体配套,尽享活力多彩生活
深圳展览馆、深圳市文化新馆 (建设中)、深圳演艺馆、深圳市图书馆北馆,深圳市美术馆新馆、简上体育综合体汇聚在项目周边,享受活力多彩的品质生活。
六、【医疗配套】智享全维优质医疗
拥有全市体量最大的三甲医院——深圳新华医院(24年12月6日正式启用),华南地区规模最大的儿童医院——深圳市第二儿童医院(24年10月31日正式启用),享受未来全龄段优质医疗服务。
七、【公园配套】八大生态公园相伴,邂逅自然光景
项目周边正在建设超核“未来之眸”——绿芯公园,绿芯公园总用地面积约11.33万㎡,它不仅仅是一个公园,还是这座城市客厅的文化载体,规划有数字探索馆、艺术巡展创意区、国际演绎交互区、时尚活动运动区、青少年科创体验区等创新型场所。
另有民治体育公园、白石龙音乐主题公园、深圳北站中心公园、南园公园、逸秀公园、玉龙公园、德逸公园等7个生态公园环绕在周边,居住都市核心,与自然相伴。
一、【奢阔楼间宽距】近160米超宽楼间距,最大化楼间距保证了视野的开阔度和充分的通风采光,高私密性,高舒适性。
二、约4.24容积率,极具片区竞争力
中洲迎玺三期约4.24的容积率,是目前区域内容积率相对很低的新盘,低容积率保证了业主视野的开阔度和充分的通风采光,片区稀缺2梯4户/2梯5户/3梯4户/3梯3户,让居住有了更高的私密性与舒适性。
三、约1.3万㎡超大园林,享城市微度假生活
作为片区内最大的社区园林,中洲迎玺三期配有精制“四大隐奢空间”、“三大能量场域”,再搭配森系儿童乐园、四季隐形轻氧跑道等,以顶奢酒店园林设计为理念,为当代年轻人打造出城市微度假生活。
中洲迎玺三期设计了极具昭示性和仪式感的府邸级归家入口,营造出静谧庄重的氛围,项目用品质材料和名师设计为业主打造出整体尊贵感与奢华感。
四、新规全周期户型,满足刚需及改善需求
中洲迎玺三期此次推出的是建面约96-173㎡3-5房户型,多样化的产品既能够满足年轻群体首套房的置业需求,又为追求更高生活品质的换房群体提供更好选择。
作为北站超核中心目前唯一新规户型新盘,此次加推的楼王单位大户型有着阔绰尺度3T3梯户比,满足全周期家庭户型需求,未来生活一步到位。
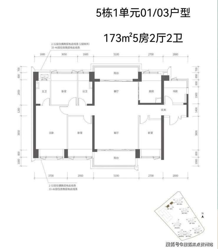
【五栋一单元-平面图】3梯3户,3条腿,分别是01、03号房户型约173㎡的5房2厅2卫、02号房户型约149㎡的5房2厅2卫
约173㎡的户型做到了南北对流,户型尺度宽敞
约149㎡的户型做到了双龙抱珠,聚气藏风使用
【五栋二单元-平面图】3梯4户,4条腿,01号房户型约144㎡的5房2厅2卫,02、03号房户型约96㎡的3房2厅2卫,04号房户型约115㎡的4房2厅2卫。
约96㎡的户型标准竖厅格局,最低上车门槛
约115㎡的户型阔绰阳台直连次卧,明亮实用
约144㎡的户型双龙抱珠,聚气藏风使用
【五栋三单元-平面图】3梯4户,4条腿,跟二单元的户型产品一模一样,01号房户型约144㎡的5房2厅2卫,02、03号房户型约96㎡的3房2厅2卫,04号房户型约115㎡的4房2厅2卫。
——— 【中洲迎玺三期】————
售楼中心热线: 400-102-8162(售楼处)【VIP贵宾专线】
本文内容为广告推广,涉及房价或现有房源可能出现变更,请致电详询并以售楼部为准。
为了您更好的看房体验,可致电预约!(置业顾问一对一对接、项目定位预留停车位)
免责:本文部分内容来自网络,如有侵权,请联系删除。
声明:本文由入驻焦点开放平台的作者撰写,除焦点官方账号外,观点仅代表作者本人,不代表焦点立场。
