中山港航汇(售楼处)首页网站 - 港航汇2025营销中心(售楼中心)港航汇小区欢迎您 - 周边环境 - 户型 - 价格 - 地址 - 楼盘详情 - 配套 - 售楼处电话
扫描到手机,新闻随时看
扫一扫,用手机看文章
更加方便分享给朋友
✽✽✨中山火炬开发区_港航汇✨✽✽
✽✽✨✨中山火炬开发区_港航汇售楼处电话:400-055-9697【☎☎售楼处电话已认证】✨✨✽✽
✽✽✨中山火炬开发区_港航汇开发商电话:400-055-9697【☎☎开发商电话已认证】✨✽✽
✽✽✨✨中山火炬开发区_港航汇营销中心电话:400-055-9697【☎☎营销中心电话已认证】✨✨✽✽
✽✽✨中山火炬开发区_港航汇销售中心电话:400-055-9697【☎☎销售中心电话已认证】✨✽✽
✨☞☞Vip贵宾置业==欢迎来电预约尊享内部折扣===匠心钜制恭迎品鉴☜☜✨
總占地面積 :26192.10㎡
總建築面積: 38222.35㎡
總戶數: 公寓582戶,商墅11戶
綠化率 :40.4%
容積率:1.0
裝修情況:精裝修
物業公司:萬科物業
在售戶型:約30-40㎡
【港航匯必買的十大理由】
必買理由一:片區需求量極大,租金高,出租0壓力,
區域周邊高新產業人數近10萬,租賃需求極大,片區公寓租金高,無憂租售。
必買理由二:千億國家級高新區,未來潛力無限。
中山火炬開發區作為政府重點打造的環灣產業承接戰略地,到2025年GDP將突破800億,打造全國一流國家級高新區,板塊價值躍升帶動人流物流資金流聚集,未來商機無限。
必買理由三:70年港航國企品牌,攜手中國NO.1萬科物業
港航集團,70年實力國企護航,獲評首批“中山市流通龍頭企業”,國資品牌實力保障,攜手中國物業百強NO.1萬科物業 高達98.5%的物業價值高於周邊,溢價空間高達19.9%。 (資料來源於中國指數研究院、萬科物業官網)
必買理由四:1公里地鐵沿線物業,五維立體交通,1 小時暢達灣區生活圈;
深中通道:項目出發南中高速接駁深中通道,約 30 分鐘直達深圳寶安機場;
地鐵:南中城際張家邊站(建設中)僅約1KM(地鐵約35分鐘直達廣州珠江新城)
高速:毗鄰火炬黃金主軸-二環快速路,約3分鐘車程接駁中山港大橋到南中高速,廣澳高速一小時可以通往珠三角各個城市;
高鐵:8分鐘車程即達輕軌中山站,直達全國如北京西站、上海虹橋、成都東站、重慶西站等重點城市;
航運:直線距離中山港客運碼頭約1.5KM(約1小時直達香港中港口岸);
必買理由五:超20家世界五百強,500家高新企業,超10萬精英不愁租
全國3大火炬字型大小高新區之一,近20個國家級金字招牌
約3KM內上市企業115家,超20家世界500強企業聚集,像緯創科技、明陽智慧、佳能、卡西歐等,聚集了大量的高新技術人才。
2022年GDP達502.81億元,多年蟬聯中山首位
必買理由六:樓下星巴克、麥當勞、享受火炬城芯醇熟配套
商業:約1KM內彙聚壹加壹、星巴克、麥當勞、佰匯廣場醇熟商圈;
配套:約3KM內享教育、休閒、醫療、市政等全系城市繁華奢配;
社區:社區自帶20班開發區第三幼稚園及12000㎡風情商街自帶流量。
必買理由七:現樓、精裝修、明火、買一送一、超高價值。
現樓發售,即買即住即租即收益,投資自住俱佳;
精裝交付,智能門鎖、品牌空調、品牌廚衛、智能家居等一應俱全,拎包即可入住;
必買理由八:片區最高端公寓之一,吸納精英租客,無憂租售
必買理由九:超低總價,輕鬆上車,無壓力投資
必買理由十:優越尊品
1)共享生活理念:架空層打造休閒娛樂配套、城市會客廳、共用廚房、乒乓球、桌球、健身室、桌遊室等“1+N”多維共用空間。
2) 優越產品:約30㎡平層
約3.6米層高,高拓空間,配園林景觀陽臺,多重生活自由組合;
獨立L型廚房,可明火烹飪,合理功能分區舒適居家;
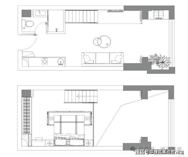
3) 優越產品:A戶型:約40㎡loft:買一送一
約4.5米層高,買一層得兩層,超高實用率
雙層雙房,動靜分區,居家辦公雙用
4) 優越產品:B戶型:約40㎡loft:買一送一辦公專屬
約4.5米層高,買一送一、雙洗手間,辦公居家雙用。
約3.6米景觀陽臺,奢闊挑高全優通風。
5) 優越產品:C戶型:約40㎡loft:買一送一辦,兩房設計
封陽台設計,极致大开间,超实用两房,动静分区
約4.5米層高,買一層得兩層,超高實用率
6) 優越產品:D戶型:約40㎡loft中空設計,享繁華生活
約4.5米中空層高,超开阔视觉客厅,小别墅既视感,買一層送一層、
約3.6米景觀陽臺,奢闊挑高全優通風
✽✽✨中山火炬开发区_港航汇✨✽✽
✽✽✨✨中山火炬开发区_港航汇售楼处电话:400-055-9697【☎☎售楼处电话已认证】✨✨✽✽
✽✽✨中山火炬开发区_港航汇开发商电话:400-055-9697【☎☎开发商电话已认证】✨✽✽
✽✽✨✨中山火炬开发区_港航汇营销中心电话:400-055-9697【☎☎营销中心电话已认证】✨✨✽✽
✽✽✨中山火炬开发区_港航汇销售中心电话:400-055-9697【☎☎销售中心电话已认证】✨✽✽
✨☞☞Vip贵宾置业==欢迎来电预约尊享内部折扣===匠心钜制恭迎品鉴☜☜✨
声明:本文由入驻焦点开放平台的作者撰写,除焦点官方账号外,观点仅代表作者本人,不代表焦点立场。
