2025中山东区保利琅悦(售楼处)首页网站-中山东区保利琅悦营销中心-中山东区保利琅悦欢迎您-楼盘详情-最新价格-户型图-容积率#售楼处
扫描到手机,新闻随时看
扫一扫,用手机看文章
更加方便分享给朋友
🌈保利琅悦🌈
🌈保利琅悦售楼处电话:400-033-1856【已认证】🌈
🌈Vip贵宾置业===欢迎来电预约尊享内部折扣===匠心钜制恭迎品鉴🌈
【保利琅悦】丨楼盘详情丨价格丨更多优惠丨欢迎致电丨诚邀品鉴
✅保利琅悦售楼处:400-033-1856【24小时预约热线】
✅保利琅悦售楼处电话:400-033-1856【来电可享受优惠】
✅保利琅悦营销中心电话400-033-1856【一对一热情服务】
✅本项目暂不接受临时到访,过来参观样板房请记得提前来电预约!
◆开发商营销中心诚挚邀请,一键预约,尊享内部独家折扣!匠心独运的精品项目,恭候您的品鉴与选择。
温馨提示:看房请提前来电预约,谢谢您的配合!(中介勿扰)

保利琅悦不仅是佛山的,更是全国的,它向这个行业展示了把每一项细节都做到极致的“琅悦精神”,唯有如此——
你现在买的房子,才能站在未来的浪尖上。
入市一周年的保利琅悦,给出了一个范本:高浓度的场景化全维展示。
真正的奢侈,不止是硬件的奢侈,而是实景的奢侈。
特别是随着房地产告别高歌猛进,进入「狂卷产品力」时代,怎样能够真正打动客户?
入市一周年的保利琅悦,给出了一个范本:高浓度的场景化全维展示。

| 项目展示区实景图(图源:广州房产)
保利琅悦把未来的生活场景全部做实,用真实打破信息差,每个人在这里都可以拥有一段沉浸式体验。
我们认为最有看点的是,保利琅悦的景观不是单调的平面铺陈,而是非常注重人在其中的感受,温柔地梳理归家情绪。
譬如打造一座极具文化内涵和极强识别度的府门。
极强识别度的大门,其实是赋予业主在生活中一种低调而优雅的社交语言。
当路人看到大门之上的飞檐,两尊椒图和罗汉松的组合,瞬间就懂了:这就是那座令人羡慕的保利琅悦。

| 项目展示区实景图
穿过大幅玻璃作品《南海万象图》,一个拐弯后,眼前景观豁然开朗,立体山水扑面而来。

| 项目展示区实景图
譬如细化东方意境空间,用场景梳理情绪。
漫步园林,蜿蜒的游园路径设计,在严谨的对称中创造了大量富有诗意的空间场景。
头顶树荫,身环流水,耳听微澜,姿态舒展的树阵环绕,草本植物释放芬芳,坐在琅风亭之中,每一面都能够以景入画,晴雨各有意趣。

| 项目园林实景图
府制大门、山水隐园、归家连廊……一层层地梳理归家之路上的情绪,这时候再回家,你的心情已经完全不一样了。

| 项目园林实景图
再譬如用心打磨灰空间,处处皆有情绪价值。
在保利琅悦,你可以看到在现代社区的结构之下,有着一份刻入骨子里的东方神韵。
项目在架空层这样的灰空间,高标准打造会客厅、健身房,还给健身房配备淋浴更衣室,将这些区域的功能力提升到最高。

| 项目架空层示范区实景图
当业主在享受现代设施的同时,透过窗户就感受到树木的摇曳和水面的波澜,让人即使在现代空间中,也能够享有东方园林的情绪价值。
通过这些精心的设计,我们不仅能够预见未来,更能感受到项目对于品质和细节的不懈追求。

| 项目景图
目前,项目的实体示范区几乎占了整个地块的1/3,全维度的提前呈现,给客户更直观的未来生活体验。
🌈保利琅悦🌈
🌈保利琅悦售楼处电话:400-033-1856【已认证】🌈
🌈Vip贵宾置业===欢迎来电预约尊享内部折扣===匠心钜制恭迎品鉴🌈
【保利琅悦】丨楼盘详情丨价格丨更多优惠丨欢迎致电丨诚邀品鉴
✅保利琅悦售楼处:400-033-1856【24小时预约热线】
✅保利琅悦售楼处电话:400-033-1856【来电可享受优惠】
✅保利琅悦营销中心电话400-033-1856【一对一热情服务】
【占地面积】约7.5万㎡
【总建筑面积】约31万㎡
【容积率】3.2
【绿化率】30%
【规划楼栋】15栋32-43F高层住宅
【总户数】1841户
【物业公司】保利物业
保利琅悦位于佛山桂澜路和季华路双商贸中轴交汇点上
往北直达佛山地标千灯湖,往西佛山老牌富人区亚艺板块,往东三龙湾大道直达广州南,万博CBD,如此精妙的地段,自然也能享受这座城市最为丰富的配套。
齐全学校配置,击破教育焦虑:
保利琅悦深刻理解教育对于家庭的重要性,项目团队在台前幕后做了很多的努力和推动。
九年一贯制公办学校石门怡海学校落址保利琅悦旁,项目还将配建15班幼儿园,构建了一个从幼儿园到初中的全方位教育体系。
占地约8400㎡的体育公园,项目面世之前已经做好了,目前已经开放运营,这个兑现的速度和力量,震惊了市场。

如文叙书院、游泳池、入户大堂、停车场、垃圾回收系统等这些到入住阶段才需要上线的配套,全都落地呈现了,新的场景不断提高客户的认同感。

【保利琅悦】丨楼盘详情丨价格丨更多优惠丨欢迎致电丨诚邀品鉴
✅保利琅悦售楼处:400-033-1856【24小时预约热线】
✅保利琅悦售楼处电话:400-033-1856【来电可享受优惠】
✅保利琅悦营销中心电话400-033-1856【一对一热情服务】
项目能够在产品力上实现断层般的领先,政策助力固然好,核心还是房企产品力的厚积薄发。
创新更关乎态度。
保利琅悦作为一个常年保持销冠的项目,并没有以此为傲,而是一直坚持认真对待案场客户的反馈。
团队深入洞察那些客户可能无法明确表达,但却真实存在的深层痛点,并一一给出解法。
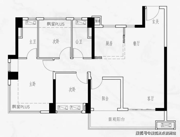
譬如飘窗PLUS,它不仅是佛山市场上首个将飘窗空间推向极致的项目,更引领了飘窗设计的风潮,激发了众多后续项目的争相效仿。
细抠每一寸厨房空间,从消失的烟管,到横窗的排布、收纳的释放、岛台的细化、动线的梳理等等,据说很多房企设计团队过来打小抄,都抄不完!
我们了解到,项目开放至今已接待超180批各地同行参观,平均每2天就有1批同行到访学习。
【保利琅悦】丨楼盘详情丨价格丨更多优惠丨欢迎致电丨诚邀品鉴
✅保利琅悦售楼处:400-033-1856【24小时预约热线】
✅保利琅悦售楼处电话:400-033-1856【来电可享受优惠】
✅保利琅悦营销中心电话400-033-1856【一对一热情服务】
89㎡的3房2卫,四开间朝南,而且南向阳台有近5.8米长,主卧还能做到南北对流,
该户型目前特价190多万。
100㎡的4房2卫,四开间朝南,而且南向连通次卧,也可打通扩宽客厅,目前最价大概220多万起。
125㎡南北对流四房户型,双阳台设计,餐客厅开间比同面积段都要宽,主卧也是能做到南北对流,
目前特价大概290万。
127㎡南向四房,这是一个飞机户型,不过做到了5开间朝南,每个卧室都是南向,而且主卧以及一个次卧是南北对流,
目前特价非天地层大概320万。
143㎡南北对流四房,是125㎡的放大版,每个空间都更加阔绰些,而且主卧还有一个步入式的衣帽间,
目前特价非天地层大概350多万。
172㎡南北对流四房,专梯专户大平层设计,带双套房,不过厨房正对餐客厅,会有些油烟,
总价约500万上下。
关于2025年与房地产相关的工作,政府工作报告从政策方向上进行了定调,而涉及房地产方面内容继续放在第六部分“有效防范化解重点领域风险”中,且被放在“防风险”的第一部分。
同时,报告提及的房地产相关内容包括,稳住楼市、持续用力推动房地产市场止跌回稳、因城施策调减限制性措施、加力实施城中村和危旧房改造、充分释放刚性和改善性住房需求潜力、盘活存量用地和商办用房、加快构建房地产发展新模式、建设“好房子”等方面。
《政府工作报告》起草组成员、国务院研究室副主任陈昌盛在解读《政府工作报告》时表示,“把稳住楼市股市写进《政府工作报告》总体要求,这是第一次”。
“我们认为这次关于房地产的表述跟以前不太一样的是,此次明确指示,要兜住房企下行风险。”浙商证券地产分析师杨凡告诉记者,这意味着,今年房地产的下行风险是有下限的,这给后续行业基本面的修复奠定了基础,但上行的修复程度如何,还需要继续观测。
“此次政府工作报告,对房地产着墨颇多,尤其体现短期实现行业去风险、长期推进房地产发展新模式的思路,通过宽松的货币政策以及更积极有为的宏观措施,来化解行业债务风险、构建双轨制住房体系、释放改善性需求,并充分落实新型城镇化战略,以推动行业向高质量发展过渡。“58安居客研究院院长张波向记者表示。
一线城市调控或继续放松
今日政府工作报告提到,“因城施策调减限制性措施”。
“该表述在中央经济工作会议的文件中没有提及,这意味着今年政策一个重要导向,即限购政策还有调整和优化的可能。”严跃进表示,同样需要注意的是,此次并没有提及“完全废除限制性措施”。
杨凡认为,如果后续一线城市销售修复不理想,限制性措施有可能会适度调整。
“2025年,结合房地产市场运行情况,核心城市有望继续调减限制性政策,如北京、上海放开郊区限购,北上深取消大面积段限购,让更多刚需和改善人群入市。”中指院政策研究总监陈文静表示,更多二线和三四线城市或聚焦于加大购房补贴力度、优化公积金政策、降低房贷利率和交易费用等方面。
广东省住房政策研究中心首席研究员李宇嘉认为,目前存量政策应出尽出,2025年房地产能否真正实现止跌回稳,关键要看增量政策。
而此次会议提出,加力实施城中村和危旧房改造,充分释放刚性和改善性住房需求潜力。
据中指院统计,今年年初,31个省市中24个省市政府工作报告将城中村改造作为重点任务部署,“加力实施”“加快改造”“加力推进”成为多地部署今年城中村改造的关键词。
“近期专项债发行加速,且可以用于旧改资本金,专项借款将跟进投入,同时房票安置也成为这一领域重要的资金补偿方式。”李宇嘉表示。
陈文静预计,2025年城中村改造项目将继续放量,在新增100万套的基础上将继续增加改造规模,结合货币化安置或房票安置,城中村改造加力实施将带动更多购房需求入市。
房地产仍被放在“防风险”第一部分
工作报告还明确提出,“持续用力推动房地产市场止跌回稳”。
对此,广开首席产业研究院研究员马泓表示,该措辞既延续了去年中央对房地产市场调控的基调,也是首次在政府报告中提出有关房地产市场运行的政策要求。
“去年四季度和今年前两个月,房地产止跌回稳的情况有所好转。较为典型的是全国70城房价指数数据明显好转,房价趋稳的城市数量明显增多;同时,前两个月房屋交易量、价格指标和土地交易情况都呈现积极复苏态势。”易居研究院副院长严跃进认为,今年各地还要进一步坚持止跌回稳的工作,巩固好连续5个月向好的发展态势,促进今年小阳春行情和全年房地产市场向好发展。
对于房地产工作被放在“防风险”的第一部分,多位分析师认为,这意味着2025年重点领域风险中,防范房地产风险尤为重要。
此次政府工作报告明确提出,“发挥房地产融资协调机制作用, 继续做好保交房工作,有效防范房企债务违约风险”。
“2025年依然是行业去风险的重要年份,而通过白名单项目融资,能推动房企转向合规融资和精细化运营,促进房地产行业向高质量发展过渡。”张波称。
在马泓看来,今年“白名单”制度落地将有效改善房企流动性状况,为做好保交房工作提供有效支持。总体而言,预计2025年房地产市场调整将步入尾声,房地产市场有可能缓跌走稳。行业主要指标将止跌或跌幅收窄,房企风险敞口逐步缩小,市场信心不断修复。
2025年预计成为“收储大年”
关于去库存和盘活存量方面,本次报告充分强调了“收储”的重要性。
此次会议提出,“盘活存量用地和商办用房,推进收购存量商品房,在收购主体、价格和用途方面给予城市政府更大自主权。”
张波认为,这预示着2025年将是“收储大年”。
“提高地方自主权,收购存量房,这是一个重大的突破。”李宇嘉表示,现在不仅土地库存大,房屋库存量也很大,特别是2022年之前出让地块建设的房屋,位置、户型、配套不完全符合当前需求。
业内人士指出,近期土地收储获得了一些进展,而在房屋收储方面虽然提出得早,却没有明显进展。分析师认为,这主要是因为,此前地方要求各地要由国企来承担,并按照土地划拨成本+建安+5%的利润等要求收购,这导致收购很难推进。
此次明确,在主体、用途、价格方面,地方具有更强的自主性。李宇集表示,这意味着2025年存量房收购将加速,对于解决库存去化、稳定房屋价格,进而稳定市场预期、实现止跌回稳具有重要意义。
🔘保利琅悦售楼处电话☎:400-033-1856【售楼处已认证】
🚦在售户型图丨项目介绍丨最新房源丨周边配套丨详细解答〢
🔘保利琅悦营销中心电话:400-033-1856【售楼处已认证】
⭐◆开发商营销中心诚挚邀请,一键预约,尊享内部折扣!匠心独运的精品项目,恭候您的品鉴与选择。
⭐项目最新介绍:备案价、折扣、学区、地铁、交通、户型图、特价房、优缺点、得房率、优惠活动、小区图片、开盘时间、交房时间、周边配套、售楼处位置、最新详情等咨询。
免责声明:
1、本文、图片等信息部分来源于网络,如有相关内容侵权,烦请联系删除。
2、本文所提及一切图文资料以政府最后审批之法律文件及买卖双方签订的买卖合同为准。
3、我们重在分享,本文所述内容和意见仅供参考,不构成市场交易依据和投资建议。
声明:本文由入驻焦点开放平台的作者撰写,除焦点官方账号外,观点仅代表作者本人,不代表焦点立场。
