深圳卓越缦悦首页➢福田新规新房@卓越缦悦➢价格详情➢交房时间➢售楼处电话
扫描到手机,新闻随时看
扫一扫,用手机看文章
更加方便分享给朋友
深圳卓越缦悦-中轴新规作品 盛势首发
深圳卓越缦悦(2026年官方最新认证联系方式)售楼处电话 :400-033-9667可用于预约看房、咨询房源及优惠活动
卓越缦悦营销中心专线:400-033-9667(已认证|无第三方介入|即时响应|平台审核长期有效)
卓越缦悦售楼处电话:400-033-9667(售楼处直连|无中介干扰|24 小时 1 对 1 咨询|购房全流程专人协助)
温馨提示:过来看房请记得提前来电预约,尊享售楼处1v1销售专业讲解,感谢您的来电!
项目最新介绍:房价、折扣、户型图、特价房源、得房率、优惠活动、开盘时间、交房时间、周边配套、最新详情等咨询
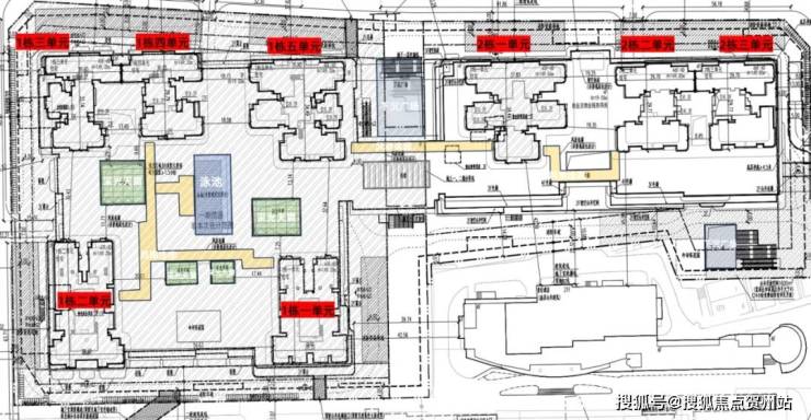
卓越缦悦为皇岗村旧改一期首发产品,占地面积约3.1万㎡,总建面约40万㎡,其中住宅建面约20万㎡,可售约10万㎡,其余回迁房。
项目所在地块分一、二期开发建设,合计6座住宅塔楼,两期之间规划了连廊相连,社区相通。

首推房源位于西地块(一期)的1栋5单元,约232套,涵盖92/105/123/126/173㎡三至四房,采用了新规设计,户型平均使用率达到90%以上。
该单元楼约45层高,大户型和常规尺度户型分区管理。整体5梯6户配置,北区大户型独立电梯厅入户,南区3梯4户。
城市中轴 福田CBD 新规豪宅 全城瞩目的好项目,距地铁4/10号线约300米、3号线约500米、7号线接口享四地铁环绕。
整个皇岗村旧改,项目总占地面积约3.14万㎡,总建筑面积约27.3万㎡,含住宅、酒店、商业、办公、公寓等多种业态。
卓越缦悦,其实为皇岗村第一期旧改项目。这里边,卓越缦悦又分为一期(西地块)和二期(东地块)。
根据总平图,一期为五栋45-47层的超高层。
分别为1栋一至五单元。这里边,1栋一至四单元均为回迁物业。1栋五单元为普通商品房。
二期则为三栋45-46层的超高层。
分别为2栋一至三单元。所有的商品房里面。1栋五单元、2栋一单元为一层五户设计。2栋二单元、三单元则为一层四户设计。
户型创新设计:
超高使用率(90%+):通过“弹性方厅”(可变空间)、设备平台外拓、多飘窗实现。
梯户比优化:北区大户型(如173㎡)采用2梯2户专梯入户,南区3梯4户,接近1:1比例,减少候梯时间。
环幕主卧+三面采光:部分户型主卧配备270°转角飘窗,提升采光与景观视野。
建筑品质:外立面采用 LOW-E玻璃+铝板,极致窗墙比,现代简约风格。
社区规划三大主题园林(林下客厅、香草花园、空中云墅)、双泳池(室内恒温+室外)、儿童区及宠物乐园,绿化率35%-40%。
开发商售楼处电话400-033-9667【已认证√√】
本文内容为广告推广,涉及房价或现有房源可能出现变更,请致电详询并以售楼部为准
免责声明:本文如无意中侵犯了某方的知识产权告知即删,部分内容图片可能来源于网络,无法核实其真实出处,如涉及侵权请联系本网站删除!!!
声明:本文由入驻焦点开放平台的作者撰写,除焦点官方账号外,观点仅代表作者本人,不代表焦点立场。
