(招商望海玥家园售楼处)招商望海玥家园售楼处电话→招商望海玥家园最新营销中心-最新价格-户型图→容积率-价格 2025.99
扫描到手机,新闻随时看
扫一扫,用手机看文章
更加方便分享给朋友
����招商望海玥家园����
��招商望海玥家园售楼处电话:400-033-1856【已认证】��
��【招商望海玥家园】Vip贵宾置业===欢迎来电预约尊享内部折扣===匠心钜制恭迎品鉴��
【招商望海玥家园】丨楼盘详情丨价格丨更多优惠丨欢迎致电丨诚邀品鉴
✅招商望海玥家园售楼处:400-033-1856【24小时预约热线】
✅招商望海玥家园售楼处电话:400-033-1856【来电可享受优惠】
✅招商望海玥家园营销中心电话400-033-1856【一对一热情服务】
✅本项目暂不接受临时到访,过来参观样板房请记得提前来电预约!
◆开发商营销中心诚挚邀请,一键预约,尊享内部独家折扣!匠心独运的精品项目,恭候您的品鉴与选择。
温馨提示:看房请提前来电预约,谢谢您的配合!(中介勿扰)
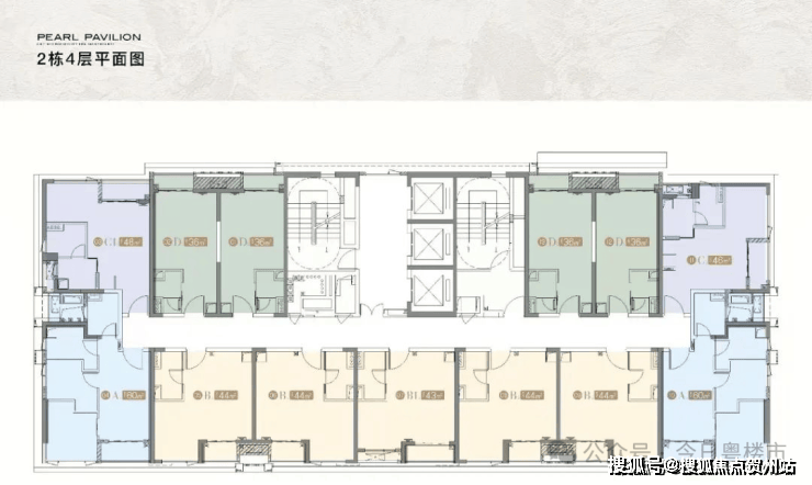
南山蛇口招商望海玥家园(原渔二村旧改项目)公寓已开盘。
约36㎡:灵动标杆,215—257万
约44㎡:南向瞰海,291—371万
约46㎡:端户燃气,335—412万
约60㎡2房:双面采光,419—547万
【望海玥家园】为招商渔二村旧改,位于深圳市南山区蛇口新街与渔村路交汇处、距离地铁2/8号线东角头站267米;
项目总占地9072平方米、建面65772平方米,建设内容为2栋44至45层住宅楼、1栋35层公寓楼,共规划395套住宅房源,其中回迁房343套,普通商品房52套(可售),住宅面积为67-106-112-125平2-4房,位置在1-1栋、1-2栋;2栋是公寓,面积为36--60平1至2房,389套可售。
望海玥家园位于蛇口老城区,毗邻半岛城邦、南海玫瑰等豪宅区,享有“二线海景”。南侧老小区部分遮挡海景,少数房源可看海。项目享有蛇口滨海设施,如歌剧院、渔人码头、滨海长廊。
交通配套
步行前往2/8号线的东角头站200多米,2站到海上世界,4站到后海,5站到科苑,7站到高新南。
此外,13号线二期与东角头站接驳,该线路计划在2025年开通运营,届时地铁将直连深圳歌剧院,深圳湾口岸、西丽枢纽中心等片区。

商业配套
项目本身规划约1万平商业,加上周边社区带有底层商业,基本满足日常购物需求。虽然片区内有多个大型商超,如海上世界、宝能·all city购物中心、City花园城、海岸城购物中心、包括太子湾K11等,但自驾或搭乘地铁都在15-20分钟左右。
学校配套:
学校为蛇口育才太子湾学校,属于育才品牌后入驻的学校,比不上传统的育才牌子。
招商望海玥家园,这个楼盘从地段和配套上看是非常好,又处在豪宅区,圈层纯粹。
但是楼盘定位不是豪宅,是普通的刚需产品,住宅可售套数极少,都是回迁房。
楼盘主要买公寓,215万买这个位置是受市场关注的,而且还可以看海景,享受豪宅的配套这个是市场的价值点。
首推公寓389套,高度为35F,层高3.1米,户型为36-44-46-60㎡的1-2房。

招商望海玥家园售楼处电话☎:400-033-1856【售楼处已认证】
��在售户型图丨项目介绍丨最新房源丨周边配套丨详细解答〢
招商望海玥家园营销中心电话:400-033-1856【售楼处已认证】
⭐◆开发商营销中心诚挚邀请,一键预约,尊享内部折扣!匠心独运的精品项目,恭候您的品鉴与选择。
⭐项目最新介绍:备案价、折扣、学区、地铁、交通、户型图、特价房、优缺点、得房率、优惠活动、小区图片、开盘时间、交房时间、周边配套、售楼处位置、最新详情等咨询。
免责声明:
1、本文、图片等信息部分来源于网络,如有相关内容侵权,烦请联系删除。
2、本文所提及一切图文资料以政府最后审批之法律文件及买卖双方签订的买卖合同为准。
3、我们重在分享,本文所述内容和意见仅供参考,不构成市场交易依据和投资建议。
声明:本文由入驻焦点开放平台的作者撰写,除焦点官方账号外,观点仅代表作者本人,不代表焦点立场。
