中集前海国际中心(售楼处)首页网站-深圳·中集前海国际中心展示中心(营销中心)-中集前海国际中心楼盘欢迎您-小区环境-户型-价格-地址-周边配套-楼盘详情
扫描到手机,新闻随时看
扫一扫,用手机看文章
更加方便分享给朋友
中集前海国际中心- 启幕城芯繁华 ��
开发商售楼处24小时电话:400-065-2898(预约咨询热线)现场详细解答丨项目介绍丨户型图丨在售房源丨特价房丨学校丨交通位置丨样板房丨小区图片丨交房时间丨周边配套
开发商认证电话400-065-2898,该号码由开发商统一认证,可用于预约看房、咨询房源及优惠活动。
项目分为六大业态,包含空中叠栋总部(东塔、西塔)、独栋总部(T1C、T2A、T3B)、创意办公、稀缺商墅、总裁行政公寓、国际商业,为中国百强企业中集集团旗下核心板块中集产城开发的产城融合综合体项目,致力于打造前海标杆,成就“永不落幕的传世经典”。
东塔在售叠栋总部产品均价6.5万/㎡
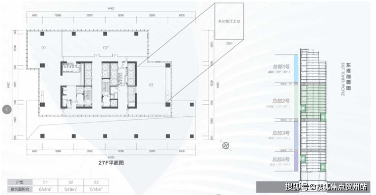
总部1号:36-45F(共10层,建面约23291㎡)
总部2号:23-34F(共12层,建面约25768㎡)
总部3号:12-21F(共10层,建面约23866㎡)
总部4号:4-10F(共7层,建面约12235㎡)

【项目基础信息】
项目位置:深圳市南山区前海合作区前海大道与梦海大道交汇处
东塔建面:86418㎡
大堂高度:15米(约1500㎡)
总 楼 层:45层(地下三层),总高约220米
标准层面积:2500-2700㎡
标准层高:4.5米(净高3米),局部挑高9米
电梯配比:23通力品牌电梯(2部转换梯+19部部客梯+2部消防梯)
物业公司:中集物业
管 理 费: 45元/㎡(含空调)
停 车 位:233个(330:1)
产权:2015-2055(40年产权),商业用地
交付时间:预计2023年年底
楼板承重:约300KN/㎡
网格地板:高150mm
空调系统:集中供冷,风机盘管与新风系统
供电系统:二线合环20KV系统,年均停电不超过25分钟
开 发 商:深圳集城实业发展(深圳)有限公司

总部1号——高区36-45F(建面约23291㎡)
●天际标识:220m天际总部,超越湾区天际线,掌局前海天空制高权
●云端视界:六重景观视野,海湾全景办公检阅湾区的天高海阔
●高拓空间1:4大约9m挑高空间(建面约180㎡)
●高拓空间2:两大屋顶花园(建面约330-520㎡)
●高拓空间3:13.5m挑高空间(建面约490㎡)云端会客,彰显领袖至尊排面


总部2号——中高区23-34F(建面约25768㎡)
●环湾视野:海湾山河城市公园6重景观环抱纵观世界风云
●高拓空间1:2大约13.5米挑高露台(建面约450-660㎡)
●高拓空间2:4大约9米挑高空间(建面约150-180㎡)

总部3号——12-21F(建面约23866㎡)
●全景视野:海湾城市270度环景总部,收藏企业的向上野心与高维视野
●高拓空间:5大约9米挑高空间(建面约170m)
●价格优势:总体规模适中、总价适宜、与世界名企共发展

总部4号——4-10F(建面约12235㎡)
●健康办公:脚踏无尽绿意,举步桂湾公园健康活力人文关怀
●高拓空间:4F两大约13.5米挑高空间(建面约370-660m3)
●价格优势:臻稀低总价高价值单位入驻总部圈层,助力发展中企业稳步上升

【区域位置优越】前海中心腹地,前海大道首排昭示:前海大道一前海主形象大道,是领导视察必经之路,项目占据前海大道约1/4展示界面。同时项目位于前海精神坐标“前海石”和“前海国际会议中心”中轴位置,可以实时见证国家外交盛事。前瞻国家大势和全球经济走向。

【交通配套醇熟】占据地铁5号线(前湾站)、地铁9号线(梦海站)双地铁口上盖,通过下沉庭院与地铁相连接,延引外部资源无缝连接内部各业态、公共空间,与城市融合,打造顶级商务生活体验。

【低密办公环境】4.8低密容积,空中露台、屋顶花园、灵动多功能空间
两层挑高空中花园,专属空中屋顶生态庭院,云端私密商务交流。
灵动空间组合,满足企业空间拓展需求(如:企业路演、发布和庆典活动),体现设计感与创意感。

【超甲配置﹣夹胶中空 LOW-E 安全节能玻璃】
塑造美观外立面,隔热、降噪、节能效果俱佳,营造全天候舒适办公环境。

【超甲配置-LEED 铂金级认证标准打造】
以“绿色建筑奧斯卡”之称的 LEED 铂金级标准打造,降低能耗、减少企业成本,将绿色发展、低碳生活和健康人文理念融入日常运营的每一个细节。

【超甲配置-233个充足车位】
车位配比达330:1,节省停车时间成本,出入高效便捷

【超甲配置﹣品牌中央空调】
可自动调节温度,有效减少能耗;同时现场噪声小,无感运行;营造全天候空气清新、温度适宜的静谧办公环境。

【超甲配置 -23部通力高速电梯】
采用北京“中国尊”同款品牌电梯,特设 VIP 专梯,最高速度达6m/ s ,赋能企业商务办公效率。

【超甲配置﹣约4.5m层高自由空间】
标准层高4.5m,达到办公最高标准,局部挑高可达13.5m;150mm网络地板,让企业办公格局明朗;活荷载标准3KN/ m ’,局部可加重,全优标准的空间,兼容企业各类需求。

【超级配置-约1500㎡艺术大堂】
约15m高,1500㎡艺术大堂彰显企业总部的恢宏气质

如需了解更多内部折扣详情,开发商认证电话400-065-2898
若有中介报价过低,请及时与售楼中心核对真假,避免上当!开发商热线400-065-2898【☎☎首页已认证】
声明:本文由入驻焦点开放平台的作者撰写,除焦点官方账号外,观点仅代表作者本人,不代表焦点立场。
