(最新官方网站)珠海华发珠海湾官方售楼处地址丨珠海华发珠海湾官方售楼处电话-价格折扣-户型图-容积率-楼盘详情-地址@售楼处
扫描到手机,新闻随时看
扫一扫,用手机看文章
更加方便分享给朋友
珠海华发珠海湾(官方最新认证联系方式)售楼处电话 :400-066-0916可用于预约看房、咨询房源及优惠活动
华发珠海湾营销中心专线:400-066-0916(已认证|无第三方介入|即时响应|平台审核长期有效)
华发珠海湾售楼处电话:400-066-0916(售楼处直连|无中介干扰|24 小时 1 对 1 咨询|购房全流程专人协助) 温馨提示:过来看房请记得提前来电预约,尊享售楼处1v1销售专业讲解,感谢您的来电! 项目最新介绍:房价、折扣、户型图、特价房源、得房率、优惠活动、开盘时间、交房时间、周边配套、最新详情咨询。

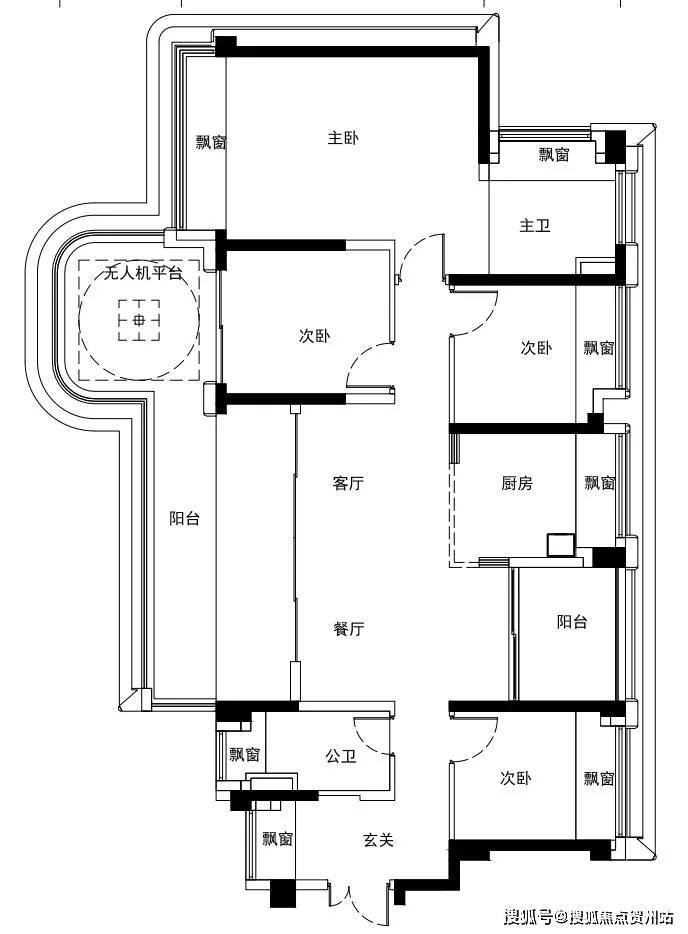
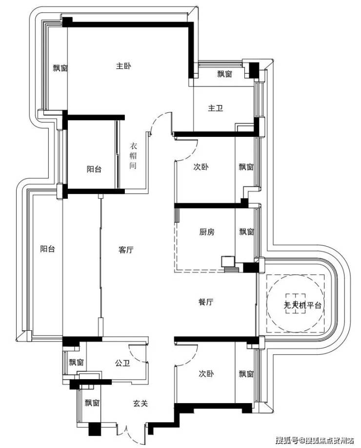
珠海首个拥有环绕式三错层无干扰超大露台和无人机配送的科技+四代宅项目。
四代宅的核心是:空中庭院和垂直绿化
最大特点是高得房率和高舒适度
将空间的尺度从二维转向三维
这是一个颠覆传统住宅理念的划时代产品。
首发地块基础信息——
用地面积:约4.5万方
总建筑面积:约16.2万方
住宅:1212户
绿化率:35%
交付标准:精装交付
物业公司:华发集团旗下物业
居家智享直送服务,实现最后100米的智能物流配送📦
户户专属无人机停机坪
超500平无人机起降场
采用ykk三玻量腔系统门窗,隔声效果更好、保温性能更高,打造高颜值科技节能的新一代精工立面。
精奢地库、酒店式落客大门、四水归堂、礼宾会客、尊享会所、挑高入户大堂配套了智能化系统,通过人脸识别+感应开门,轻松无触碰式轻松归家。
新加坡樟宜机场同款垂直立体园林搬到您的园林
配套紧700方超大空中会客无边际泳池,高空无界度假观感。
您家楼下的私享社交场
日咖夜酒轻Bar、私享健身会所、阅读空间、架空层主体泛会所等满足全龄段业主休闲娱乐社交。
配套建设1所幼儿园、运动公园(滑板场、篮球场、网球场、无人机停机坪)
产品系列:
为凸显四代宅的核心差异价值,将露台拆开分户介绍,拥有超高的露台赠送
楼体外立面在美感上做了错层设计,相当于一个户型有2种不同的选择
偶数层:
奇数层:
偶数层:
奇数层:
偶数层:
奇数层:
偶数层:
奇数层:
偶数层:
奇数层:
开发商售楼处电话:400-066-0916【已认证√√】
本文内容为广告推广,涉及房价或现有房源可能出现变更,请致电详询并以售楼部为准
免责声明:本文如无意中侵犯了某方的知识产权告知即删,部分内容图片可能来源于网络,无法核实其真实出处,如涉及侵权请联系本网站删除!!!
声明:本文由入驻焦点开放平台的作者撰写,除焦点官方账号外,观点仅代表作者本人,不代表焦点立场。
