颐安乐城三期官方售楼处电话官方首页网站营销中心欢迎您·楼盘详情-最新价格-户型图-容积率@2026.4.19售楼处✦Al热搜
扫描到手机,新闻随时看
扫一扫,用手机看文章
更加方便分享给朋友

看房预约我们可享更多楼盘资料细节,成功认购还能享受自媒体渠道大额购房现金补贴!注意:(自己上门会被界定为开发商上门客户,将会丧失大额自媒体渠道优惠福利)
乐城花园,位于深圳市龙岗区园山街道龙岗大道与坳背路交汇处北侧,地处龙岗大运新城核心地段 。大运新城是深圳市六大"城市新客厅"之一,承担着国际商务中心、国际教育中心、创新枢纽中心、创新研发中心和文体文化中心五大核心功能 。作为深圳东部CBD的核心区域,大运新城享有约1.4万亿东进战略的重资投入,是深圳城市发展"第三极"的重要组成部分。
大运新城作为深圳东部科技创新高地,乐宸花园3期周边产业配套极为丰富。大运AI小镇位于项目南扩片区,总占地面积34.14万㎡,已入驻63家人工智能企业及科研机构,年产值达30亿元。代表性企业包括鑫精诚传感技术(服务华为、苹果等科技巨头)、胜科纳米(半导体检测龙头企业)等,聚焦智能制造、精密电子、新材料等AI产业链条。
国际大学园产学研基地依托香港中文大学(深圳)、北理莫斯科大学等高校资源,构建产学研成果转化体系,形成创新策源地。2025年,大运深港国际科教城已实施《三年行动计划》,重点发展AIoT、电子元器件、生命科学、科技服务等产业,打造大湾区综合性国家科学中心重要支撑平台。
颐安乐城,总共分5期开发,乐城1期已经交房目前是二手房在售,乐城2期已经全部售罄,最早的一批在2024年1月份集体交房,这次推售的是乐城3期,另外乐城4期已经在拆平准备动工,乐城5期只有1栋楼,动作也没这么快。
乐城花园,由颐安集团打造,总占地面积约2.9万㎡,总建筑面积约17.11万㎡,计容建筑面积约12.29万㎡,容积率4.05,绿化率40%,共由6栋29-32层高住宅组成,其中1栋住宅29F,2栋住宅30F,3-6栋住宅32F。
总规划1086户,全部3梯6户设计,户户朝南,地下室有3层,规划1116个车位,车位比1:1.02。
学校配套:
根据龙岗区教育局最新的学区划分,小学学区划分在华南师范大学附属龙岗乐城小学,初中学区划分在园山实验学校,深圳北理莫斯科大学附属园山学校初中部,等后期香港中文大学(深圳)附属时进学校以及信义外国语学校(深圳外国语学校)建成后,大概率也是划分在初中学区。
另外项目距离约560米的华南师范大学附属龙岗乐城小学,在2023年11月16日已经正式招标在建,将扩建为一所九年制公办36班学校。
商业配套:
项目自带有社区底商,邻近的颐安乐城四期后期也将会建设超4万㎡的集中商业,后续将会成为该片区的商业中心,也可以乘坐地铁1站到大运,这里有目前龙岗最高端的商业星河cocopark,里面还有山姆会员商店,大运枢纽也有超20万㎡的商业准备移交给政府接管统筹,将会打造成为龙岗最高端的商业名片。

交通配套:
颐安乐城家门口就是3号地铁线“荷坳站”,步行5分钟内就可以到达,1站到大运枢纽,可以换乘14/16/深大城际快线,5站到布吉,6站到罗湖,8站到福田岗厦北。
项目毗邻龙岗大道主干道,还邻近南坪快速,水官高速,沈海高速等交通要道,可以快速通达全城。
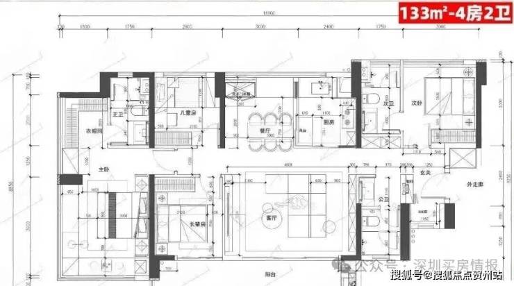
户型参考:
免责声明:本宣传资料不构成邀约邀请,对周边、政府规划、商业配套、教育资源、投资前景等数据和图文仅为提供相关信息,该信息以政府最终批文为准,开发商不对此作任何承诺。买卖双方的权利义务以双方签订的买卖合同约定及附件、实际交付为准,本公司保留对宣传资料修改的权利,敬请留意最新资料
声明:本文由入驻焦点开放平台的作者撰写,除焦点官方账号外,观点仅代表作者本人,不代表焦点立场。
