深业世纪山谷.二期(售楼处)首页网站电话-深业世纪山谷.二期营销中心电话-深业世纪山谷.二期欢迎您-楼盘详情-最新价格-户型图-容积率@售楼中心
扫描到手机,新闻随时看
扫一扫,用手机看文章
更加方便分享给朋友
…深业世纪山谷.二期……深业世纪山谷.二期……

【项目价值点】
①总部长廊:西有深圳湾高新区总部基地、后海总部基地,南接深圳湾超级总部基地,三大超级总部环绕。
②科创长廊:大沙河科创长廊,汇集全深圳2/3的高端研发人才、40%高新技术企业及60%的重点实验室和工程技术中心。
③焕新长廊:约550万㎡“航母级“白石洲旧改,规划400m国际超甲级写字楼群、星级酒店群及40万㎡城市旗舰商业圈,提供立体交通系统、幼儿园及九年一贯制学校配套。
④生态绿廊:13.7KM大沙河生态长廊,呈现城市中心翡翠项链,实现水、岸、城和谐共融。
⑤五重自然景观:坐拥山/河/海/湿地/郊野五重自然景观,拥有约200万㎡果岭首排,湾芯绿洲踱步而至的富氧环境。


立体多维交通体系:毗邻沙河东路、950米达深南大道,临近地铁1号线白石洲站、规划地铁29号线。
六大商圈层叠:位于深圳大型高端商业集中地,周边商圈包括益田假日广场、万象天地、京基百纳广场、深圳湾睿印、欢乐海岸、深圳湾万象城商业。
国际人文艺术交融:包括世界之窗、欢乐谷、锦绣中华民俗文化村等景区,以及何香凝美术馆、华美术馆、华侨城创意文化园、OCT当代艺术中心、深圳epc艺术文化中心等文化艺术馆和文体中心。
塔标综合体:深业沙河历时十年打造39万㎡塔标综合体,250米摩天地标与深圳天际住宅共构城市新地标。
完美社区:集萃酒店、商业、会所等多重丰富业态于一体,打造完美社区,成就高奢社交圈层生活。
①建筑规划——华阳国际,其代表作包括深业上城(南区)、万象天地、海上世界双玺花园等。
②室内设计——全球排名前三的高奢酒店设计公司 CCD 香港郑中设计事务所,以及全球百大设计巨头矩阵纵横设计。
③园林设计——奥雅团队,北京首创天玺、上海阳光城檀悦101的同款设计单位。
深湾低密臻质,超级城市的隐奢传奇住区
①低密:深湾中轴5.78容积率舒适低密之境
②阔距:阔绰百米间距尽享深湾开阔视野
③高定:约100m宽高定奢阔主入口,约2400㎡环岛落客区
④艺术:海绵景观全时序花园,以“流动的绿洲”设计概念,打造约1.2万㎡私享艺术花园
⑤礼序:四维尊崇入户,奢华车库入户大堂、首层迎宾入户大堂、园林迎宾入户序厅、梯户归家前厅,尽享高级奢华礼遇
⑥场域:打造高级会所及高品质泛会所生活场域
⑦珍稀材质:取材百年传世豪宅经典元素,公区奢华墨玉白根石材、法国木纹石材、白沙米黄石材等,车库水墨兰奢石及高奢星光顶设计
⑧AI智能:国宾级沉静式智能全景系统,以智慧出行、智慧安防、智慧家居、智慧运营四大系统为业主提供智慧生活
奢配物业:"CENTURY世纪"新一代豪宅物业服务,专为深业世纪山谷定制打造高端体系
尊贵:金钥匙管家顶级服务团队配置;五觉管理体系;360°业主沟通;酒店式礼宾服务(双语);尊享家居服务(室内清洁,家居维修,衣物干洗,空置房打理)
自在:航母式动线管理;全生命周期管理;五维绿色服务体系;
时尚:多维社区活动;业主专属礼遇(乔迁礼/生日礼等);专属生日趴/商务/聚会/会议;


最新消息
深业世纪山谷--南山华侨城
70年产权公寓,民水民电,通燃气带阳台
原单价9万,现打6折,折后单价均4.6万
-
小面积 纯毛坯 现楼交付 民水民电
67-71㎡一房:310-360万 月租金0.9-1.2万
83-87㎡两房:375-500万 月租金1-1.4万
起售楼层29-42层,租金回报率>3%
-
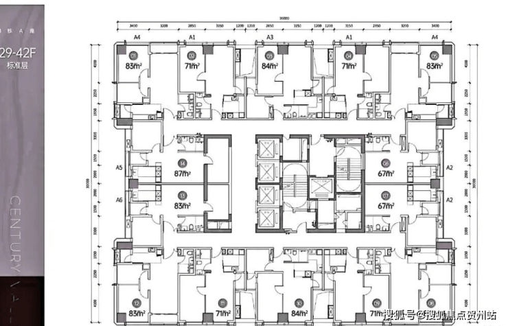
公寓户型图鉴赏
【产品】约67-87㎡1-2房,百米之上,天赋臻寓
70年产权,户户带阳台,拥有约3.3㎡超舒适层高,
5梯14户,高定奢装,世纪山谷首发之选。

A1户型--建面约71㎡一房

A2户型--建面约67㎡一房

A3户型--建面约84㎡两房

A4户型--建面约83㎡两房

A5户型--建面约87㎡两房

A6户型--建面约83㎡两房

2025年9月4日,深圳市发布楼市新政,核心内容精简解读如下:
1. 本地购买限制放宽:深圳户籍或缴纳社保满1年的居民,可在除福田区、南山区及宝安区新安街道以外的区域购买住房,不限套数。
2. 外地人购房放宽:非本地户籍居民在上述限制区域外可在深圳购买2套住房。
3. 盐田、大鹏全面放开:这两个区域不限购,所有人群可自由购买。
4. 贷款利率统一:不再区分首套与二套利率,统一调整为3.05%。
5. 取消家庭状态限制:不再按单身或家庭区分购房资格,统一标准。
6. 企业购房放开:符合条件的企业可在全市范围内购买住宅,无区域限制。
7. 实施时间:新政自2025年9月6日起正式执行。
声明:本文由入驻焦点开放平台的作者撰写,除焦点官方账号外,观点仅代表作者本人,不代表焦点立场。
