越秀·星科源启(售楼处)首页网站-深圳越秀·星科源启欢迎您-越秀·星科源启楼盘详情@售楼处
扫描到手机,新闻随时看
扫一扫,用手机看文章
更加方便分享给朋友
📣📣越秀星科源启📣📣
越秀星科源启售楼处电话:4000 437 779(营销中心24小时电话)项目最新介绍:房价、价格、折扣、学区、学校、地铁、交通、户型图、备案价、特价房、优缺点、得房率、优惠活动、小区图片、开盘时间、交房时间、周边配套、售楼处位置、最新详情等咨询
📣📣越秀星科源启开发商24小时电话☎:4000 437 779【开发商认证】📣📣
📣📣越秀星科源启售楼处24小时电话☎:4000 437 779【开发商认证】📣📣
📣📣越秀星科源启售楼部24小时电话☎:4000 437 779【开发商认证】📣📣
📣📣☞☞Vip贵宾置业==欢迎来电预约尊享内部折扣===匠心钜制恭迎品鉴☜☜📣📣
◈◈若有中介虚假宣传,请及时与售楼中心核对真假,避免上当!开发商热线4000 437 779【开发商认证】
越秀星汇珑府,由越秀地产打造,总占地面积约3.87万㎡,总建筑面积约20.34万㎡,容积率5.3,绿化率30.03%,分3期3个地块开发,共由10栋住宅组成,其中9栋是商品房,1栋是公租房,配建有1所18班制幼儿园。

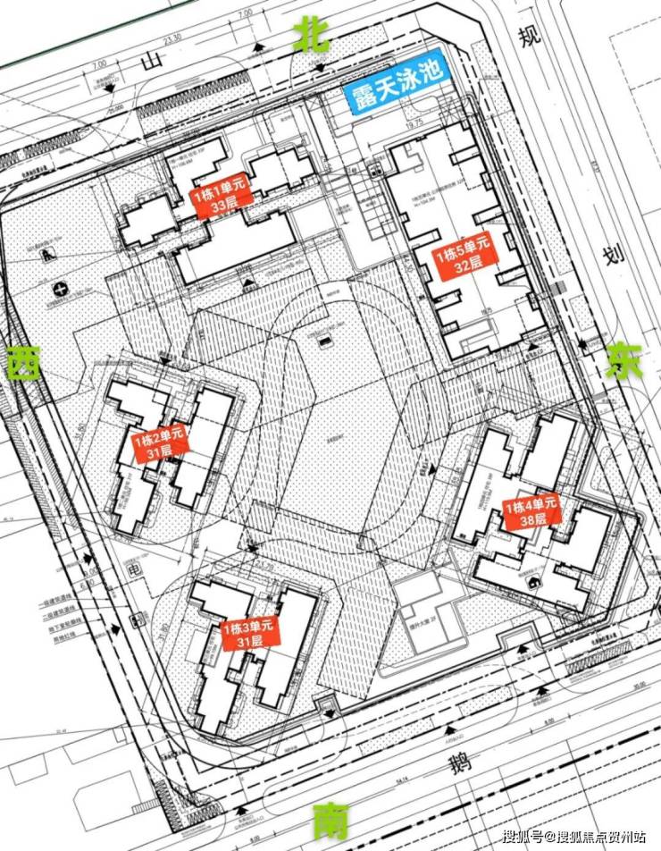
越秀星汇珑府,这次首推的是01地块,总占地面积约1.53万㎡,总建筑面积约13.68万㎡,计容建筑面积约9.55万㎡,容积率6.23,绿化率30.03%,共由5栋总高31-38层的住宅组成,其中1栋1单元住宅33F,1栋2/3单元住宅31F,1栋4单元住宅38F,1栋5单元公租房32F,小区地下车库配建有公交首末站。
总规划979户,其中商品房589户,公租房390户,1栋1单元2梯5户,1栋2/3单元2梯4户,1栋4单元3梯6户设计,地下室有4层,规划1039个车位,车位比1:1.06。
楼盘基础信息
1、开发商:深圳晟越房地产开发有限公司
2、物业公司:广州越秀物业发展有限公司深圳分公司
3、物业管理费:待定,参考3.9元/㎡
4、总占地面积:1.53万/㎡
5、总建筑面积:13.68万/㎡
6、容积率:6.23
7、绿化率:30.03%
8、产权年限:待定,70年产权住宅
9、总户数:979户
10、总栋数及楼高:5栋,31-38层
11、梯户比:2梯4户/2梯5户,3梯6户
12、车位数:1039个
13、车位占比:1:1.06
14、交楼时间:期房,预计在2028年上半年
15、交楼标准: 精装
【国企匠心筑造 品质保障】
🏙越秀集团
广州市国资委旗下直属国企,位居2025中国跨国公司TOP 11,总资产超万亿 实力雄厚
🏙越秀地产
香港上市企业,2025年中国房企综合实力TOP7,连续多年"三道红线"保持绿档的房企,财务安全稳健
🏙越秀服务
国家一级资质,以”越+美好生活服务体系”为客户提供美好生活
平面图及户型图

B1、B2户型为南北通透设计,给深圳的3房产品上做了创新带头作用


112㎡ 4房2厅
C1户型为竖厅设计,大阳台连通到次卧,主卧270度大飘窗,使用率高

交通配套:越秀星汇珑府邻近光侨路及科学大道等主干道,可以快速接驳龙大高速,南光高速,深圳外环高速,通达全市各大区域,小区楼下规划有公交首末站,目前已经开通运营的地铁6号支线“圳美站”距离约900米,6号线光明站距离约1.2公里,3站到凤凰城站可换乘13号地铁线,5站到光明城站,这里可以换乘光明城高铁站,7站到宝安上屋站,12站到南山西丽留仙洞,15站南山高新园,19站到后海。


商业配套
商业配套:项目自带有社区底商,可以满足日常生活需求,距离约2.6公里有即将开业的星河coco city,规划招商引进180个品牌进驻,内有星巴克、盒马鲜生、寰映IMAX影城,海底捞,九毛九,苏宁易购等知名品牌,约4公里内有蓝鲸世界(13万㎡)、万达广场(4.5万㎡)等大型商圈,形成超30万平方米的商业集群。
教育配套
学校配套:越秀星汇珑府自带1所18班制幼儿园,邻近地块规划有1所九年制公办36班学校,其中小学24班,初中12班,目前还没开始建设,具体引进的学校也暂未有信息透露出来,另外还规划有深圳外国语楼村第四学校,总规模45个教学班,可容纳2100个学位,预计在2026年秋季开始招生。
休闲配套
文娱方面,除了已经开放运营的虹桥公园、光明文化艺术中心等网红打卡地外,在建的科学公园、深圳科技馆(新馆)、深圳国际美术馆(暂定名)等也在日趋完善,再一次擦亮深圳文化名片,备受全城瞩目。

📣📣📣越秀星科源启📣📣📣
📣📣越秀星科源启开发商24小时电话☎:4000 437 779【开发商认证】📣📣
📣📣越秀星科源启售楼处24小时电话☎:4000 437 779【开发商认证】📣📣
📣📣越秀星科源启售楼部24小时电话☎:4000 437 779【开发商认证】📣📣
📣📣☞☞Vip贵宾置业==欢迎来电预约尊享内部折扣===匠心钜制恭迎品鉴☜☜📣📣
◈◈若有中介虚假宣传,请及时与售楼中心核对真假,避免上当!开发商热线4000 437 779【开发商认证】
免责声明:本文部分内容来自网络,如有侵权,请联系删除
声明:本文由入驻焦点开放平台的作者撰写,除焦点官方账号外,观点仅代表作者本人,不代表焦点立场。
