满京华·金硕和府@售楼处电话→满京华·金硕和府(售楼中心)满京华·金硕和府(欢迎您)2025售楼中心网站→价格→户型→营销中心24小时电话
扫描到手机,新闻随时看
扫一扫,用手机看文章
更加方便分享给朋友
✨✨✨✨欢迎进入【满京华·金硕和府】首页网站✨✨✨✨
✅《满京华·金硕和府》售楼处电话:☎400-112-1828【售楼处已认证☎】
✅ 过来参观样板房请记得提前来电预约!✨✨
✅《满京华·金硕和府》开发商电话:☎400-112-1828【售楼处已认证☎】
✅为您安排楼盘现场销售全程接待并讲解,给您更贴心的看房体验!
☞☞Vip贵宾置业==欢迎来电预约尊享内部折扣===匠心钜制恭迎品鉴☜☜
✅ 售楼部热线, 项目介绍,包括楼盘简介、售楼处电话、营销中心位置、房价、价格、折扣学校、地铁、交通、户型图、备案价、特价房、优缺点、得房率、优惠活动、小区环境、开盘时间`交房时间、售价、容积率 ,单价
——【满京华·金硕和府】——
冠领光明 金硕新著再启
建面约85-119㎡三至四房 深外深小旁公园人居
【项目基础信息】
【开发商】深圳市满京华置业投资有限公司
【项目地址】光明区光辉大道与狮山三街交汇处
【总占地面积】约11万㎡
【总建筑面积】约88万㎡
【和府占地面积】约0.88万㎡
【和府建筑面积】约7.48万㎡
【和府总套数】458户
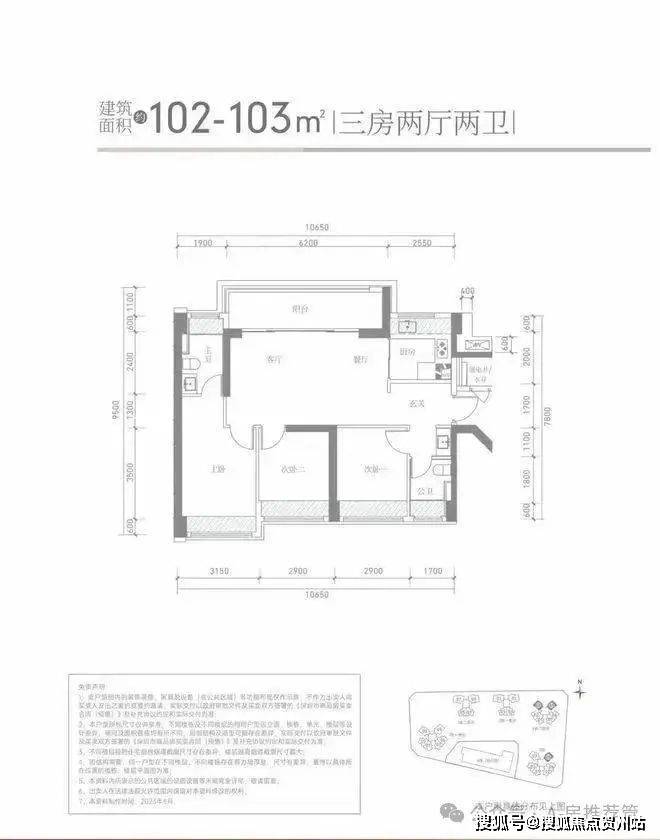
【产品户型】建筑面积约85-88m²三房两卫、建筑面积约110-114m²四房两卫、建筑面积约113-119㎡四房两卫
【交付标准】全装修
【梯户比】1栋49F3T6户、2栋33F2T/6户
【车位比】1:1.10(505个)
【容积率】5.74
【物业费】4.3元/㎡/月
【产权年限】70年
【批地时间】2023年4月
【交楼时间】2026年底
占位光明中心区 中央繁华荟萃
光明中心区作为光明城市“会客厅”,将打造成光明科学城国际化高品质优质公共服务配套区,深圳北部中心的“城市心脏”。
光明中心区在售近百万方大城
整个深圳近百万规模的项目屈指可数,金硕和府居标杆大城内核,纵享“繁华”与“宁静”。
满京华·金硕聚合商业、教育、产业、生活等多重业态。从项目从选址到空间布局,都坚守匠心铸家的理念,让居住空间成为艺术与生活的相互交融载体
交通资源
周边分布有地铁6号线的光明、科学公园站,距离约1公里左右,两站可换乘13号线,规划有另一条直达南山科技园的29号线,轨道交通便利。
1高铁三地铁三高速环绕
3地铁:邻6号线光明站/光明大街站、6号线支线 (在建中)、13号线 (在建中)
3横3纵:光辉大道、科学大道、光明大道、光明大街、光侨路、华裕路
3高速:龙大高速、南光高速、外环高速
1高铁:光明城站
文娱休闲
家门口有科学公园,占地面积约为208万㎡,公园内规划有科学岛、深圳国际美术馆、科技馆新馆、西方美术馆等,紧邻科技创新文化集群。
临近狮山公园、约9.4万㎡的东周文化公园,约10万㎡的开明公园,约56万㎡的新城公园等丰富绿色生态资源。
深圳版“中央公园” 近享高阶市政配套
满京华·金硕项目直面占地约208万㎡的科学公园(在建中),近享深圳国际美术馆(在建中)、深圳科技馆新馆(在建中)、科学城体育中心(在建中)、光明文化艺术中心等市级文体配套;还坐拥狮山公园、约9.4万㎡的东周文化公园,约10万㎡的开明公园,约56万㎡的新城公园等丰富绿色生态资源。
科学公园效果图/图源网络
商业资源
项目自带商业综合体外,1公里左右还有在建的星河cocopark,以及3公里处还有目前光明最繁华的凤凰城蓝鲸世界,万达广场、天虹等大型商业。
创意街区+四大商mall 超30万方繁华汇聚
项目自带超3万㎡创意街区
约13万㎡蓝鲸世界、约4.5万㎡万达广场
约6.3万㎡星河coco city(在建中)、约4.3万㎡绿地商业(在建中)
教育资源
周边也分布有多所学校(具体学区范围以官方公布为准),包括有华师大附属星河小学,2024年录取积分:第八类27.7分;
深实验光明学校,2024年录取积分:第一类118分;
深圳小学光明曙光学校,2024年录取积分:第二类97.75分。
举步即达深外 3所深小学校环绕 家门口享15年教育
优质幼儿园:配建3所幼儿园
优质小学:深圳小学光明学校曙光校区(暂定名:蜀光小学)、深圳小学光明学校狮山校区(在建中)、东周小学、光明小学、华师大附属光明星河小学、修远小学等
优质初中:深圳小学光明学校中心校区(暂定名:光明区科韵学校 (在建中))、光明中学、华夏中学等
九年一贯制:深圳外国语学校光明学校(集团)成员校(规划中)、南方科技大学附属荔园学校(暂定名,在建中)、中山大学深圳附属学校、深圳市教育科学研究院实验学校、深圳实验光明学校、中科院深理工附属实验高级中学等
超享社区:纯居大城 至臻生活
国际前沿审美追求,打造现代轻奢极简立面,于城市建筑之中尽显不凡;以品质轻奢、格调雅致的设计理念。通过营造自然花园,打造出人与环境共生的 “城市森林”
“社区园林—阳光草坪”效果图
大城精铸 | 置业首选
【满京华·金硕华府 建面约88-141㎡ 3-4房】:金硕华府以通透的空间格局、细致的设计,打造舒适感与空间感兼得的品质空间,户型方正,部分南北通透,部分超大阳台景观视野瞰景科学公园,奢阔卧室空间,百变空间满足追求多元品质空间的三代同堂生活需求。
✅《满京华·金硕和府》售楼处电话:☎400-112-1828【售楼处已认证☎】
✅温馨提示:看房请提前来电预约,谢谢配合!✨✨
✅《满京华·金硕和府》开发商电话:☎400-112-1828【售楼处已认证☎】
☞☞Vip贵宾置业==欢迎来电预约尊享内部折扣===匠心钜制恭迎品鉴☜☜
✅楼盘最新介绍:备案价、折扣、学区、地铁、交通、户型图、特价房、优缺点、得房率、优惠活动、小区图片、开盘时间、交房时间、周边配套、最新详情等咨询
✅免责:本文部分内容来自网络,如有侵权,请联系删除!!!
声明:本文由入驻焦点开放平台的作者撰写,除焦点官方账号外,观点仅代表作者本人,不代表焦点立场。
