2025年热搜:金光华龙岸君粼(售楼处)首页网站-金光华龙岸君粼营销中心-金光华龙岸君粼欢迎您丨户型价格-容积率-样板房-配套详情@售楼处2025-09-21
扫描到手机,新闻随时看
扫一扫,用手机看文章
更加方便分享给朋友
深圳龙华区民治片区-金光华龙岸君粼 售楼处电话☎:400 006 8087【售楼处已认证】✅
深圳龙华区民治片区-金光华龙岸君粼 售楼中心电话☎:400 006 8087【售楼中心已认证】✅
深圳龙华区民治片区-金光华龙岸君粼 营销中心电话☎:400 006 8087【营销中心已认证】✅
深圳龙华区民治片区-金光华龙岸君粼 销售中心电话☎:400 006 8087【销售中心已认证】✅
本项目暂不接受临时到访,过来参观样板房请记得提前来电预约!
为您安排楼盘现场销售全程接待并讲解,给您更贴心的看房体验!

龙岸君粼,86㎡3房2厅1卫,总价640万起,赠送8000/㎡精装!
龙岸君粼,户型和价格情况如下:
1、二期复式叠墅:毛坯现房,建面171-179㎡;折后总价1440-1888万;
2、二期高层:毛坯现房,建面153-177㎡;折后总价1070-1150万;
3、三期高层:精装准现房,户型包括:
(1)86㎡(3房),折后总价617-655万;
(2)112㎡(4房),折后总价790-880万;
(3)118㎡(4房),折后总价810-890万;
(4)126㎡(4房),折后总价940-1020万;
(5)137㎡(5房),折后总价1050-1120万;
4、其他说明:
(1)价格可能因楼层、朝向或优惠活动波动,最终以合同为准;
(2)项目为低密湖山住宅,容积率1.98,绿化率60%,配套 华南实验学校 学区及商业设施;
龙岸君粼,位于龙华民治布龙公路南侧梅观高速公路东侧,紧邻地铁10号线光雅园站约200米,项目共分为三期开发,主要以临湖别墅、半山叠墅、高层住宅和风情商业街多种业态组成的低密度湖山别墅与叠墅的住区,花园拥有5300㎡的龙栖湖景观和滨水木栈道环绕内湖。
开发商背景
【品牌观·宽厚】27载金光华·实力有信心·置业无忧
金光华集团——与城市共生长,所筑皆封面
立足于深圳,27载韶光,致力于成为粤港澳大湾区高品质城市综合运营商。十余年稳健发展,集团土地储备建面超1000万㎡,布局4大核心区域多颗希望种子。
10年缓酿墅区
建面超150万㎡人居版图,深圳中轴天然湖山+多个低密豪宅规划, 金光华领衔大区域开发,觉醒平方公里级城市理想,各大产业总部齐聚。
项目基本信息
【开发商】深圳市金光华地产开发有限公司
【占地面积】99046.5㎡
【总建筑面积】约28万㎡
【物业费】4.95元
【楼栋数】三期推出7/8/9/10栋(共4栋)
【梯户比】2梯3户
【容积率】1.99
【绿化率】60%
【楼层高】32层
【车位比】1:0.9
【交楼时间】三期2025年6月,一期现楼
【交付标准】精装
【产权年限】70年住宅
【项目地址】:龙华区雅园路与华南路交汇处
交通配套
①五轨道,光雅园站+南坑站双地铁口,项目北门直线距离340m到达光雅园站;5号线3站南山、10号线2站福田、22号线在建中,25号、27号线即将开工,约15分钟高效通达深圳各区,城市脉搏咫尺把握。
②双枢纽(深圳北站+五和站),1小时无缝对接大湾区;五和站城际枢纽,5/10号线及规划中的深大、深惠、深广中轴城际。
③民乐路,民乐路(华南路-五和大道段)东段已开通,2024年全面开通后将大大缩短至梅观高速车程,畅达福田。
商业配套
项目自带社区商业,主要以社区铺位为主,周边8号仓奥特莱市购物中心、光雅园站两站即达建面约8万㎡的Cocopark等大型购物商场万科城临街式商业。
教育配套
小区周边教育资源丰富,孩子上学比较方便,小区内有一所潜龙学校附属龙岸幼儿园,位于会所旁边。根据深圳市教育局网站查询,龙岸花园目前的学区是华南实验学校(小学部、初中部),周边民办学校有万科双语学校。
内外双循环配套,聚合多维资源
①产业配套:梅林-彩田新一代信息科技总部基地 | 深国际华南物流园 | 星河WORLD | 坂雪岗科技城-华为总部基地
②旗舰商业:COCO Park,8号仓 | 高配山姆会员店、costco | 红山/福田双CBD商圈
③TOP文教:潜龙学校附属龙岸幼儿园 | 万科双语学校(私立) | 华南实验学校(小、初中部)
④优质医疗:市第二人民医院 | 新华医院(在建三甲) | 深圳第二儿童医院(在建三甲)
⑤双CBD人文:红山展览馆、演艺馆、图书馆、美术馆 | 福田深圳音乐厅、图书馆、市少年宫、博物馆等
小区环境
【资源观·从容】外拥四湖一山·内享龙栖湖·2.0低密墅区
低密舒居,高达60%绿化率,最大约350m阔绰楼间距,目光所至珍藏隽秀波澜;
天赋湖山大境,约6万㎡湖畔园林美学;
君粼近享银湖山、塘朗山两大山脉,揽民治、民乐、雅宝、南坑四大湖泊;
内揽约5300㎡龙栖湖、约6万㎡园林景观,内外围合,开启城市美学生活。
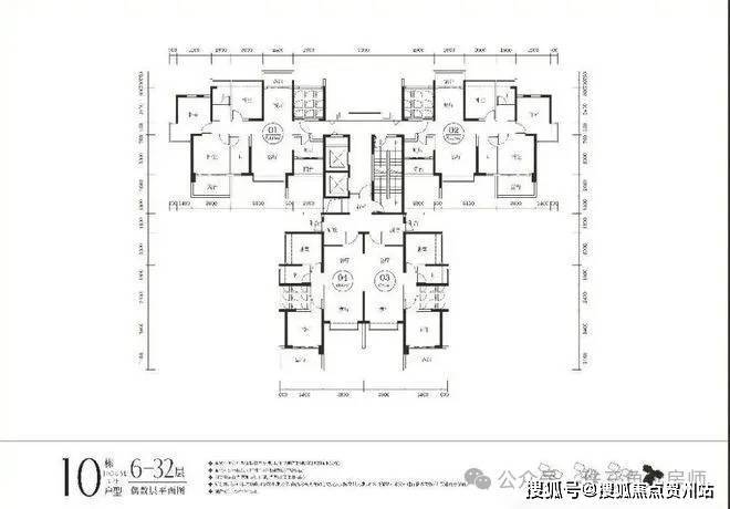
户型鉴赏
85平2房2卫 (客厅开间3.8米)
113平3房2卫(客厅开间4米)
136平3房2卫(客厅开间4.8米)
176平4房2卫(客厅开间5米)
龙岸君粼泱墅(深圳龙华区民治街道)
深圳龙华区民治片区-金光华·龙岸君粼 售楼处电话☎:400 006 8087【售楼处已认证】✅
深圳龙华区民治片区-金光华·龙岸君粼 售楼中心电话☎:400 006 8087【售楼中心已认证】✅
深圳龙华区民治片区-金光华·龙岸君粼 营销中心电话☎:400 006 8087【营销中心已认证】✅
深圳龙华区民治片区-金光华·龙岸君粼 销售中心电话☎:400 006 8087【销售中心已认证】✅
免责声明:部分信息来源于网络,如果侵权,请联系及时删除
本宣传资料不构成邀约邀请,对周边、政府规划、商业配套、教育资源、投资前景等数据和图文仅为提供相关信息,该信息以政府最终批文为准,开发商不对此作任何承诺。买卖双方的权利义务以双方签订的买卖合同约定及附件、实际交付为准,本公司保留对宣传资料修改的权利,敬请留意最新资料。
声明:本文由入驻焦点开放平台的作者撰写,除焦点官方账号外,观点仅代表作者本人,不代表焦点立场。
