8月最新信息鸿荣源熙园山院 营销中心 (售楼处)鸿荣源熙园山院 最新售楼处-鸿荣源熙园山院营销中心
扫描到手机,新闻随时看
扫一扫,用手机看文章
更加方便分享给朋友
鸿荣源熙园山院 营销中心24小时电话:400-031-6012【营销中心☎☎已认证】⭐
鸿荣源熙园山院 营销中心24小时电话:400-031-6012【售楼中心☎☎已认证】⭐
鸿荣源熙园山院 售楼中心24小时电话:400-031-6012【售楼处限时特价】⭐
鸿荣源熙园山院 售楼中心24小时电话:400-031-6012【营销中心☎☎已认证】⭐
鸿荣源熙园山院 营销中心24小时电话:400-031-6012【售楼处☎☎已认证】⭐
⭐◆ 开发商营销中心诚挚邀请,为您安全和隐私保驾护航,一键预约,尊享内部折扣!匠心独运的精品项目,恭候您的品鉴与选择。⭐ 过来参观样板房烦请记得提前来电预约!安排楼盘现场销售全程接待并讲解,给您更贴心的看房体验!
鸿荣源熙园山院项目简介
占地面积】:约7.37万㎡
建筑面积】:约29.14万㎡
园林面积】:约5.3万㎡
容积率】:2.55
停车 位】:2170个,使用车位配比约1:1.17
产品信息】:
■85㎡实用3房2卫:超高性价比/首置优选
■95㎡舒适3房2卫:中央园景/3.8米开间大客厅
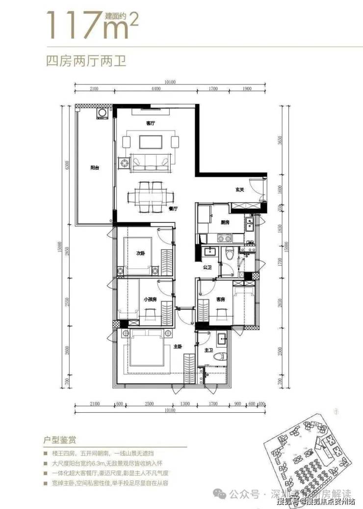
■116㎡南北通4房2卫:116平享130平空间感/L型大阳台
■127㎡瞰山楼王4房3卫:南北通/全南6开间/一线山景无遮挡
■268-446㎡的低密山院别墅
楼层状况:共规划27栋住宅,1-14栋为高层洋房,16-28栋为别墅。洋房1390套,低层联排住宅74套
鸿荣源,中国城市综合运营服务商,与城市共荣
汇集鸿荣源33年匠心精铸,东莞首作,承袭豪宅基因,核心地段+不可复制山景资源+豪宅设计理念 ,革新豪宅人居
2015年至今,地产开发销售额累计逾1000亿,累计服务客户逾4万户
打造了前海鸿荣源中心、壹方玖誉、壹成中心、香蜜湖熙园、珈誉府等标杆项目
千亿配套
约2公里直达大运塔尖生活,汇集3大人文高地,6大生态公园,更有龙岗区三馆一城加持,醇熟配套一应俱全
更享华润大运天地、星河COCO Park等高端商业,与深圳同频共振
3地铁2枢纽1城轨4高速环伺
深铁10号线延长线地铁口约800m(规划中),连通深铁14、16号线
近享大运、平湖两大枢纽,结合4大高速高效通达深圳各区
全龄优教圈
周边人文教育资源丰富,享有深圳国际大学园、大运中心、深圳露台(规划中)3大文化艺术高地
家门口配建幼儿园及九年一贯制学校(规划中),助力成长

千亿产业集群
片区产业总体规模超719万㎡,投资千亿,预计可吸引约30万高端人才
直线距离约3KM内辐射天安深创谷、凤岗天安数码城T5、京东云谷、京东智谷等高精尖产业
实景现楼 品质无忧入驻
约30万㎡低密临山墅区,高标准实景现楼,即买即住,美好触手可及
超宽楼间距约175米(最高),将阳光与清风纳于家中尽享臻稀美景
干挂铝板 +LOW-E中空玻璃 豪宅标配
承袭鸿荣源一贯精工品质,外立面以现代主义美学设计,恒久弥新,“鸿”颜不老
约5.3万㎡现代美学园林 全龄舒居
占项目用地约72%、容积率仅2.55
8大园林分区、6大功能空间,约600㎡全龄泳池(东莞首家园林式泳池),借助南侧山体景观,营造都市绿林居住环境
中国物业服务百强 领航高端服务
国家物业管理一级资质企业
致力于做中国高端物业专属服务的先行者,实现客户对美好生活的向往
中国物业服务品牌100强,粤港澳大湾区物业服务综合实力50强
户型图:
别墅产品特色
低密临山墅区
:除了高层住宅外,熙园山院还推出了268~446平方米的别墅产品。这些别墅依山而建,不仅外部享有优美的园林景观,内部也拥有属于自己的小天地。低密度的居住环境、私密的院落空间以及个性化的装修设计,使得这些别墅成为了追求高品质生活的理想之选。对于那些努力赚钱、渴望犒劳自己的成功人士来说,这样的别墅无疑是一个完美的选择。【约268-446㎡低密山院 全系朝南临山院墅】
稀缺院落:在用地指标严控的形势下,院落产品极其稀缺,项目位于莞深黄金地段,匠造一线临山产品,入则宁静,出则繁华,只为少数人臻藏;
全系朝南:产品采用全南向设计,占据最优景观资源,最大化的保证客餐厅、厨房及卧室能够和山景、院景产生互动;
高阶品质:全石材搭配铝板、中空玻璃,处处体现品质工艺与匠心精神;
百变空间:地下两层超百平,创意会所、娱乐天地随心打造,足不出户享精彩生活;
双首层设计:负一层拥有下层庭院+阔尺度天井两大采光源,采光效果堪比首层的,让“双首层空间”的光瀑级地下室得以实现。
别墅介绍:
小区别墅由76套双拼别墅跟18套三联排别墅组成
223平方属于三联排户型,客厅面宽较窄,下沉式客厅,没有中空挑高,带私家电梯井,后花园,采光较差。
244平方属于双拼别墅,拥有三面采光,前、侧、后围绕式花园,客厅没有挑高,带私家电梯井,户型结构要223平方户型好,层数一般在4-5层。
251平方属于双拼别墅,拥有三面采光,前、侧、后围绕式花园,客厅中空挑高,带私家电梯井,面宽要比244平方户型宽1-2米,客厅属于下沉式,层数一般在4-5层。
263平方属于双拼别墅,拥有三面采光,前、侧、后围绕式花园,客厅中空挑高,带私家电梯井,是小区在卖户型最好的,面宽要比(233、244、251)宽2-3米,层数一般在4-5层。
281平方/307平方属于双拼别墅,楼王户型,拥有三面采光,前后围绕式花园,花园有150-300平方,客厅中空挑高,带私家电梯井,户型是小区最好的。目前仅有一套305户型在售。
鸿荣源熙园山院 营销中心24小时电话:400-031-6012【营销中心☎☎已认证】⭐
鸿荣源熙园山院 营销中心24小时电话:400-031-6012【售楼中心☎☎已认证】⭐
鸿荣源熙园山院 售楼中心24小时电话:400-031-6012【售楼处限时特价】⭐
鸿荣源熙园山院 售楼中心24小时电话:400-031-6012【营销中心☎☎已认证】⭐
鸿荣源熙园山院 营销中心24小时电话:400-031-6012【售楼处☎☎已认证】⭐
声明:本文由入驻焦点开放平台的作者撰写,除焦点官方账号外,观点仅代表作者本人,不代表焦点立场。
